**Standout Features:**
- Prime building plot in a sought-after location, walking distance to Rickmansworth town center
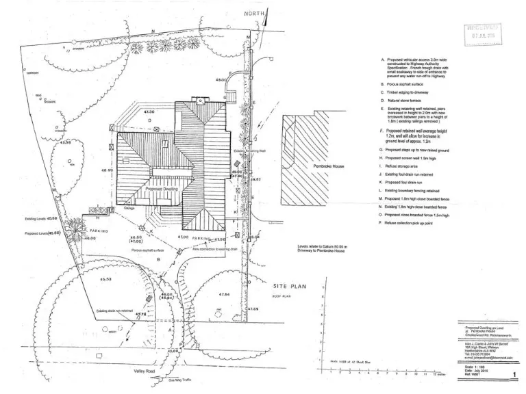
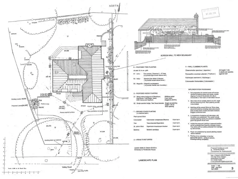
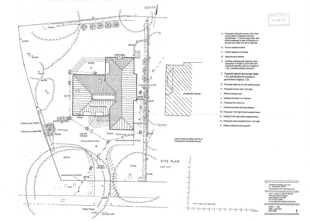
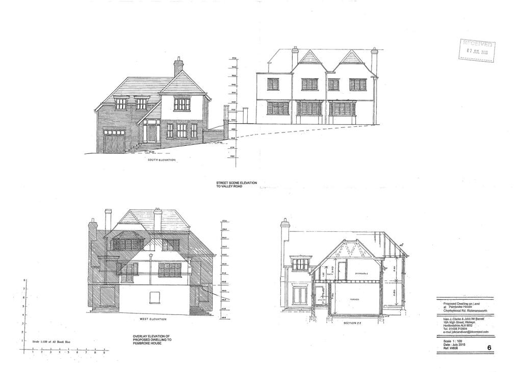
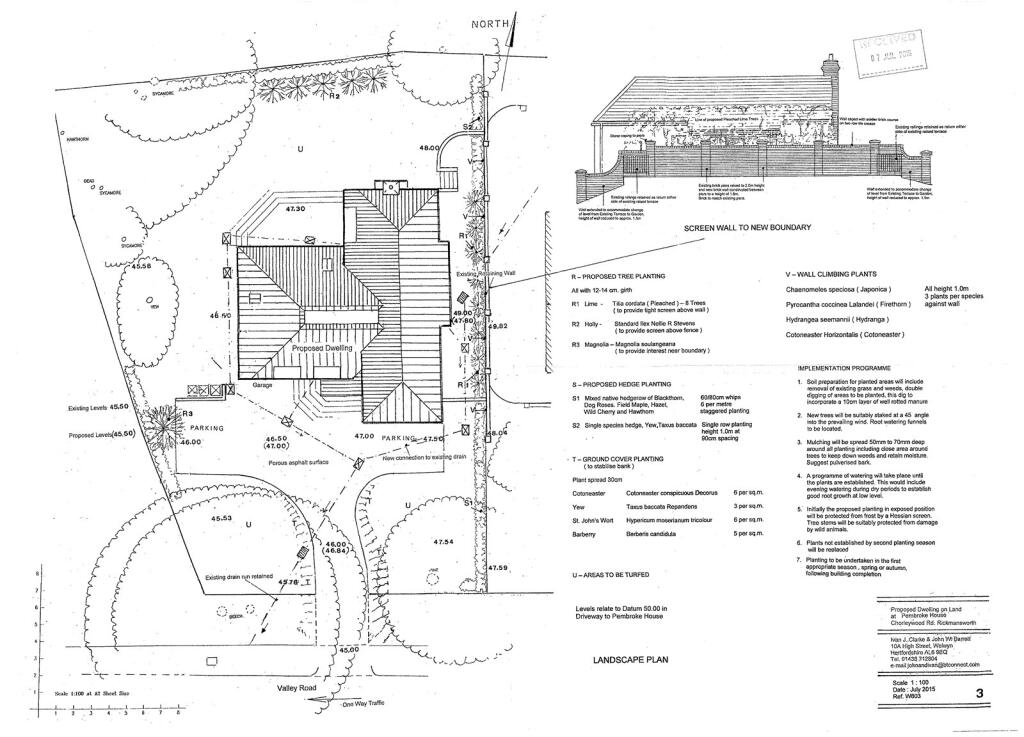
- Lapsed planning permission for a 4-bedroom detached house, offering a solid foundation for future development
- Very large plot size with potential for modern design and spacious living
- Excellent mobile signal and fast broadband speeds ideal for families and remote workers
- Garage parking and private garden space included
**Potential Downsides:**
- Lapsed planning permission from 2016, requiring a new application for redevelopment
- No immediate council tax information available
Discover a rare opportunity to secure a generous building plot in the affluent community of Rickmansworth, where peaceful suburban living meets convenient access to urban amenities. Located just half a mile from the town center and local train station, this plot allows you to envision a stylish 4-bedroom detached family home in a quiet yet desirable neighborhood.
Surrounded by top-rated schools—both independent and state-funded—this property is perfect for families looking to invest in a vibrant, educational environment. With excellent local amenities and very low crime rates, you can feel secure in your new space while also enjoying a strong potential for appreciation in property value.
This unique development opportunity won't be available for long, so take the chance to create a home tailored to your needs in a thriving community. Explore the possibilities of design and expansion—this plot is your blank canvas to build the home of your dreams!
Plot for sale in Chorleywood Road, RICKMANSWORTH, WD3 — £480,000 • 4 bed • 1 bath • 2196 ft²
Land for sale in Loudwater, Rickmansworth, WD3 — £195,000 • 1 bed • 1 bath
Commercial development for sale in The Island, Church Street, Rickmansworth, Hertfordshire, WD3 1JJ, WD3 — POA • 1 bed • 1 bath
End of terrace house for sale in Lea Bushes, Watford, Hertfordshire, WD25 — £150,000 • 1 bed • 1 bath
5 bedroom detached house for sale in Moor Lane, Rickmansworth, Hertfordshire, WD3 — £1,250,000 • 5 bed • 2 bath • 2084 ft²
Land for sale in Dawes Lane, Sarratt, Rickmansworth, Hertfordshire, WD3 6BB, WD3 — £65,000 • 1 bed • 1 bath • 1428 ft²


















