SE22 9JB - 1 bed garden flat east dulwich in 58 Pellatt Road, SE22 9JB

View on Property Piper

1 bedroom flat for sale in Pellatt Road, East Dulwich, SE22

Summary - Pellatt Road, SE22 SE22 9JB

1 bed 1 bath Flat

Sunny one-bed with private garden and powered summer house for remote working.
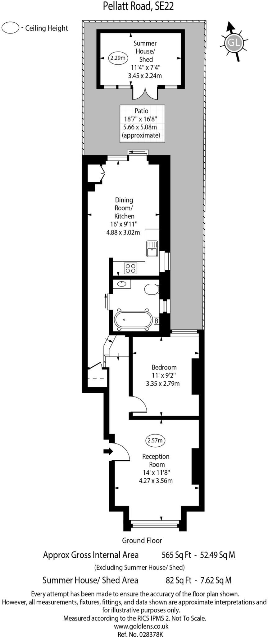
- One double bedroom garden flat, approx. 570 sq ft
- Sunny private garden with summer house and electrics
- Newly refurbished interior; move-in ready
- Leasehold, 121 years remaining
- Low annual costs: service charge ≈ £200, ground rent ≈ £200
- EPC rating D; original solid brick walls likely uninsulated
- Gas central heating, double glazing present
- 13-minute walk to East Dulwich station; excellent local amenities
A neatly presented one-bedroom ground-floor flat set in an attractive Edwardian red-brick conversion moments from Lordship Lane. At about 570 sq ft this newly renovated home combines period detail — sash-style windows and high ceilings — with contemporary finishes, warm wooden floors and plantation shutters. The shaker kitchen opens onto a sunny private garden, extending living space for dining and summer relaxation.

The garden includes a summer house with electrics, currently used as a home office/studio — a genuine plus for remote working or creative use. The double bedroom sits quietly to the rear and the recently refurbished bathroom includes a large bath and quality fixtures. Practical details include gas central heating via boiler and radiators, double glazing, and mains services throughout.

Ownership is leasehold with 121 years remaining; annual outgoings are low (service charge approx. £200 pa, ground rent approx. £200 pa). EPC rating is D and the building’s original solid brick construction likely has little wall insulation, which buyers should note. This flat is ready to move into and suits a first-time buyer or someone seeking a low-maintenance pied-à-terre with outdoor space in East Dulwich.

Local amenities are strong: good and outstanding-rated schools nearby, easy access to green spaces (Dulwich Park, Peckham Rye), a wide choice of shops, cafes and restaurants on Lordship Lane, and a 13-minute walk to East Dulwich station for direct central London links. Flood risk is nil and the area records low crime and fast broadband/mobile signal.

Property Details

Image Descriptions

Floorplan Description

Rooms

Textual Property Features

Target Audience

AI Tags

Detected Visual Features

EPC Details

Nearby Schools

Nearest Bars And Restaurants

,,,,}

Nearest General Shops

,,}

Nearest Grocery shops

,,}

Nearest Supermarkets

,,}

Nearest Religious buildings

,,}

Nearest Medical buildings

,,,}

Nearest Airports

,,}

Nearest Leisure Facilities

,,,,}

Nearest Tourist attractions

,,}

Nearest Train stations

,,,,}

Nearest Bus stations and stops

,,,,}

Nearest Hotels

,,}

Tags

Local Market Stats

AirBnB Data

Similar Properties

Meta

High Res Images

Compatible Images

Low res Images

Thumbnails

Raw Images

High Res Floorplan Images

Compatible Floorplan Images

Low res Floorplan Images

FloorplanImages Thumbnail

Raw Floorplan Images