Modern new-build apartment with balcony, low maintenance and investment appeal.
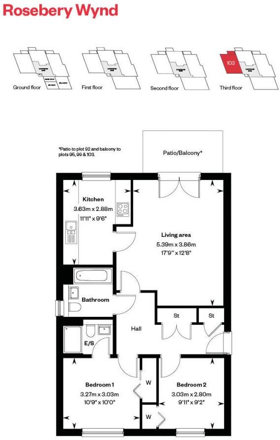
- Top-floor two-bedroom freehold apartment
- Compact 534 sq ft — well-arranged but small footprint
- Private balcony and communal landscaped gardens
- Gas central heating, double glazing, EPC B
- Main bedroom with built-in wardrobe and en-suite
- On-street parking only; no dedicated parking space
- Annual factoring approx £838 (below average)
- Location classed as very deprived; Council Tax Band E
Set on the top floor of the Rosebery Wynd development, this two-bedroom freehold apartment offers modern, low-maintenance living with a private balcony and contemporary fixtures. The layout includes an open living space, a fitted kitchen, two double bedrooms with wardrobes, an en-suite shower to the main bedroom and a separate bathroom. Gas central heating and double glazing are fitted throughout, and the property benefits from a favourable EPC B rating.
At 534 sq ft the apartment is compact but well arranged — a sensible choice for a first-time buyer or investor seeking a turnkey, new-build home in South Queensferry. Landscaping and communal areas are factored and maintained, and on-street parking is available close to the block. Annual factoring is approximately £838, which is below average for developments of this type.
Buyers should note the context: the property sits in a location classified as very deprived and council tax is Band E (above average running costs). The overall footprint is small, so purchasers requiring extensive storage or larger living spaces may need to consider how the layout will suit their lifestyle. Images and layouts may vary by plot, so double-check the exact internal arrangement before committing.
Overall, this apartment delivers new-build specification, simple upkeep and a private balcony in a commuter-friendly town. It will most appeal to buyers wanting a contemporary, lock-up-and-leave home or a rental asset requiring minimal immediate investment.
2 bedroom flat for sale in Flat 14, 1 Emily McBain Way, South Queensferry, EH30 9GQ, EH30 — £274,995 • 2 bed • 2 bath • 601 ft²
2 bedroom flat for sale in 61/9 Lowrie Gait, South Queensferry, EH30 9AB, EH30 — £265,000 • 2 bed • 2 bath • 830 ft²
2 bedroom ground floor flat for sale in Flat 4, 6 Friars Croft Crook, South Queensferry, EH30 9ED, EH30 — £274,995 • 2 bed • 2 bath • 548 ft²
1 bedroom flat for sale in Flat 5, 1 Emily McBain Way, South Queensferry, EH30 9GQ, EH30 — £204,995 • 1 bed • 1 bath • 375 ft²
3 bedroom flat for sale in Flat 2, 5 Emily McBain Way, South Queensferry, EH30 9GS, EH30 — £329,995 • 3 bed • 1 bath • 686 ft²
3 bedroom apartment for sale in Builyeon Road,
South Queensferry,
EH30 9YJ, EH30 — £344,995 • 3 bed • 1 bath • 1092 ft²


































