Rare freehold mixed-use unit with extensive yard, parking and three-bedroom house..
3,373 sq ft industrial unit with two roller doors and steel frame construction
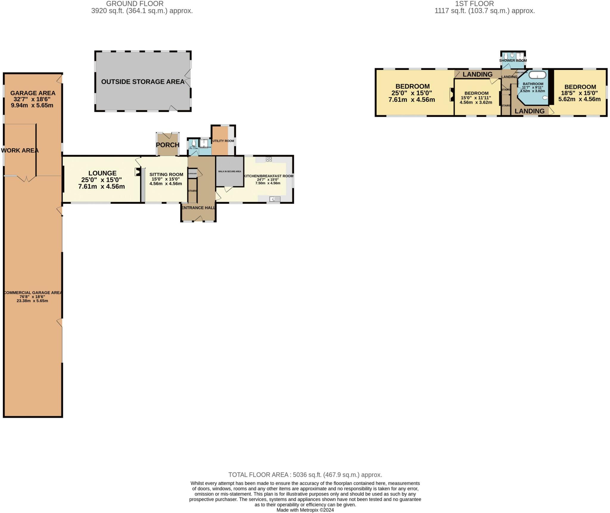
A substantial freehold mixed-use property on Valley Road combining a 3,373 sq ft industrial unit with a three-bedroom residential house. The workshop has steel-frame and block construction, two roller doors, gated yard, ample parking and 3-phase electricity — well suited to light manufacturing, repair, storage or owner-occupier operators. The house is partly newly renovated and retains stone-built character, with two reception rooms, a large kitchen (with walk-in safe/pantry), en-suite and two shower rooms.
This site offers practical access and secure outdoor space: a large gated yard for loading/unloading, additional rear parking for 2–3 vehicles, and vehicular access from wooden gates. Services include 3-phase electricity, strip lighting and a fitted alarm in the industrial area. The layout gives clear separation between commercial activity and living accommodation while keeping everything on one freehold title.
Be clear about the local context: the property sits in a more disadvantaged area with average crime and average connectivity (mobile and broadband). While the building is newly renovated in part, the industrial unit is functional rather than high-spec and may need adaptation for some specialist uses. The combined commercial/residential nature and sizeable footprint make this attractive to investors, owner-operators or businesses seeking on-site accommodation and yard space.
Light industrial facility for sale in Vale One, Forest Vale Industrial Estate, Forest Vale Road, Cinderford, GL14 2PH, GL14 — POA • 1 bed • 1 bath • 6458 ft²
Commercial property for sale in Belfitt Travel, Newtown Road, Cinderford, GL14 — £375,000 • 1 bed • 1 bath
Light industrial facility for sale in Vale One, Forest Vale Road, Forest Vale Industrial Estate, Cinderford, GL14 2PH, GL14 — POA • 1 bed • 1 bath
Business park for sale in Mead Lane Industrial Estate, Lydney, Gloucestershire, GL15 — £300,000 • 1 bed • 1 bath • 3733 ft²
2 bedroom property for sale in High Street, Cinderford, GL14 — £500,000 • 2 bed • 1 bath
3 bedroom detached house for sale in Valley Road, Cinderford, GL14 — £599,950 • 3 bed • 3 bath • 5036 ft²


























































































































































