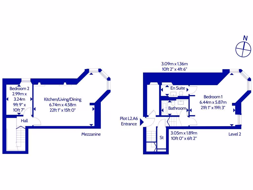
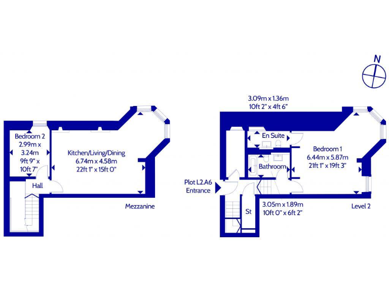
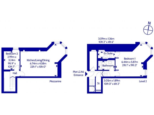
Spacious two-bedroom duplex in Craighouse combining period character with modern finishes..
Turreted reception/dining kitchen with distinctive period features
Bay-fronted principal bedroom with en-suite bathroom
Approximately 948 sq ft of living space, generous duplex layout
Freehold tenure; part of Craighouse period conversion
Annual service charge £993.81; block insurance £1,093.26
Fast broadband; average mobile signal
No recorded flood risk
Local area flagged as very deprived—investigate services and trends
Set within the Craighouse development, this two-bedroom duplex occupies the second level of a converted Victorian building and blends period character with contemporary finishes. The turreted reception/dining kitchen and bay-fronted principal bedroom give the apartment distinctive architectural charm, while sleek modern bathrooms and quality fittings provide everyday comfort.
At about 948 sq ft the layout feels generous: entrance hall with built-in storage, an open dining-kitchen suitable for socialising, a principal bedroom with en-suite, a second double bedroom and a separate modern bathroom. Immediate outdoor space around the development offers room to walk dogs and relax; nearby leisure facilities include Merchants of Edinburgh Golf Club and a local tennis club.
Practical details that matter: the property is freehold, listed as a new build within a period conversion, and benefits from fast broadband. Annual factoring (service charge) is £993.81 and block insurance is currently £1,093.26; the development uses a managing factor. Mobile signal is average. There is no recorded flood risk.
Be clear on local context: the wider area is described as having ageing communities and families, and local classification indicates highly qualified professionals nearby. At the same time an area deprivation indicator is listed as “very deprived,” which may affect local services and perceptions and is worth investigating before purchase. Overall this apartment will suit buyers who value listed building character paired with modern finishes and nearby leisure amenities.
2 bedroom apartment for sale in Apartment L7A1, Sassoon Grove, Craighouse, Edinburgh, EH10 5FA, EH10 — £575,000 • 2 bed • 2 bath • 936 ft²
3 bedroom flat for sale in Apartment 9, 49 Sassoon Grove, Edinburgh, EH10 5FB, EH10 — £1,100,000 • 3 bed • 2 bath • 2000 ft²
2 bedroom flat for sale in Apartment 12, 49 Sassoon Grove, Edinburgh, EH10 5FB, EH10 — £560,000 • 2 bed • 1 bath • 692 ft²
1 bedroom apartment for sale in Apartment L7A2, Sassoon Grove, Craighouse, Edinburgh, EH10 5FA, EH10 — £415,000 • 1 bed • 1 bath • 700 ft²
2 bedroom flat for sale in 42 Sassoon Grove, Edinburgh, EH10 5FA, EH10 — £695,000 • 2 bed • 2 bath • 845 ft²
2 bedroom flat for sale in Plot L2. A9, New Craig, Craighouse, EH10 5FB, EH10 — £695,000 • 2 bed • 2 bath • 860 ft²






































































