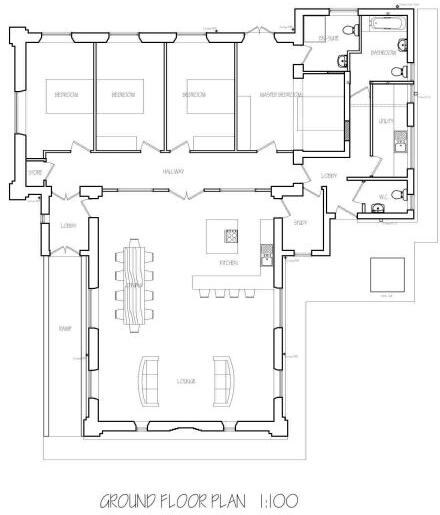
**Standout Features:**
- Unique conversion opportunity for a 4-bedroom residential home 
- Expansive 0.80-acre plot with lush gardens and fruit trees
- Historic Gothic Revival church built in 1935 with high ceilings and arched windows
- Generous 2,121 sq. ft. interior with open-plan living potential
- Off-street parking suitable for 10 cars
- Planning permission secured for easy transformation into a dwelling
**Concerns:**
- Requires renovations to fully realize potential 
- Average broadband speeds and mobile signal within the area
  
Nestled in the serene village of Gosberton Clough, this extraordinary Methodist Church offers a rare opportunity for those looking to create a spectacular family home or community retreat. With granted planning permission for conversion into a generous four-bedroom residence, the property boasts stunning architectural features, including soaring high vaulted ceilings and charming arched windows that can be retained through thoughtful renovation. Surrounded by a tranquil landscape and perfectly sized garden filled with fruit trees, envision peaceful afternoons spent outdoors.
The versatile floor plan allows for a fantastic open living/dining area, ideal for modern family living and entertaining friends. This freehold property not only provides a unique living space but also features much-needed off-street parking for multiple vehicles, perfect for families or guests. Although the property will require some modernization, the enduringly beautiful character and potential for customization make it a compelling project for buyers with vision. Don't miss out on this exceptional property in a quiet yet accessible rural setting—an opportunity like this won't last long!
 Barn for sale in Beck Bank, Gosberton Clough, PE11 — £299,500 • 1 bed • 1 bath • 2121 ft²
 Barn for sale in Beck Bank, Gosberton Clough, PE11 — £299,500 • 1 bed • 1 bath • 2121 ft² 3 bedroom detached house for sale in Risegate Road, Gosberton Risegate, PE11 — £425,000 • 3 bed • 2 bath • 1875 ft²
 3 bedroom detached house for sale in Risegate Road, Gosberton Risegate, PE11 — £425,000 • 3 bed • 2 bath • 1875 ft² Leisure facility for sale in The Old Drill Hall, 10 Haverfield Road, Spalding, PE11 2XP, PE11 — £600,000 • 1 bed • 1 bath • 6466 ft²
 Leisure facility for sale in The Old Drill Hall, 10 Haverfield Road, Spalding, PE11 2XP, PE11 — £600,000 • 1 bed • 1 bath • 6466 ft² Barn for sale in High Street, Whaplode, PE12 6TG, PE12 — £250,000 • 3 bed • 1 bath • 2842 ft²
 Barn for sale in High Street, Whaplode, PE12 6TG, PE12 — £250,000 • 3 bed • 1 bath • 2842 ft² Commercial property for sale in High Road, Whaplode, PE12 6TG, PE12 — £250,000 • 1 bed • 1 bath • 1991 ft²
 Commercial property for sale in High Road, Whaplode, PE12 6TG, PE12 — £250,000 • 1 bed • 1 bath • 1991 ft² Light industrial facility for sale in The Former Chapel, PE11 4DQ, PE11 — £49,950 • 1 bed • 1 bath • 1392 ft²
 Light industrial facility for sale in The Former Chapel, PE11 4DQ, PE11 — £49,950 • 1 bed • 1 bath • 1392 ft²










































