Characterful village property with planning consent for a family-sized home and parking.
- Planning consent granted for 3-bedroom conversion (Ref H23-0409-24)
- Distinctive Gothic Revival features and high ceilings
- Underfloor heating to front showroom; gas central heating
- Extensively renovated in 2017; freehold with vacant possession
- Buildings occupy most of 264m² plot; limited garden space
- Off-street parking for up to two cars
- Very slow broadband speeds in the area
- Eastern wall sits on boundary; some UPVC windows present
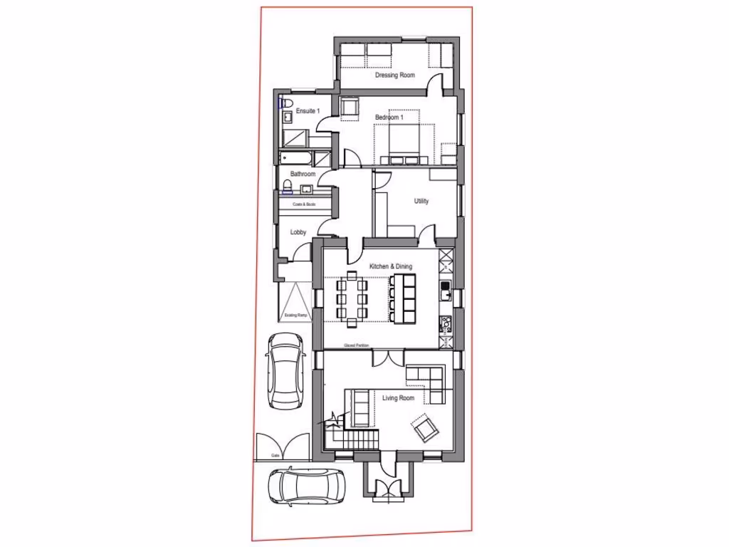
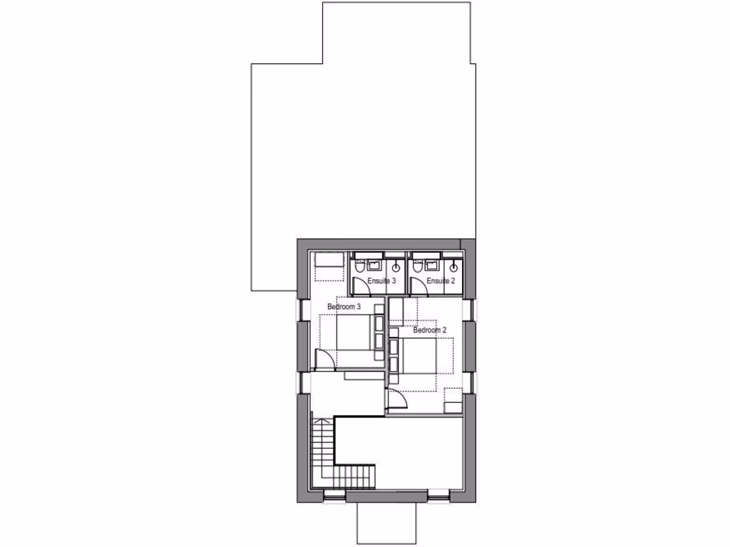
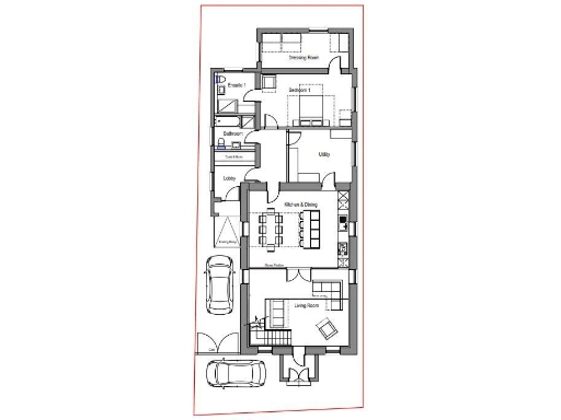
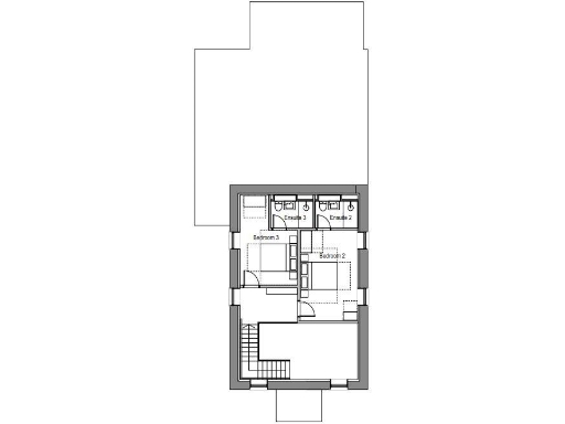
A distinctive former Methodist chapel on High Road, Whaplode, offers a rare chance to create a three-bedroom village home. The building retains 19th-century Gothic Revival features—arched timber windows, stained glass and high ceilings—alongside practical modern upgrades carried out in 2017, including insulation works and underfloor heating to the front showroom.
Full planning consent (Ref H23-0409-24) has been granted to convert the space to an open-plan living/dining/kitchen with three bedrooms, making this suitable for a family seeking character and space close to local schools and village amenities. The property is freehold, not listed, and not within a conservation area, simplifying the conversion process.
Practical considerations: the buildings largely fill the 264m² plot leaving limited external amenity space; parking for two cars is provided on the side forecourt. Broadband speeds are very slow, and some external elevations and windows are UPVC rather than original timber. Buyers should note the eastern building wall sits directly on the boundary.
Overall this is a renovated period building with clear residential potential for purchasers prepared to complete the approved conversion. It suits buyers who value architecture and village living but accept modest external space and some modernisation to complete the dwelling.
Commercial property for sale in Holbeach Drove, Methodist Church, Chapel Drove, Holbeach Drove, PE12 0TP, PE12 — £95,000 • 1 bed • 1 bath • 875 ft²
Barn for sale in High Street, Whaplode, PE12 6TG, PE12 — £250,000 • 3 bed • 1 bath • 2842 ft²
Commercial property for sale in Beck Bank, Gosberton Clough, PE11 — £299,500 • 1 bed • 1 bath • 2121 ft²
4 bedroom detached house for sale in Gedney Drove End, PE12 — £395,000 • 4 bed • 2 bath • 1985 ft²
High street retail property for sale in The Old Drill Hall, 10 Haverfield Road, Spalding, PE11 2XP, PE11 — £600,000 • 1 bed • 1 bath • 6466 ft²
3 bedroom detached house for sale in High Road, Whaplode, Spalding, PE12 — £287,000 • 3 bed • 2 bath • 1007 ft²


















































































































































