**Standout Features:**
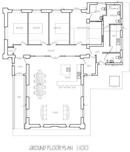
- Converted Methodist Church with approved planning consent for transformation into a four-bedroom residential property.
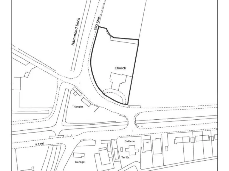
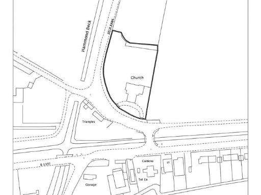
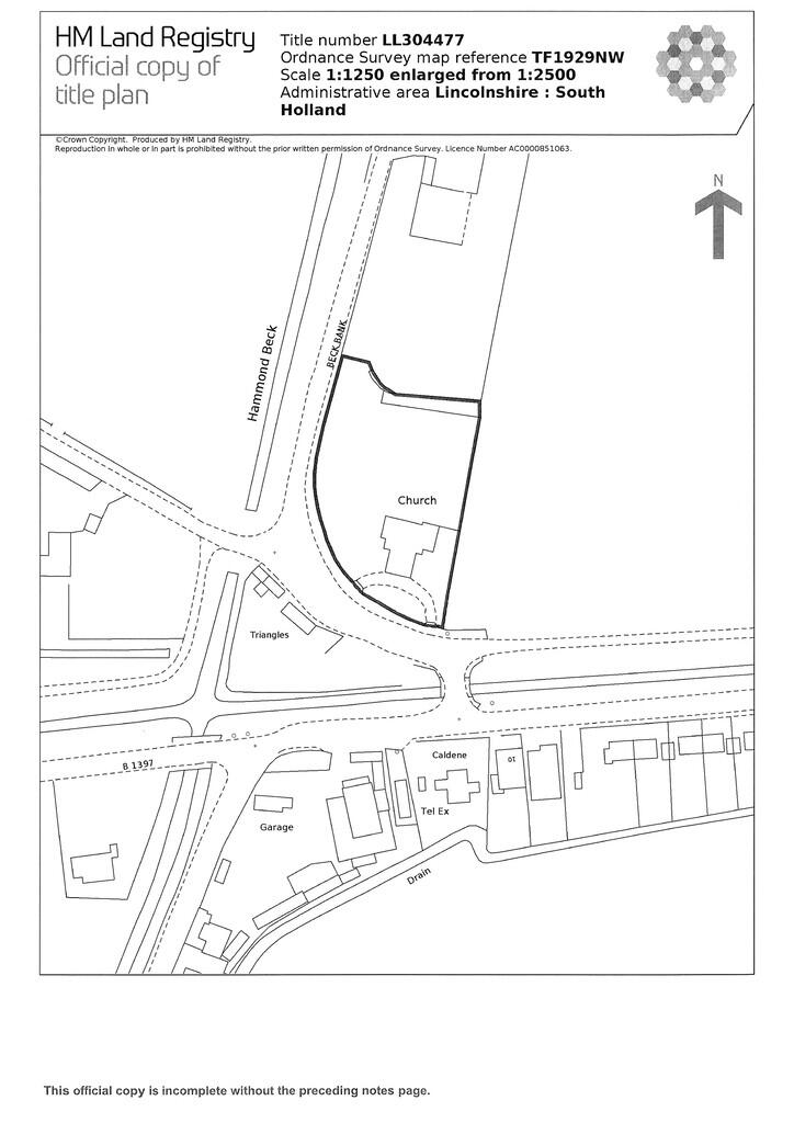
- Expansive plot size of approximately 3,423 m² (0.80 acres), featuring fruit trees and ample outdoor space.
- Historic architectural character, including large arched stained glass windows and high ceilings with maximum heights reaching 5.70m.
- Centrally located in the peaceful hamlet of Gosberton Clough, ideal for families looking for rural tranquility.
- Freehold tenure with vacant possession, offering flexibility for future renovations and personal touches.
**Potential Concerns:**
- Existing private drainage system may require updates to comply with current regulations at the buyer's expense.
- The property's location offers limited immediate amenities, though nearby Spalding provides full local services, shopping, and transportation options.
Discover a unique opportunity to own a historic Methodist Church, set in a serene rural environment, perfect for those yearning for spacious living with modern potential. Spanning an impressive size of 2,121 sq ft, this circa 1935 building incorporates significant character features such as grand arched windows and high ceilings, making it a standout property for renovation enthusiasts.
With the necessary planning consent granted, envision transforming this iconic structure into a comfortable four-bedroom family home, ideal for creating lasting memories. The generous plot is not only ideal for gardening enthusiasts—complete with fruit trees—but also boasts an ‘in and out’ driveway for considerable parking. Families will appreciate proximity to primary schooling options and the ease of access to Spalding for secondary education and shopping needs.
Don’t miss out on this rare chance to invest in a property that combines charm, history, and promise in a unique rural setting—opportunities like this are not often available!
Barn for sale in High Street, Whaplode, PE12 6TG, PE12 — £250,000 • 3 bed • 1 bath • 2842 ft²
Commercial property for sale in Beck Bank, Gosberton Clough, PE11 — £299,500 • 1 bed • 1 bath • 2121 ft²
Commercial property for sale in High Road, Whaplode, PE12 6TG, PE12 — £250,000 • 1 bed • 1 bath • 1991 ft²
Leisure facility for sale in The Old Drill Hall, 10 Haverfield Road, Spalding, PE11 2XP, PE11 — £600,000 • 1 bed • 1 bath • 6466 ft²
Property for sale in Barn with Planning Permission for Conversion, Holbeach Road, Spalding, PE12 — £130,000 • 1 bed • 1 bath • 8085 ft²
3 bedroom detached house for sale in Risegate Road, Gosberton Risegate, PE11 — £425,000 • 3 bed • 2 bath • 1875 ft²










































