**Standout Features:**
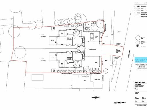
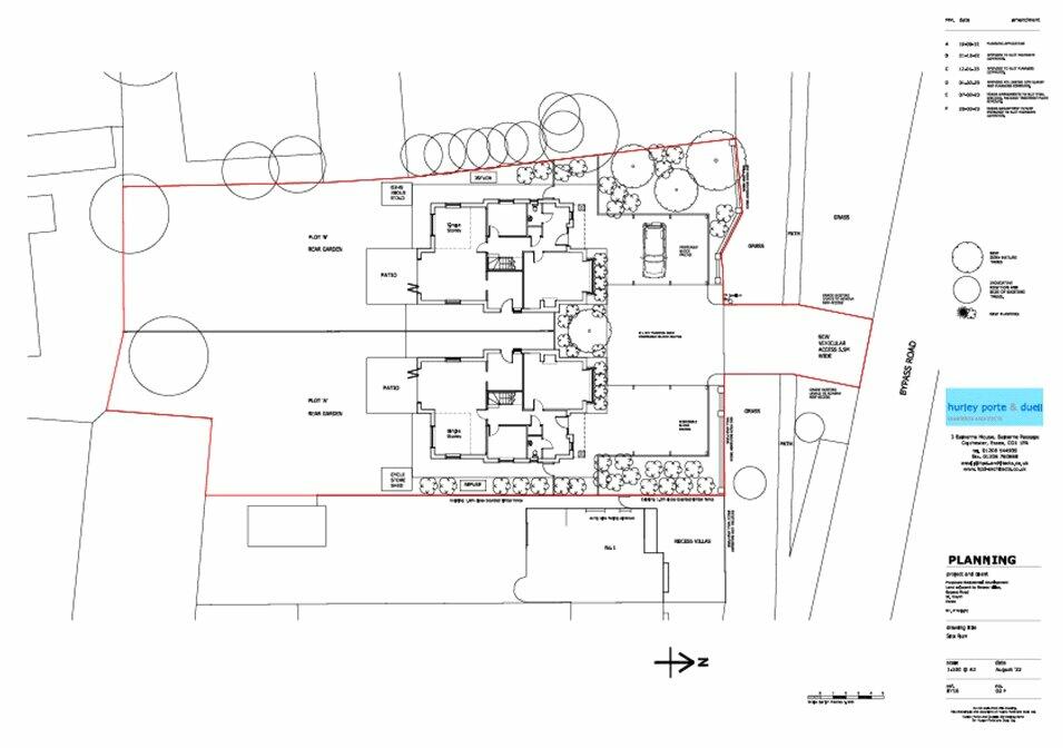
- Large double building plot of just under 1/3 acre (approximately 2,100 sq. ft.)
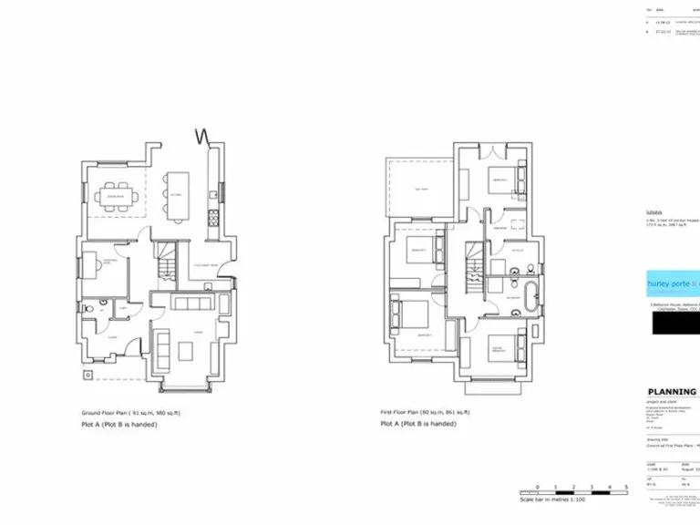
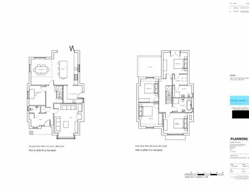
- Full planning permission for two five-bedroom detached houses
- Excellent mobile signal; suitable for remote connectivity
- Located near reputable schools with good Ofsted ratings
- Potential for significant return on investment in a growing market
**Concerns:**
- Currently overgrown, requiring considerable clearing and maintenance
- Daily amenities may be limited due to the deprivation classification
- Broadband speeds are slow, which could affect internet-dependent activities
Unlock the potential of this expansive double plot in CO16 8HD, perfect for developers or investors looking to capitalize on a burgeoning market. With full planning permission for two stunning five-bedroom detached homes, this large land offers a remarkable canvas to create your vision. The property is set in a quiet suburban area, surrounded by family-friendly amenities and schools rated 'Good' by Ofsted, making it valuable for builders focusing on quality family homes.
However, please note that the plot is currently overgrown and will require significant clearing before development begins. While mobile connectivity is excellent, broadband speeds lag, highlighting the need for potential future upgrades. Don't miss this rare opportunity to secure a sizable investment in a tranquil setting—this plot won't last long!
 Plot for sale in North Wall, Point Clear Bay, St Osyth, CO16 — £100,000 • 2 bed • 1 bath • 971 ft²
 Plot for sale in North Wall, Point Clear Bay, St Osyth, CO16 — £100,000 • 2 bed • 1 bath • 971 ft² Plot for sale in Land To The Rear of 64 & 66 Blackheath, Facing Nightingale Court, Colchester, Essex, CO2 — £250,000 • 1 bed • 1 bath
 Plot for sale in Land To The Rear of 64 & 66 Blackheath, Facing Nightingale Court, Colchester, Essex, CO2 — £250,000 • 1 bed • 1 bath Plot for sale in DEVELOPMENT LAND - Clacton Road, Weeley Heath, Essex, CO16 — £1,750,000 • 1 bed • 1 bath • 5497 ft²
 Plot for sale in DEVELOPMENT LAND - Clacton Road, Weeley Heath, Essex, CO16 — £1,750,000 • 1 bed • 1 bath • 5497 ft² Plot for sale in Finch Way, Parsons Heath, Colchester, Essex, CO4 — £250,000 • 1 bed • 1 bath • 2500 ft²
 Plot for sale in Finch Way, Parsons Heath, Colchester, Essex, CO4 — £250,000 • 1 bed • 1 bath • 2500 ft² Land for sale in Grange Road, Lawford, Manningtree, Essex, CO11 — £375,000 • 1 bed • 1 bath
 Land for sale in Grange Road, Lawford, Manningtree, Essex, CO11 — £375,000 • 1 bed • 1 bath Land for sale in Land Adjacent to Cross Farm, Station Road, Thorrington, Colchester, CO7 — £600,000 • 1 bed • 1 bath • 5000 ft²
 Land for sale in Land Adjacent to Cross Farm, Station Road, Thorrington, Colchester, CO7 — £600,000 • 1 bed • 1 bath • 5000 ft²


































