Ready-for-permission rural site with countryside privacy and strong commuter links.
Approximately 1.55 acres (subject to survey)
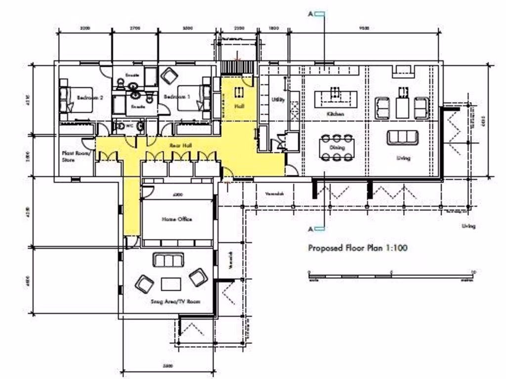
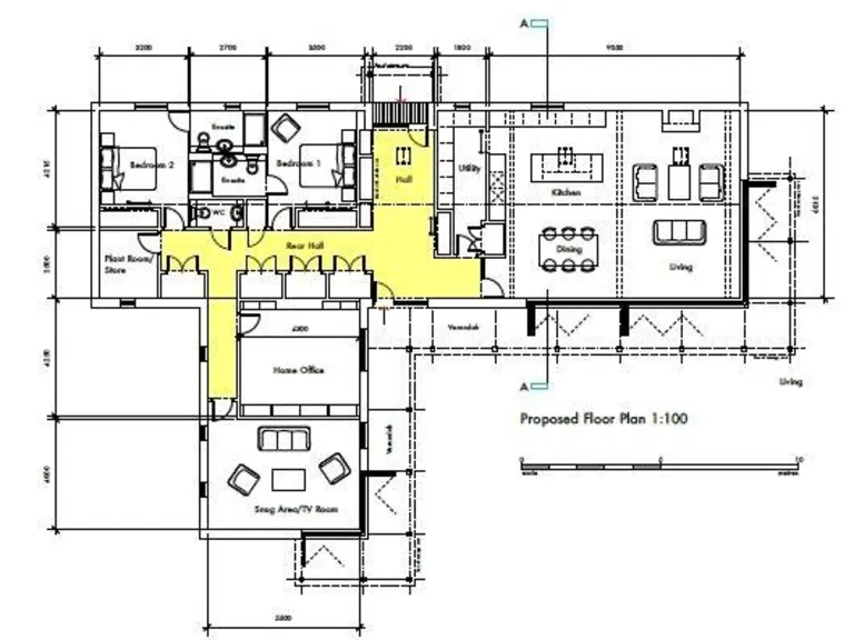
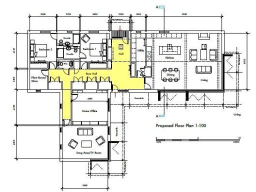
Set on approximately 1.55 acres (subject to survey), this rural parcel on Grange Road offers a rare chance to create a bespoke single-storey home in a peaceful Lawford setting. Full planning approval is in place for a two-bedroom dwelling with a detached cart lodge (Tendring application 25/00755/FUL; also references 21/01718/FUL), so the main permission work is already completed.
The plot delivers generous privacy and open countryside views while remaining within easy reach of local amenities and schools. Manningtree railway station is a short drive away for rail links to London, and local schools include several well-regarded primaries and secondaries, which will suit families seeking a quieter village lifestyle with practical commuting options.
There is an existing structure on the land and parts of the site are overgrown, so buyers should allow for clearance and some refurbishment or demolition as required. The plot is freehold and not in a flood-risk zone, with fast broadband reported and low local crime — practical positives for long-term living or investment.
Interested parties should rely on their own surveys: the acreage is subject to formal measurement, planning documents should be reviewed in full, and services and access arrangements should be confirmed prior to purchase. The site is best suited to buyers wanting a substantial garden, privacy, and the chance to deliver a single-storey rural home to a bespoke specification.
Plot for sale in Hunters Chase, Ardleigh, CO7 — £300,000 • 1 bed • 1 bath
Land for sale in Harwich Road, Wix, CO11 — £375,000 • 1 bed • 1 bath • 2185 ft²
Plot for sale in Hunters Chase, Ardleigh, Colchester, Essex, CO7 — £375,000 • 3 bed • 1 bath
Land for sale in Harwich Road, Lawford, Manningtree, Essex, CO11 2LS, CO11 — £125,000 • 1 bed • 1 bath • 478 ft²
Land for sale in Land Adjacent To Cross Farm, Station Road, Thorrington, Essex, CO7 — £600,000 • 1 bed • 1 bath
4 bedroom semi-detached house for sale in Harwich Road, Lawford, Manningtree, Essex, CO11 — £700,000 • 4 bed • 2 bath • 1437 ft²






































