Permitted build for a large family home with annexe in peaceful village setting.
Full planning permission granted (TDC ref 22/01695/FUL) for main house, annexe, garage
Plot approx. 1 acre — very large private site, gardening and landscaping potential
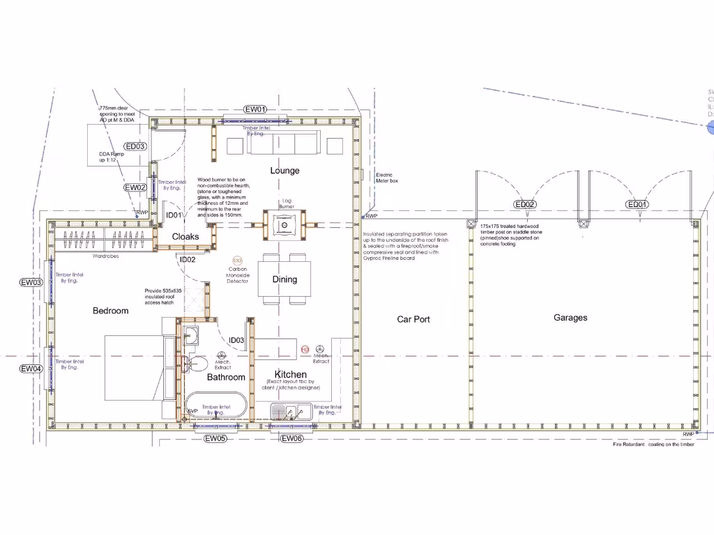
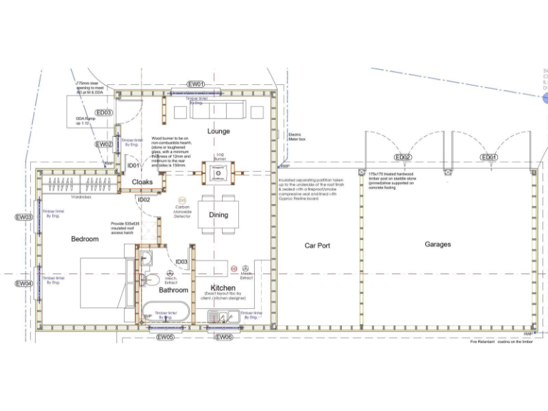
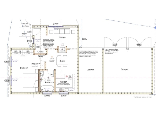
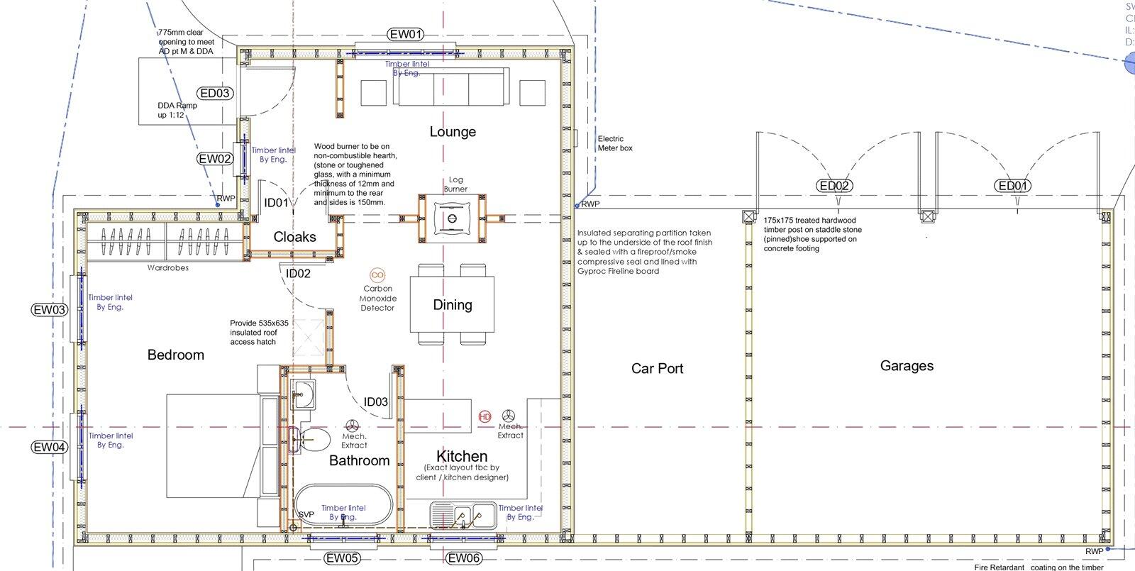
Main dwelling c.5,000 sqft GIA; annexe ~700 sqft; garage ~600 sqft (approx.)
Freehold title, no flood risk, broadband fast and mobile signal excellent
Mains services available in road except gas — alternative heating required
Located in quiet village with easy access to Colchester, Brightlingsea, Clacton
Nearby schools rated Good; area classified as ageing rural neighbourhoods
Significant build cost and project management required for executive-scale house
A rare one-acre building plot in Thorrington with full planning permission for a substantial executive family house, annexe and large garage. The granted consent (Tendring DC ref 22/01695/FUL) covers a main dwelling with approximately 5,000 sqft GIA, an annexe just under 700 sqft and a garage approaching 600 sqft — offering immediate development potential for a large family home or high-value new build.
The site sits in a peaceful village setting with fast broadband, excellent mobile signal and straightforward road links to Colchester, Brightlingsea and Clacton-on-Sea. Nearby primary and secondary schools are rated Good by Ofsted. The plot is freehold, has no flood risk and existing reports (building regulation calculations and construction notes) are available to support the build.
Practical considerations: all mains services are reported available in Station Road except gas, so heating design should be planned accordingly. The approved house is very large (around 24 rooms/approx. 5,000 sqft) and will suit buyers prepared for an executive-scale project — build costs, specialist contractors and long lead times for fittings should be expected. The surrounding area is predominantly an ageing rural neighbourhood, so buyers seeking a more urban demographic should be aware.
For buyers wanting a countryside executive home or a developer targeting a high-spec new build, this plot offers a permitted start with substantial scale and attractive local amenities. The price reflects the size and consent status; practical groundwork and construction remain to be completed.
Land for sale in Land Adjacent To Cross Farm, Station Road, Thorrington, Essex, CO7 — £600,000 • 1 bed • 1 bath
Plot for sale in Finch Way, Parsons Heath, Colchester, Essex, CO4 — £250,000 • 1 bed • 1 bath • 2500 ft²
Plot for sale in Hunters Chase, Ardleigh, CO7 — £300,000 • 1 bed • 1 bath
Plot for sale in Colchester Road, Braiswick, CO4 — £700,000 • 4 bed • 4 bath • 4200 ft²
Land for sale in Land Adjacent To Gu Brath, Coggeshall Road, Earls Colne, Colchester, Essex, CO6 — £250,000 • 1 bed • 1 bath • 7841 ft²
Plot for sale in Hunters Chase, Ardleigh, Colchester, Essex, CO7 — £375,000 • 3 bed • 1 bath


























