City‑edge plots with income and strong transport links for developers or investors.
Honey Street 0.61 acres; Collingham Street 0.40 acres
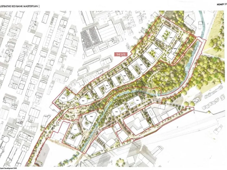
Two adjoining cleared sites in Redbank, Manchester offer a rare city‑edge redevelopment opportunity within a five‑minute walk of Victoria Station and Metrolink. The larger Honey Street plot (0.61 acres) and the Collingham Street plot (0.4 acres) are surfaced in macadam, perimeter secured and served with mains electricity. Honey Street is under a new 10‑year lease to a regional container operator (from April 2025), producing £55,000 pa; Collingham Street is on a short‑term car‑sales tenancy generating circa £25,000 pa.
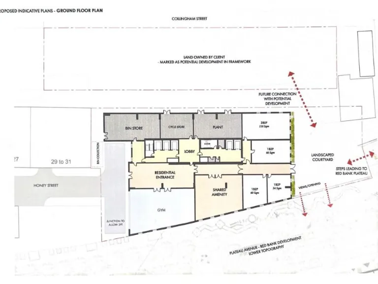
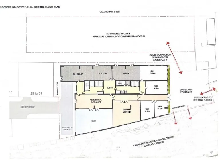
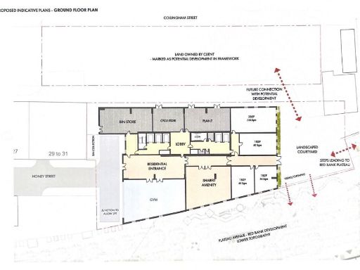
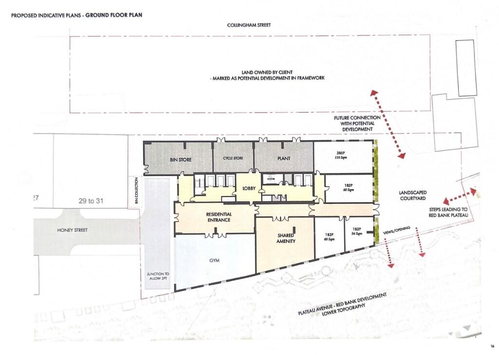
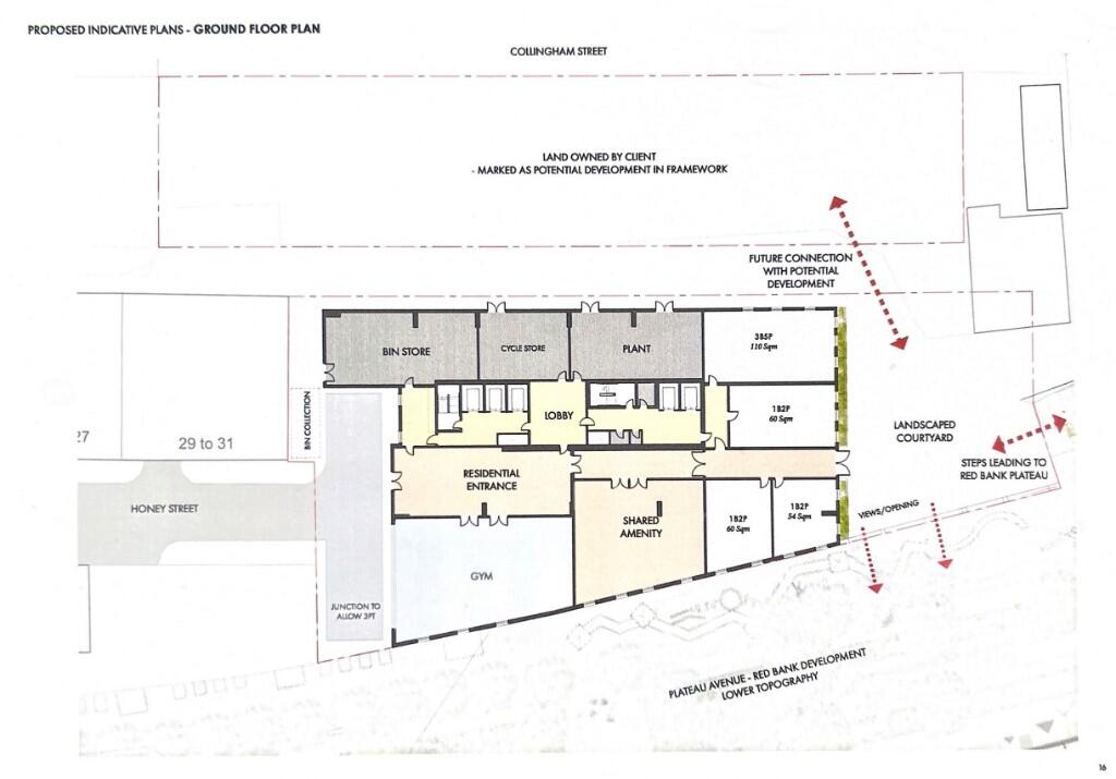
The sites suit residential or mixed‑use redevelopment subject to planning: architects’ indicative layouts show efficient studio/1‑bed apartment schemes, podium and courtyard arrangements. They are also pragmatic as income‑producing land uses in the near term (container storage, parking, contractor’s yard) while planning is pursued. The plots are deep, with a town‑centre footprint and possible waterside adjacency on the Honey Street parcel.
Buyers should note explicit constraints: no planning permissions are in place and any residential scheme will require consent. The area is classified as very deprived with multi‑ethnic hardship and has very slow broadband speeds; these are material for residential marketing and occupier demand. The vendor considers selling the Collingham Street site separately or both sites together.
In short, the offering is best suited to developers or investors who value proximity to Manchester city centre and existing short‑term rental income, and who are prepared to manage a planning programme and local market considerations.
Storage facility for sale in Open Storage, Ashton Old Road, Ardwick, Manchester, M12 6LB, M12 — POA • 1 bed • 1 bath
Light industrial facility for sale in Bower Street, Newton Heath, Manchester, M40 2AF, M40 — POA • 1 bed • 1 bath
Commercial property for sale in Land At , New Viaduct Street And , 266 Bradford Road, Manchester, Greater Manchester, M40 — £1,045,000 • 1 bed • 1 bath
Light industrial facility for sale in Crumpsall Lane, Blackley, Manchester, M9 8GQ, M9 — POA • 1 bed • 1 bath • 565 ft²
Office for sale in Swan Street, Manchester, M4 5JU, M4 — £1,600,000 • 1 bed • 1 bath • 7000 ft²
Land for sale in 1 Trafford Wharf Road MANCHESTER M17 1BY United Kingdom, M17 — POA • 1 bed • 1 bath • 3172 ft²


































