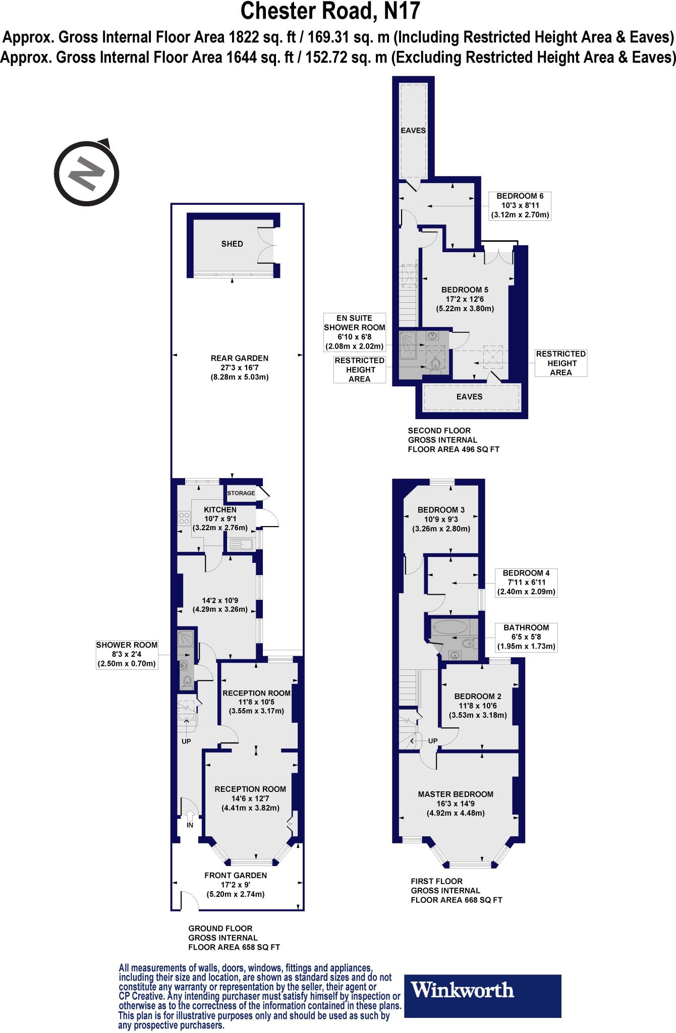
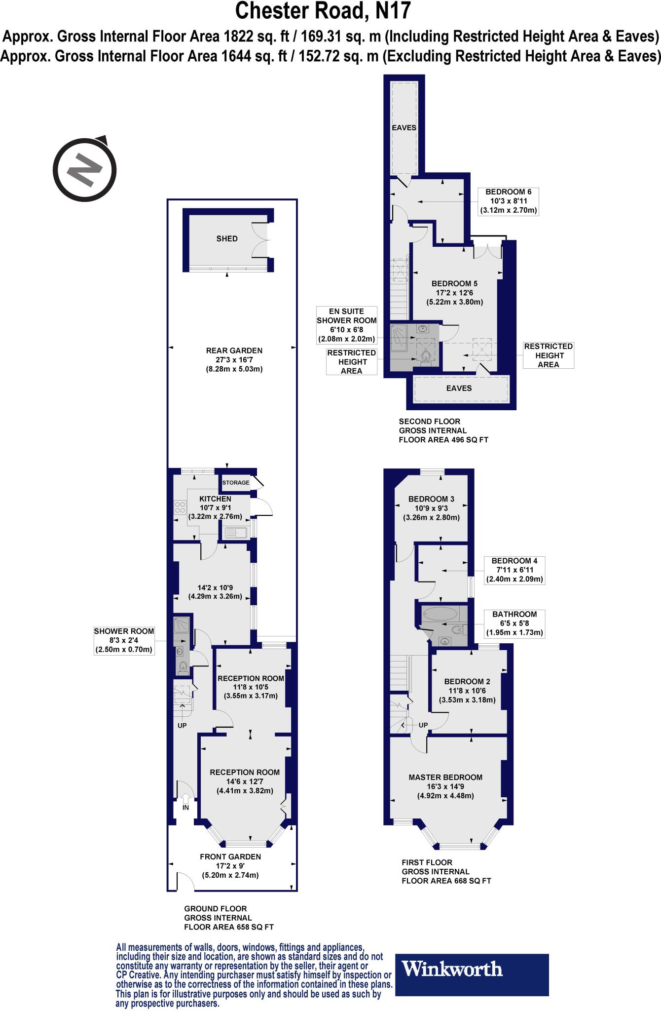
**Standout Features:**
- Three-storey Victorian terraced home
- Six spacious bedrooms with a loft conversion
- Generous double reception room with twin fireplaces
- Separate breakfast room and modern kitchen
- Lovely private rear garden with patio and mature planting
- Located near Downhills Park
- Excellent transport links to central London
**Concerns:**
- Above-average crime rate in the area
- Small plot size
Welcome to this impressive six-bedroom Victorian home in a sought-after Tottenham neighborhood. Boasting classical design attributes and contemporary amenities, this spacious property is perfect for family living. The expansive double reception room, accentuated by twin fireplaces and tall bay windows, creates an inviting ambiance, seamlessly flowing into a bright kitchen finished in soft mint hues. The separate breakfast room and practical shower room on the ground floor enhance the home’s functionality.
Step outside to discover a charming rear garden, expertly landscaped with floral borders and a concrete patio—ideal for entertaining. The first floor comprises four well-sized bedrooms, complemented by a family bathroom featuring vintage details. The loft conversion introduces two additional bedrooms and an en-suite shower room, offering versatile living options whether for a growing family or as potential rental space.
Nestled just moments away from Downhills Park and within reach of excellent transport links, including Seven Sisters and Tottenham Hale stations, this property perfectly combines the tranquility of suburban life with vibrant local amenities. Although the area may present challenges with an above-average crime rate, the home’s character, space, and future potential for renovations make it a fantastic investment for families and prospective homeowners alike. Don't miss out on this rare opportunity—properties like this in such an appealing location won’t last long!
3 bedroom house for sale in Greyhound Road, London, N17 — £625,000 • 3 bed • 1 bath • 1019 ft²
3 bedroom terraced house for sale in Woodside Gardens, London, N17 — £795,000 • 3 bed • 1 bath • 1240 ft²
5 bedroom house for sale in Greyhound Road, London, N17 — £950,000 • 5 bed • 3 bath • 1900 ft²
3 bedroom terraced house for sale in St. Margarets Road, London, N17 — £775,000 • 3 bed • 2 bath • 1313 ft²
4 bedroom terraced house for sale in Lordship Lane, Tottenham, London, N17 — £795,000 • 4 bed • 2 bath • 1329 ft²
3 bedroom terraced house for sale in Fairbourne Road, London, N17 — £690,000 • 3 bed • 1 bath • 1196 ft²






































































































