Retirement-friendly home with large garden and flexible layout for growing households.
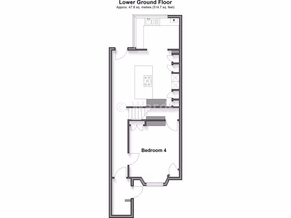
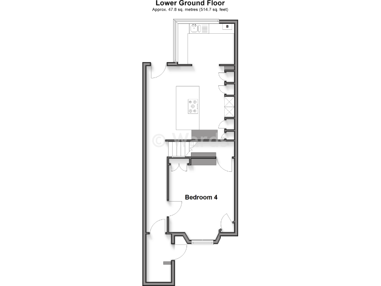
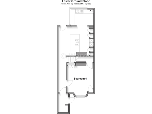
- Four bedrooms plus loft room, two bathrooms including en-suite
- Large landscaped rear garden and front off-street parking
- Spacious kitchen with island and separate utility area
- Chain free sale; marketed with a Homewise Lifetime Lease example price
- Solid brick Victorian build; likely no wall cavity insulation
- Small overall footprint for a four-bedroom property
- High local crime rate; consider security improvements
- Double glazing installed post-2002; gas boiler and radiators
A roomy four-bedroom mid-terrace finished with period features and a sizeable landscaped rear garden. The house offers a large kitchen with island, generous bedrooms including an en-suite, a loft room and off-street parking — useful for multi-generational households or downsizers seeking space.
This property is being marketed with the Homewise Home for Life Lifetime Lease example price of £264,500 for buyers aged 60+, against the full market price of £400,000. The Lifetime Lease lets qualifying purchasers buy a share (up to 50%) of the value, with typical savings of around one-third depending on age and circumstances. The sale is chain free.
Built c.1900–1929, the house has double glazing (fitted post-2002) and gas boiler central heating. The solid brick walls are original and assumed to lack modern cavity insulation, and the property will suit buyers planning light-to-medium renovation rather than a move-in-perfect finish.
Note the location is in a busy urban area with higher-than-average crime statistics; buyers should factor local safety and security measures into plans. Overall footprint and plot are small for a four-bedroom home, so outdoor space, while large for a terrace, is modest compared with suburban gardens.
3 bedroom terraced house for sale in Old Tovil Road, Maidstone, Kent, ME15 — £185,500 • 3 bed • 1 bath • 579 ft²
4 bedroom semi-detached house for sale in Little Buckland Avenue, Maidstone, Kent, ME16 — £353,500 • 4 bed • 1 bath • 1378 ft²
4 bedroom detached house for sale in Frinstead Walk, Maidstone, Kent, ME16 — £330,500 • 4 bed • 2 bath • 1044 ft²
3 bedroom terraced house for sale in Gladstone Road, Penenden Heath, Maidstone, Kent, ME14 — £172,000 • 3 bed • 1 bath • 657 ft²
2 bedroom terraced house for sale in Western Road, Maidstone, Kent, ME16 — £172,000 • 2 bed • 1 bath • 689 ft²
2 bedroom terraced house for sale in Sheridan Close, Maidstone, Kent, ME14 — £178,500 • 2 bed • 1 bath • 453 ft²






















































