Freshly renovated two-bedroom terrace with a low-maintenance garden for downsizers.
Victorian end-terrace; newly renovated throughout
Replacement double glazed windows and doors throughout
Gas boiler and radiators — mains gas heating
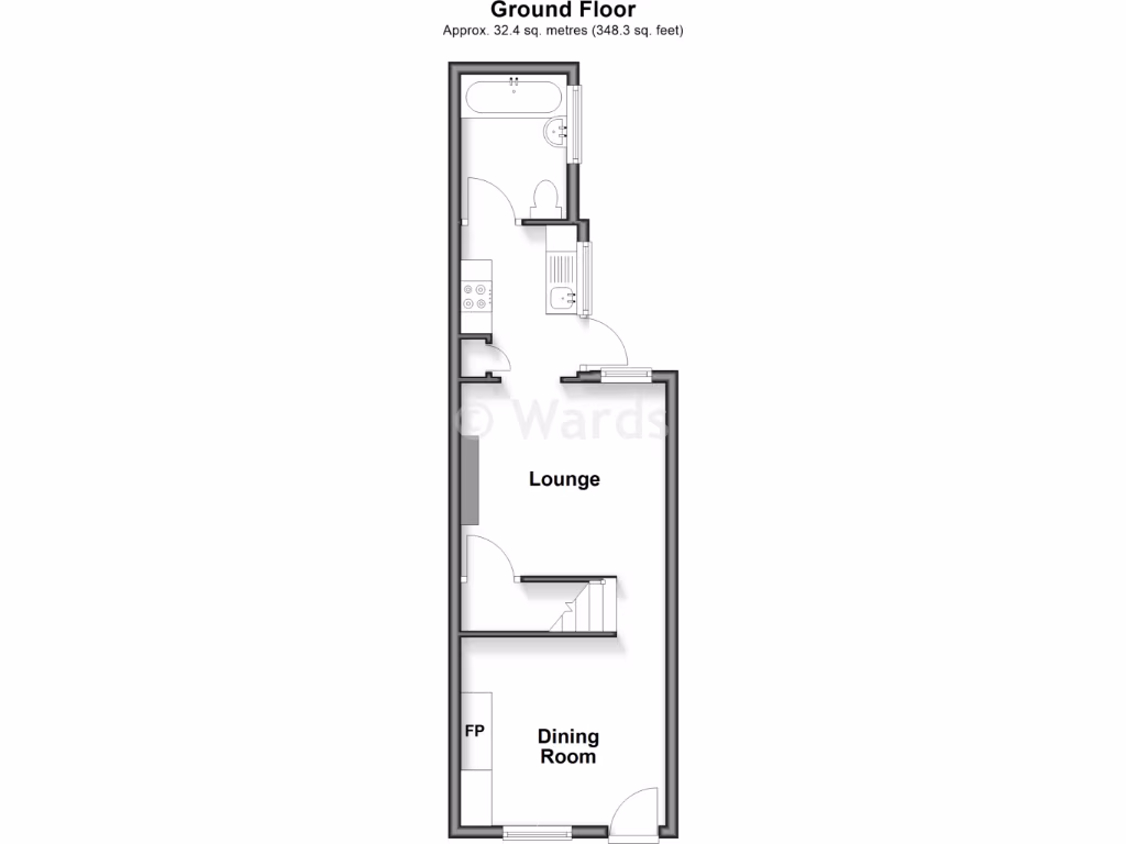
Two bedrooms, separate dining room, one bathroom
Small front and rear gardens; limited outdoor space
Lifetime Lease option for over-60s (guide price £172,000)
Full market value £260,000; Lifetime share up to 50% possible
Solid stone walls likely uninsulated; verify insulation status
This Victorian two-bedroom terrace offers a compact, freshly renovated home in a popular Maidstone location. Period features and sympathetic decoration sit alongside practical upgrades such as replacement double glazing and a modern gas boiler with radiators. The property suits someone seeking low-maintenance living with a small private garden and easy access to local shops and amenities.
The house is an end-terrace of modest proportions: two similar-sized bedrooms, a separate dining room, lounge and a single bathroom. The footprint is approximately 689 sq ft, so rooms are cosy rather than expansive — ideal for downsizers or retirement buyers seeking manageable space rather than large family accommodation. The front and rear outdoor spaces are small but useable.
A Lifetime Lease option is available for purchasers aged 60 and over, allowing buyers to purchase a share (up to 50%) of the property value at a reduced upfront price. Guide figures provided suggest a Lifetime Lease price of £172,000 (market value £260,000) based on an illustrative saving of around 33%; actual cost varies by age and personal circumstances. The property is offered freehold and is newly renovated, but some original solid stone walls are likely uninsulated (assumed). Buyers should verify all details and legal information independently.
3 bedroom terraced house for sale in Gladstone Road, Penenden Heath, Maidstone, Kent, ME14 — £172,000 • 3 bed • 1 bath • 657 ft²
2 bedroom terraced house for sale in Varnes Street, Eccles, Aylesford, Kent, ME20 — £175,500 • 2 bed • 1 bath • 619 ft²
2 bedroom terraced house for sale in Cork Street, Eccles, Aylesford, Kent, ME20 — £172,000 • 2 bed • 1 bath • 625 ft²
2 bedroom terraced house for sale in Sandling Road, Maidstone, Kent, ME14 — £218,000 • 2 bed • 1 bath • 957 ft²
2 bedroom terraced house for sale in Burghclere Drive, Maidstone, Kent, ME16 — £191,500 • 2 bed • 1 bath • 461 ft²
2 bedroom terraced house for sale in Montfort Road, Strood, Rochester, Kent, ME2 — £172,000 • 2 bed • 1 bath • 894 ft²






















































