Bright extended family home with garden and garage in a sought-after school catchment.
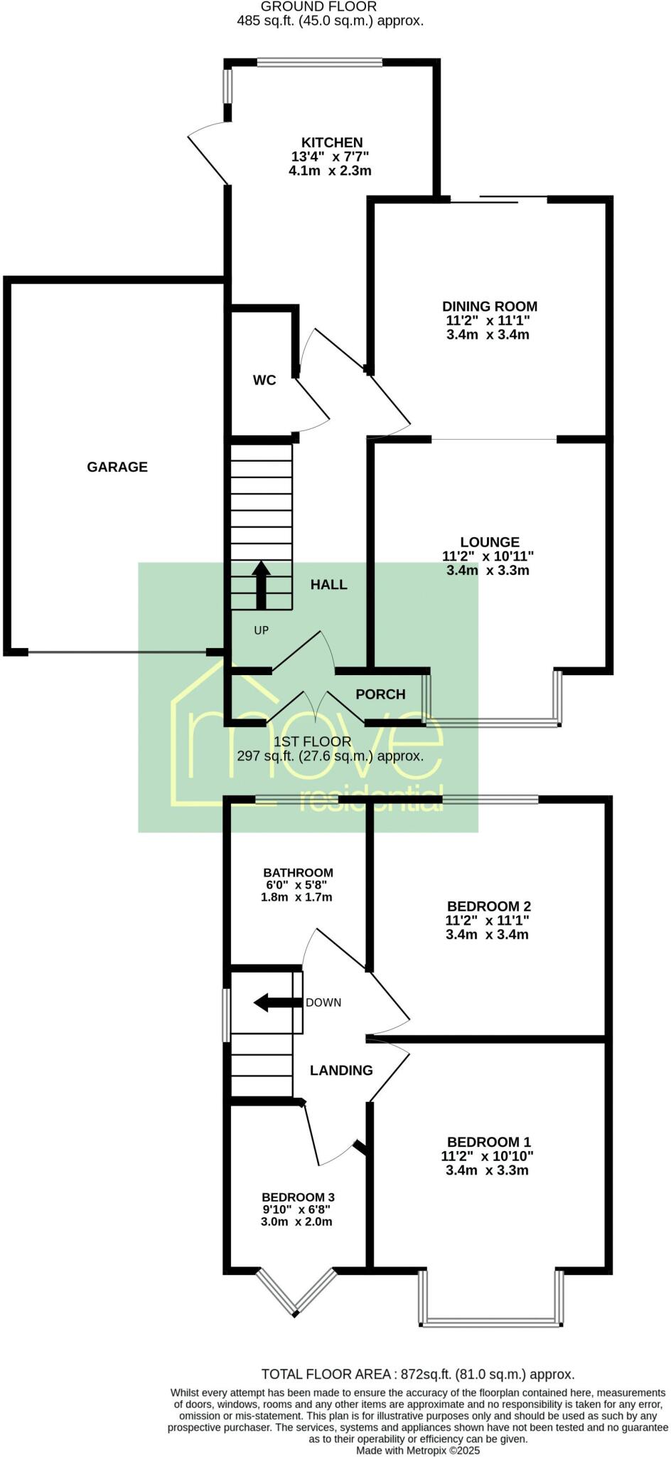
- Three bedrooms; master with bay window
- Extended, modern fitted kitchen with parquet-style flooring
- Spacious lounge plus separate dining area with sliding doors
- Large rear garden with lawn and patio
- Off-road driveway parking and integral garage
- Chain free sale; offered as leasehold tenure
- Single family bathroom only; one WC downstairs
- Total area approx 872 sq ft (average sized)
Set on a sought-after Childwall road, this three-bedroom semi-detached home combines mid‑century character with a contemporary finish. An extended ground floor provides a bright lounge, separate dining space and a stylish fitted kitchen with parquet-style flooring — a practical family layout that flows to the rear garden.
Upstairs offers two generous double bedrooms and a well-proportioned single, all receiving good daylight; the master benefits from a bay window. A modern three-piece family bathroom serves the household, while a convenient ground-floor WC adds everyday practicality.
Outside features include a sizable rear garden with lawn and patio, off-street driveway parking and an integral garage for storage. The property is offered chain free on a leasehold tenure — ideal for buyers wanting a quick move-in in an affluent, well-served suburb.
Local amenities include several highly rated primary and secondary schools, fast broadband and excellent mobile signal, making the house particularly suitable for growing families seeking good connectivity and school options. Note: the home has a single bathroom and is leasehold, which may affect some buyers' long-term plans.
3 bedroom semi-detached house for sale in Okehampton Road, Childwall, Liverpool, L16 — £325,000 • 3 bed • 1 bath • 859 ft²
3 bedroom semi-detached house for sale in Padstow Road, Liverpool, Merseyside, L16 — £305,000 • 3 bed • 2 bath • 833 ft²
3 bedroom semi-detached house for sale in Stand Park Road, Childwall, Liverpool, L16 — £500,000 • 3 bed • 1 bath • 1612 ft²
3 bedroom semi-detached house for sale in Sulgrave Close, Childwall, Liverpool, L16 — £215,000 • 3 bed • 1 bath • 646 ft²
3 bedroom semi-detached house for sale in Thornton Road, Childwall, Liverpool, L16 — £325,000 • 3 bed • 1 bath • 1075 ft²
3 bedroom semi-detached house for sale in Okehampton Road, Liverpool, Merseyside, L16 — £275,000 • 3 bed • 1 bath • 783 ft²






































































