Chain-free family home with large garden and off-street parking.
Bay-fronted through lounge with strong natural light
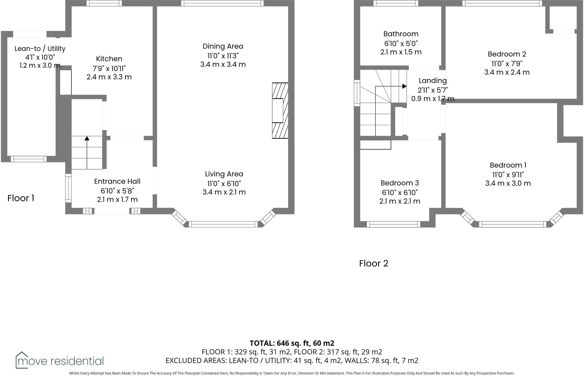
Three bedrooms and one family bathroom (single bathroom only)
Substantial rear garden, suitable for family use
Off-road parking, driveway and detached garage present
Kitchen dated with limited ventilation — requires updating
Chain free sale; immediate availability to move
Leasehold tenure; internal area approx. 646 sq ft
Good mobile signal and fast broadband; low council tax
Set on Sulgrave Close in desirable Childwall, this three-bedroom semi offers a practical family layout and substantial rear garden. The property is offered chain free and presents a ready-to-live-in home with clear scope to personalise and modernise where desired.
Ground floor accommodation includes an entrance hall, bay-fronted through lounge that benefits from strong natural light, a fitted kitchen and a useful lean-to/utility. The kitchen is dated with ventilation limitations and would benefit from updating to improve functionality and efficiency. One family bathroom serves the three first-floor bedrooms.
Outside there is off-road parking and a driveway with garage, plus a sizeable rear garden that will suit families and gardeners alike. Practical details: leasehold tenure, overall internal area c.646 sq ft, no flooding risk, good mobile signal and fast broadband, and relatively low council tax.
This home suits a buyer seeking an established suburban property in a well-regarded area near good schools, who values immediate chain-free occupation but is prepared to carry out cosmetic or targeted refurbishment to kitchen and décor.
3 bedroom semi-detached house for sale in Padstow Road, Childwall, Liverpool, L16 — £315,000 • 3 bed • 1 bath • 872 ft²
3 bedroom semi-detached house for sale in Padstow Road, Liverpool, Merseyside, L16 — £315,000 • 3 bed • 2 bath • 833 ft²
3 bedroom semi-detached house for sale in Okehampton Road, Childwall, Liverpool, L16 — £325,000 • 3 bed • 1 bath • 859 ft²
5 bedroom semi-detached house for sale in Sulgrave Close, Childwall, Liverpool, L16 — £450,000 • 5 bed • 1 bath • 1373 ft²
3 bedroom semi-detached house for sale in Okehampton Road, Liverpool, Merseyside, L16 — £275,000 • 3 bed • 1 bath • 783 ft²
3 bedroom semi-detached house for sale in Thornton Road, Childwall, Liverpool, L16 — £335,000 • 3 bed • 1 bath • 1075 ft²














































