Light-filled family living with private garden backing onto Court Hey Park.
Bay-fronted lounge with natural light and fireplace
Separate dining room with sliding doors to rear garden
Fitted kitchen plus useful utility room
Two double bedrooms and a large single room
Contemporary three-piece family bathroom (single bathroom)
Private paved garden backing onto Court Hey Park, direct access
Driveway parking plus integral garage for storage
Leasehold tenure — buyers should confirm terms and charges
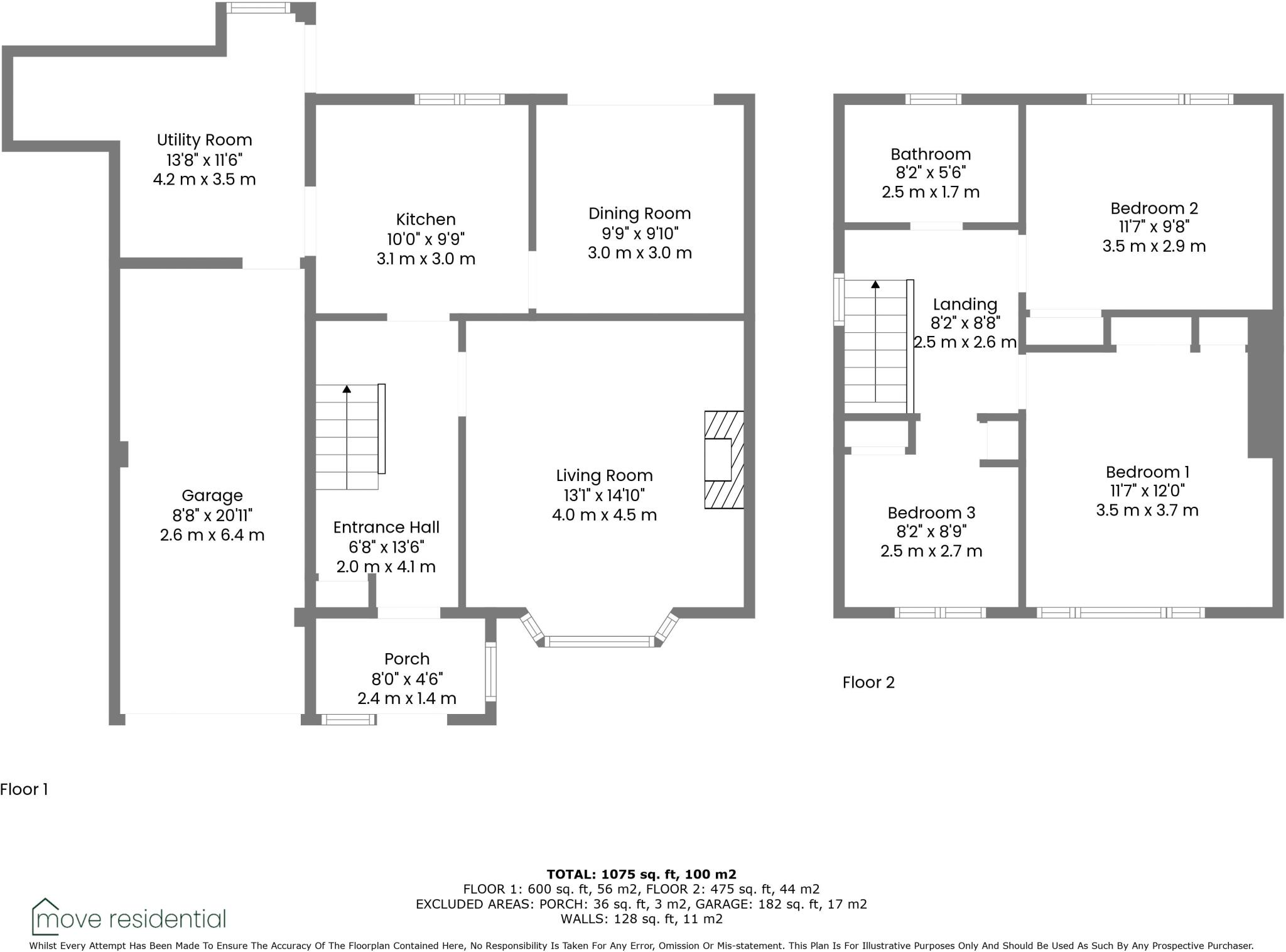
Set on Thornton Road in desirable Childwall, this three-bedroom semi offers comfortable, well-presented family living across two floors. A bay-fronted lounge and separate dining room provide flexible reception space, while the kitchen and adjoining utility deliver practical day-to-day functionality.
Upstairs are two generous double bedrooms and a large single, served by a contemporary three-piece bathroom. The accommodation is bright, tastefully finished and ready to move into, appealing to families seeking space without major renovation work.
Outside, a flagged rear garden with pergola backs directly onto Court Hey Park and is not overlooked, creating a private outdoor room with direct park access. The paved front drive and integral garage provide off-road parking and storage.
Important considerations: the property is leasehold and has a single bathroom for three bedrooms. Overall size is average for this house type, so buyers wanting larger footprint space should check room dimensions and garage conversion potential.
3 bedroom semi-detached house for sale in Thornton Road, Childwall, Liverpool, L16 — £325,000 • 3 bed • 1 bath • 910 ft²
3 bedroom semi-detached house for sale in Thornton Road, Childwall, L16 — £325,000 • 3 bed • 1 bath • 1217 ft²
3 bedroom semi-detached house for sale in Stand Park Road, Childwall, Liverpool, L16 — £500,000 • 3 bed • 1 bath • 1612 ft²
3 bedroom semi-detached house for sale in Babbacombe Road, Childwall, Liverpool, L16 — £595,000 • 3 bed • 2 bath • 1749 ft²
3 bedroom semi-detached house for sale in Padstow Road, Childwall, Liverpool, L16 — £315,000 • 3 bed • 1 bath • 872 ft²
3 bedroom semi-detached house for sale in Christopher Way, Childwall, Liverpool, Merseyside, L16 — £250,000 • 3 bed • 1 bath • 558 ft²






































































