**Standout Features:**
- Size: Spacious 4-bedroom detached property (3503 sq. ft.)
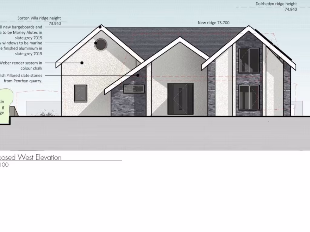
- Planning consent granted for a new build with no restrictions on permanent or second home use
- Stunning panoramic views of Cardigan Bay and the Cambrian Mountains
- Eco-friendly options: solar power and heat pump
- Ideal for families or investors: renovation or redevelopment potential
- Excellent mobile signal and fast broadband speeds
**Concerns:**
- Current property requires complete refurbishment
- Expensive council tax
- Located in a very deprived area
Discover a diamond in the rough with Tlysfan, a spacious detached residence nestled in a picturesque elevated position near the sought-after seaside village of Abersoch. Spanning over 3503 square feet, this property boasts breathtaking views over Cardigan Bay and towards the majestic Snowdonia range. With planning permission already granted for an exquisite new eco-friendly 4-bedroom home, you have the opportunity to renovate the existing structure or design a bespoke living environment tailored to your preferences.
While the current cottage-style dwelling is in need of complete refurbishment, its generous layout includes 4 bedrooms, a sun lounge, and expansive living spaces positioned perfectly to take advantage of the surroundings. The area is characterized by its low crime rate and excellent communication services, making it not only a beautiful retreat but also a secure place to live. However, it's essential to consider the relatively high council tax and the property's current state, which may require significant investment and time.
This unique offering is ideal for families seeking a tranquil lifestyle or investors looking for a lucrative opportunity in a charming community with direct access to coastal paths and nearby beaches. Embrace the potential of Tlysfan—where renovation dreams can become reality—before this opportunity disappears from the market!
4 bedroom detached house for sale in Bwlchtocyn, Abersoch, Gwynedd, LL53 — £625,000 • 4 bed • 2 bath • 2269 ft²
3 bedroom detached house for sale in Abersoch, Gwynedd, LL53 — £575,000 • 3 bed • 2 bath • 1587 ft²
4 bedroom detached house for sale in Lon Sarn Bach, Abersoch, Gwynedd, LL53 — £1,250,000 • 4 bed • 4 bath • 2137 ft²
3 bedroom detached house for sale in Abersoch, Gwynedd, LL53 — £595,000 • 3 bed • 2 bath • 1417 ft²
5 bedroom bungalow for sale in Mynytho, Gwynedd, LL53 — £495,950 • 5 bed • 2 bath • 2132 ft²
3 bedroom detached house for sale in Abersoch, Gwynedd, LL53 — £650,000 • 3 bed • 2 bath • 1988 ft²










































