**Standout Features:**
- Newly built, eco-friendly property with planning permission for bespoke residence
- Scenic views across Cardigan Bay and the Snowdonia range
- Spacious detached house on a large 0.26-acre plot, with a total of 2,269 sq. ft
- Located in the desirable hamlet of Bwlchtocyn, just 2 miles from Abersoch beach
- Excellent mobile signal and fast broadband speeds
- Environmentally-friendly features including solar power and modern heating systems
**Notable Concerns:**
- Existing structure requires complete refurbishment
- Current heating is diesel LPG, which may need upgrading
- Crime rate is low, but local area is classified as very deprived
Experience unparalleled coastal living with this unique opportunity to purchase a detached residence in the picturesque hamlet of Bwlchtocyn. Set on an impressive 0.26-acre plot, this property offers stunning panoramic views of Cardigan Bay and the majestic Snowdonia mountains. Spanning over 2,200 sq. ft., the current home features 4 bedrooms and ample living space, though it is in need of extensive refurbishment.
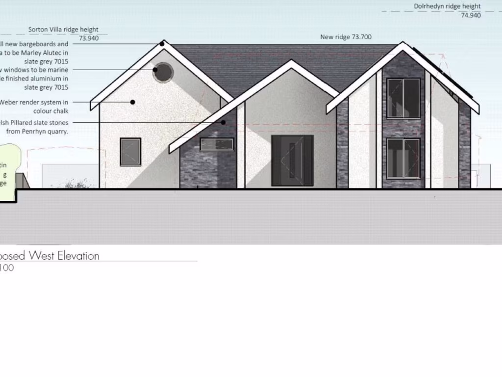
What sets this property apart is the granted planning permission for a high-end, eco-friendly new build, designed by JAR Architecture. Imagine transforming this space into your dream home with a seamless open-plan layout, expansive views, and solar power capabilities—perfect for family living or as a rewarding investment. With easy access to Abersoch's thriving beach life and recreational activities, as well as outstanding communication links to major cities, this gem is not to be overlooked. Act now to secure this exceptional opportunity; properties like this don’t stay on the market for long!
4 bedroom detached house for sale in Bwlchtocyn, Nr Abersoch, Gwynedd, LL53 — £625,000 • 4 bed • 2 bath • 3503 ft²
4 bedroom detached house for sale in Lon Sarn Bach, Abersoch, Gwynedd, LL53 — £1,250,000 • 4 bed • 4 bath • 2137 ft²
3 bedroom detached house for sale in Abersoch, Gwynedd, LL53 — £575,000 • 3 bed • 2 bath • 1587 ft²
4 bedroom detached house for sale in Abersoch, Gwynedd, LL53 — £750,000 • 4 bed • 2 bath • 1742 ft²
4 bedroom link detached house for sale in Tan Y Gaer, Abersoch, Gwynedd, LL53 — £595,000 • 4 bed • 3 bath • 1973 ft²
3 bedroom detached house for sale in Abersoch, Gwynedd, LL53 — £595,000 • 3 bed • 2 bath • 1417 ft²






























