**Standout Features:**
- End-terrace home with spacious interior and three bedrooms
- Separate conservatory with remote awning
- Functional kitchen with ample storage and worktop space
- Ground floor cloakroom and utility room
- Gas heating and UPVC double-glazed windows
- Paved rear garden with potential for parking
- No onward chain, offering an immediate move-in opportunity
- Located in a family-friendly neighborhood with good schools nearby
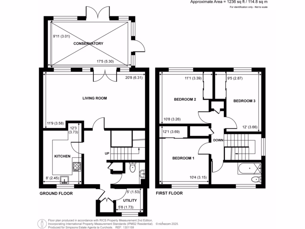
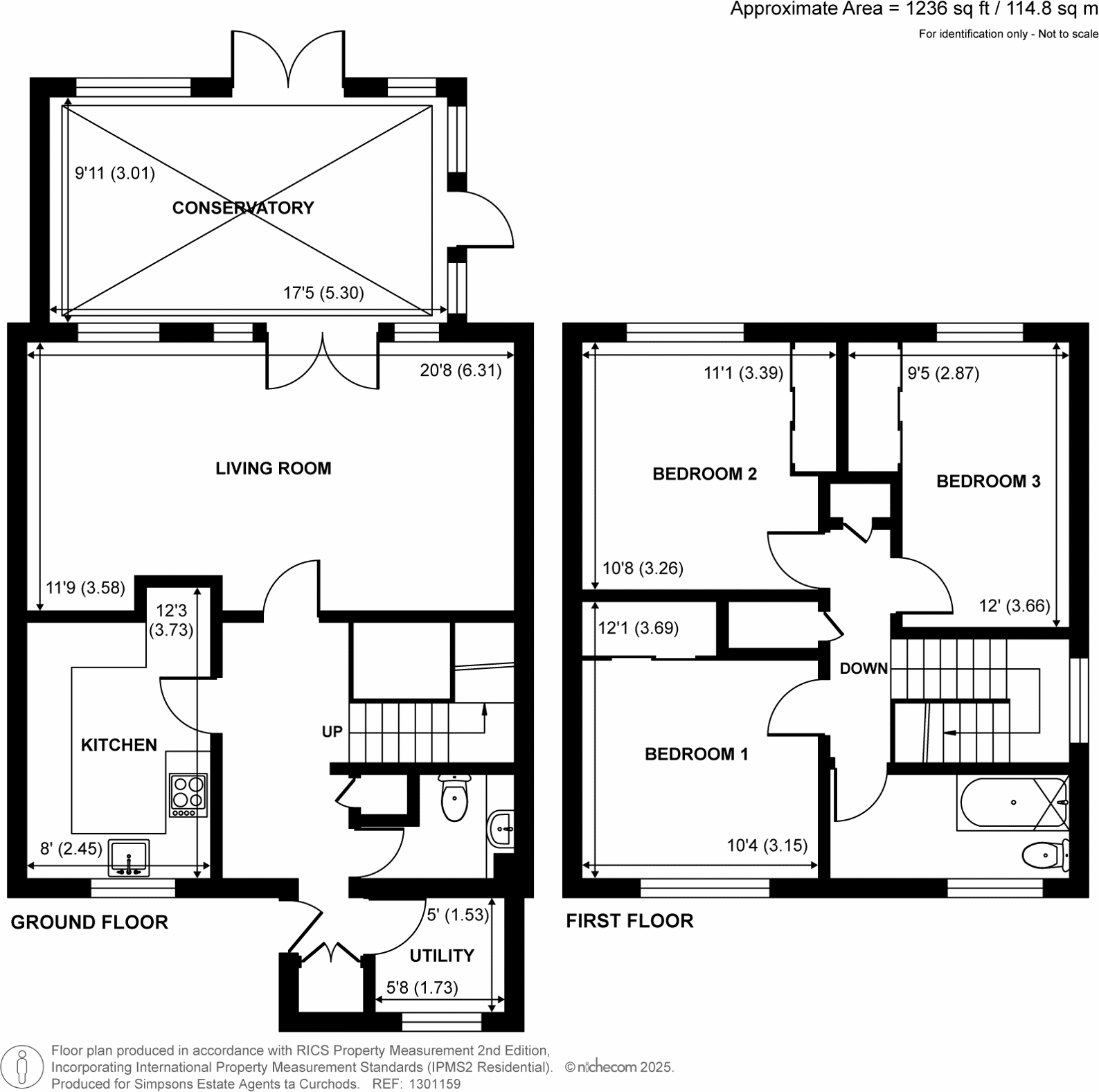
This three-bedroom end-terrace home is a fantastic opportunity for families or investors looking to make their mark. Offering a generous floor plan spanning approximately 1,236 sq ft, this property features a spacious living room leading into a bright conservatory, perfect for relaxation or entertaining. The functional kitchen, while in need of some modern touches, is equipped with plenty of storage and counter space, making it a great canvas for renovation.
Upstairs, you will find three well-sized bedrooms, providing comfortable living space for a growing family, alongside a conveniently positioned family bathroom. The outdoor area includes a compact, paved garden that is easily maintanable, affording private outdoor enjoyment. Although the property may require some modernization, its chain-free status and potential make it an ideal choice for those wanting to create their dream home in a desirable location.
With excellent local schools and amenities within reach, this charming property presents a unique opportunity that won't last long in today's market!
3 bedroom end of terrace house for sale in Ambleside Avenue, Walton-On-Thames, KT12 — £525,000 • 3 bed • 1 bath • 900 ft²
3 bedroom end of terrace house for sale in Naseby Court, Clements Road, Walton-on-Thames, Surrey, KT12 — £450,000 • 3 bed • 1 bath • 966 ft²
3 bedroom end of terrace house for sale in Shaw Drive, WALTON-ON-THAMES, KT12 — £485,000 • 3 bed • 1 bath • 825 ft²
3 bedroom terraced house for sale in Carlton Road, Walton-on-Thames, KT12 — £450,000 • 3 bed • 1 bath • 1000 ft²
3 bedroom terraced house for sale in Rodney Road, Walton-on-Thames, Surrey, KT12 — £450,000 • 3 bed • 1 bath • 778 ft²
3 bedroom terraced house for sale in Alexandra Close, Walton-On-Thames, KT12 — £610,000 • 3 bed • 1 bath • 1198 ft²






















































