Ready-to-occupy workspace with extensive parking and recent full refurbishment.
- Fully refurbished two-storey detached office building
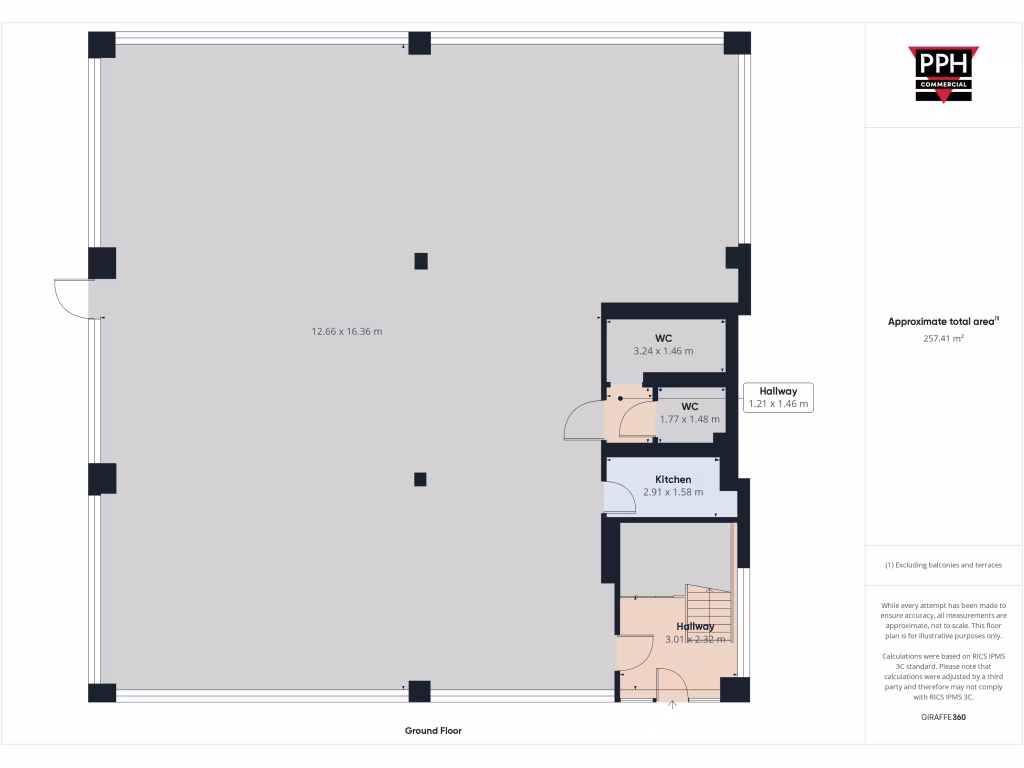
- Large overall area: 5,081 sq ft across two floors
- 19 private off-street car parking spaces allocated
- Air conditioning throughout and LED lighting installed
- Open-plan layout with new kitchens and WC facilities
- Fast broadband and excellent mobile signal
- Local crime rate is above average; verify security needs
- Tenure unknown — legal/title checks recommended
A substantial two-storey commercial building refurbished throughout and offered at £650,000. The property extends to 5,081 sq ft with a large plot and 19 allocated private car parking spaces, making it well suited to occupying businesses or investors seeking an income-producing office in Hull.
The interior is largely open-plan across ground and first floors, fitted with suspended ceilings, LED lighting, new floor coverings, new kitchen and WC facilities and full air-conditioning. Large windows provide good natural light and the layout supports a straightforward fit-out or immediate occupation.
Practical strengths include fast broadband, excellent mobile signal and recent refurbishment that reduces immediate capital expenditure. Notable considerations are the above-average local crime rate and an unknown tenure status, which buyers should verify. The building sits in a mixed commercial/suburban area with convenient access to local amenities and transport routes.
Overall this is a ready-to-use, modern office asset with clear parking and servicing advantages, suitable for owner-occupation or as an investment with relatively low immediate refurbishment need.
Office for sale in Ground Floor 4 Earls Court, Henry Boot Way, Hull, East Yorkshire, HU4 — £925,000 • 1 bed • 1 bath • 3550 ft²
Office for sale in Office 4 The Beacon, Brighton Street, Hull, HU3 4AE, HU3 — POA • 1 bed • 1 bath • 10464 ft²
Office for sale in Unit 6 Marfleet Environmental Industries Park, Hedon Road, Hull, East Yorkshire, HU9 5LW, HU9 — £495,000 • 1 bed • 1 bath • 5062 ft²
Office for sale in Grosvenor Street, Hull, East Yorkshire, HU3 — £300,000 • 1 bed • 1 bath • 2821 ft²
Office for sale in Office Block Lorraine Street, Hull, East Yorkshire, HU8 — £200,000 • 1 bed • 1 bath • 5892 ft²
Office for sale in Unit 7 Marfleet Environmental Industries Park, Hedon Road, Hull, HU9 5LW, HU9 — £285,000 • 1 bed • 1 bath • 3042 ft²










































































