Chain-free extended semi with new kitchen, two-car parking and garden.
Extended three-bedroom semi-detached with potential fourth bedroom/study
Brand-new fitted kitchen-diner installed recently
New gas combi boiler fitted May 2024
Two-car driveway and private rear garden with decking and shed
UPVc double glazing throughout, mains gas central heating
Small plot size and only one family bathroom
Medium flood risk — insurance/mitigation likely needed
Located in a cul-de-sac with very low local crime
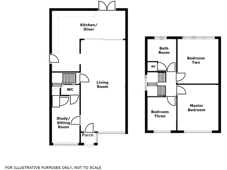
This extended three-bedroom semi-detached home on Bridge Avenue offers flexible living across an average-sized 1002 sq ft layout. A brand-new fitted kitchen-diner and a recently installed gas combi boiler (May 2024) reduce immediate maintenance costs, while UPVc double glazing keeps running costs lower. The house is chain free and has off-street parking for two cars and a private rear garden with decking and shed.
Accommodation suits a family seeking practical space: a large open-plan living room, a versatile study/playroom (usable as a fourth bedroom), and three well-proportioned bedrooms served by a modern family bathroom. Local schools include several 'Good' rated primaries and secondaries nearby, supporting family life in this residential cul-de-sac.
Be straightforward about the limitations: the plot is small and the property sits in an area described as 'endeavouring social renters' with average deprivation. Flood risk is medium and there is only one bathroom, so buyers wanting larger gardens, additional bathrooms, or lower environmental risk should factor potential costs for adaptation or insurance. Overall, this is a practical, move-in-ready home with renovation potential and no onward chain.
2 bedroom semi-detached house for sale in Woody Bank, Cheslyn Hay, WS6 — £210,000 • 2 bed • 1 bath • 597 ft²
3 bedroom semi-detached house for sale in Littlewood Road, Cheslyn Hay, WS6 7EU, WS6 — £260,000 • 3 bed • 1 bath • 1071 ft²
3 bedroom semi-detached house for sale in Leveson Avenue, Cheslyn Hay, WS6 7BN, WS6 — £255,000 • 3 bed • 1 bath • 1145 ft²
3 bedroom semi-detached house for sale in Kestrel Way, Cheslyn Hay, Walsall, WS6 — £265,000 • 3 bed • 1 bath • 872 ft²
3 bedroom semi-detached house for sale in Coppice Close, Cheslyn Hay, WS6 7EZ, WS6 — £260,000 • 3 bed • 1 bath • 1023 ft²
3 bedroom semi-detached house for sale in Glenthorne Drive, Cheslyn Hay, WS6 7DD, WS6 — £230,000 • 3 bed • 1 bath • 1092 ft²






































































