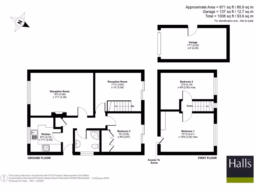
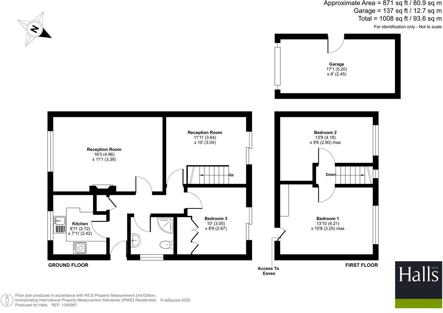
Three bedrooms including ground-floor bedroom with garden access
Two reception rooms; dining room with stairs to first floor
Fitted kitchen with built-in oven, hob and dishwasher
Single shower room only — no separate family bathroom upstairs
Garage, driveway parking and gated private rear garden
Double glazing fitted post-2002; mains gas central heating
871 sq ft — average-sized plot and living space, potential to update
Set at the head of a quiet cul‑de‑sac on Kidderminster’s northern edge, this semi‑detached dormer bungalow offers practical, well‑proportioned living across two floors. The ground floor provides a bright living room, separate dining room with French doors to the garden, a fitted kitchen and a ground‑floor bedroom. Two further bedrooms occupy the first floor with pleasant semi‑rural views and useful eaves storage.
The plot includes a tarmacked driveway leading to a single garage, plus private front and rear gardens with paved seating areas, an ornamental pond and a timber pergola. Practical upgrades are already in place: double glazing installed after 2002, mains gas boiler with radiators and an integrated kitchen with built‑in appliances.
This home will suit downsizers or a small family seeking a quiet residential street with easy access to local shops, bus routes and several well‑rated primary and secondary schools nearby. The property is freehold with a modest overall floor area (871 sq ft) and council tax band C.
Buyers should note there is a single shower room only and the accommodation is average in size for the age and style; some buyers may wish to update cosmetic finishes or reconfigure spaces to suit modern living. An inspection is recommended to assess layout and condition personally.
2 bedroom semi-detached bungalow for sale in Snowdon Close, Kidderminster, DY11 — £230,000 • 2 bed • 1 bath • 872 ft²
1 bedroom semi-detached bungalow for sale in Broomfield Close, Kidderminster, DY11 — £235,000 • 1 bed • 1 bath • 991 ft²
2 bedroom bungalow for sale in Devon Close, Kidderminster, Worcestershire, DY11 — £255,000 • 2 bed • 1 bath • 533 ft²
2 bedroom semi-detached bungalow for sale in The Orchards, Kidderminster, DY11 — £235,000 • 2 bed • 1 bath • 640 ft²
3 bedroom detached bungalow for sale in Highgate Close, Kidderminster, DY11 — £425,000 • 3 bed • 1 bath • 1101 ft²
3 bedroom detached bungalow for sale in Moule Close, Kidderminster, DY11 — £350,000 • 3 bed • 2 bath • 872 ft²






























































