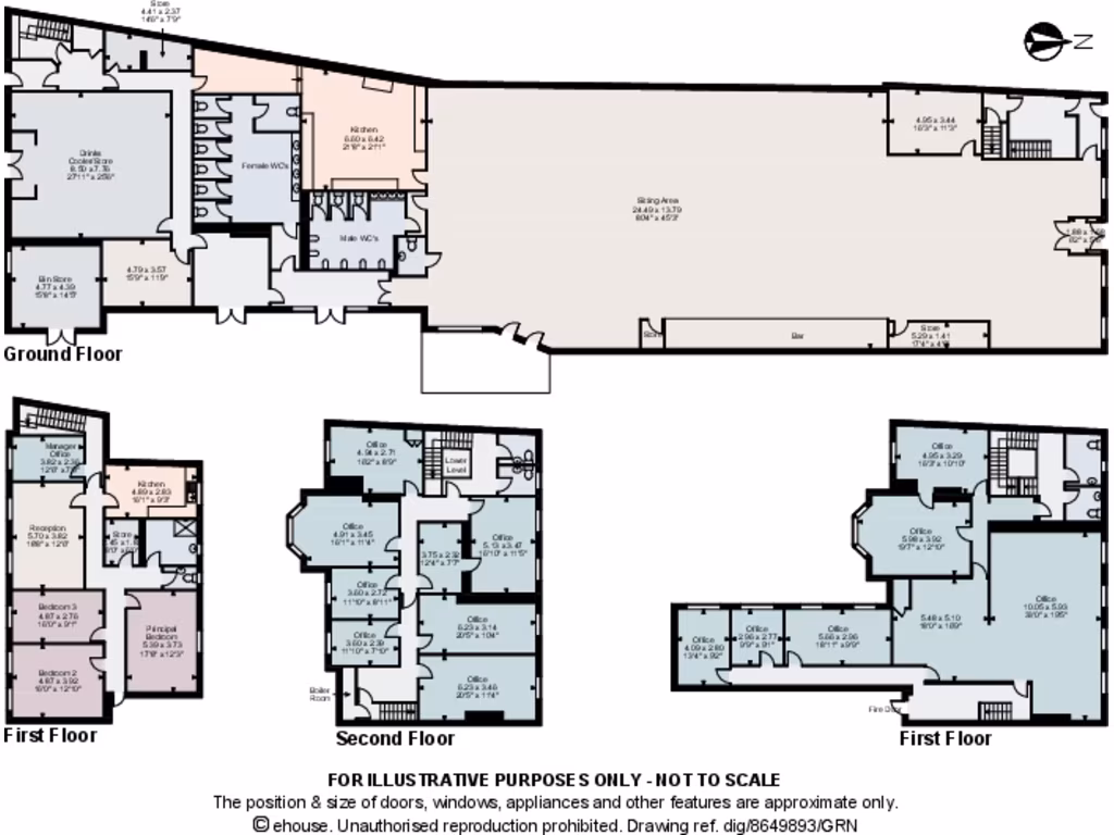
### Standout Features:
- Freehold city centre public house with office accommodation
- Prominent location on Hall Gate in a bustling leisure circuit
- Expansive ground floor open-plan trading area with casual dining setup
- First and second floor office spaces with separate access
- Sheltered outdoor beer patio with room for 40 covers
- Historic Grade II Listed building with renovation potential
- Total plot size of 0.26 acres and approximately 11,326 sq ft
### Property Summary:
This is an exceptional opportunity to acquire a freehold public house in the heart of Doncaster's vibrant city centre—ideal for investors or operators looking to harness the thriving nightlife scene. With its striking Georgian architecture and historic charm, the property features an expansive ground floor adorned with spacious, split-level trading areas accommodating around 120 diners, alongside a cocktail bar and essential facilities. The first and second floors house valuable office spaces, capable of offering flexible uses or even rental income potential.
Set within a prime leisure district, this property benefits from heavy foot traffic and is surrounded by popular bars and hotels, promising significant visibility and patronage. However, the property has a Grade II Listing, which may impose certain restrictions, requiring careful consideration during any renovation plans. With the current condition and extensive room count, it presents a canvas for rejuvenation or rebranding, all while maintaining the authenticity of its historic roots.
Don’t miss this fantastic chance to invest in a property with substantial potential in a rapidly evolving urban setting. Act quickly—opportunities like this in such a prime location are rare.
Pub for sale in Yates, 58-59 Hall Gate, Doncaster, DN1 3PB, DN1 — £375,000 • 1 bed • 1 bath • 10996 ft²
High street retail property for sale in Hall Gate, Doncaster , DN1 — £500,000 • 1 bed • 1 bath • 14175 ft²
High street retail property for sale in Hall Gate, Doncaster , DN1 — £375,000 • 1 bed • 1 bath • 10996 ft²
Pub for sale in Licenced Trade, Pubs & Clubs, South Yorkshire, DN1 — £150,000 • 1 bed • 1 bath
Pub for sale in Licenced Trade, Pubs & Clubs, South Yorkshire, DN1 — £700,000 • 1 bed • 1 bath
Pub for sale in The Railway, West Street, Doncaster, DN1 3AA, DN1 — £195,000 • 1 bed • 1 bath • 2178 ft²














































































