Compact, well-located family home with garden, garage and scope to personalise.
Three bedrooms with built-in wardrobe to main bedroom
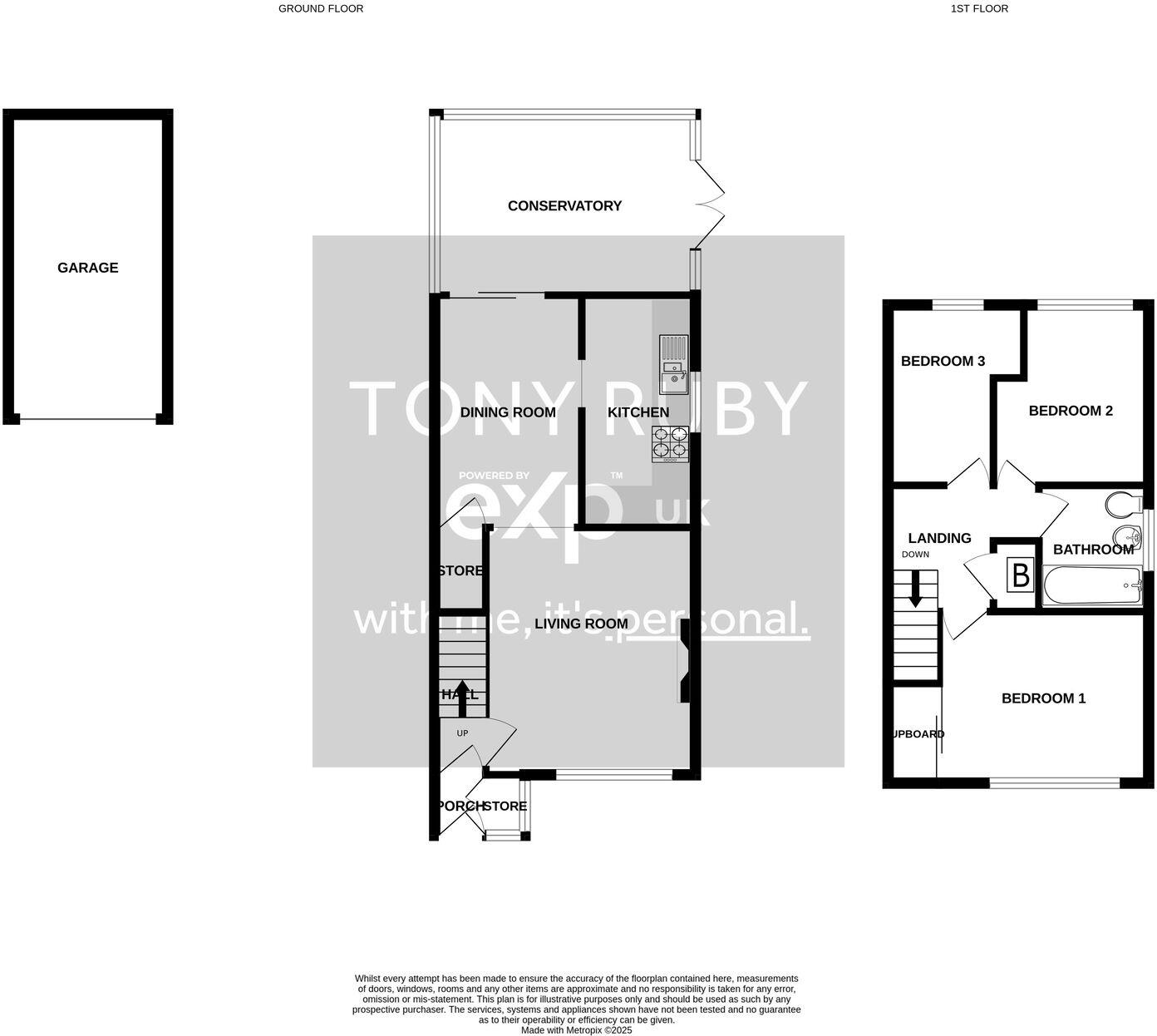
This three-bedroom semi-detached home in a quiet Grantham cul-de-sac suits first-time buyers or young families seeking ready-to-live-in accommodation with scope to personalise. The ground floor offers a lounge flowing into a dining room, a fitted kitchen and a sizeable conservatory that opens onto an enclosed rear garden — a straightforward layout for everyday living and informal entertaining.
Upstairs are three bedrooms and a shower room; the main bedroom has built-in wardrobes. Practical updates are already in place: gas central heating from a combi boiler, double glazing and an EPC rating of C. The property includes driveway parking, a garage and a decent-sized plot with lawn and patio — useful outside space in a small overall footprint (approx. 720 sq ft).
Notable points to consider: the home is compact and will suit buyers happy with modest room sizes. The conservatory has underfloor heating that was disconnected decades ago and would need reconnection if required. The double glazing appears to be older (pre-2002) and the garage has a felt roof, which may need attention in time. School options nearby include two highly rated secondary schools, while local amenities and good transport links are within easy reach.
Overall this is a practical, well-located freehold home offered at a competitive price for the area. It represents a low-maintenance baseline with clear short-term improvement opportunities for those wanting to add value or tailor the space to their needs.
3 bedroom semi-detached house for sale in Fifth Avenue in Grantham, NG31 — £200,000 • 3 bed • 1 bath • 882 ft²
3 bedroom semi-detached house for sale in Queensway in Grantham, NG31 — £210,000 • 3 bed • 1 bath • 860 ft²
3 bedroom semi-detached house for sale in Trent Road, Grantham , NG31 — £169,995 • 3 bed • 1 bath • 711 ft²
3 bedroom semi-detached house for sale in Dysart Road in Grantham, NG31 — £190,000 • 3 bed • 1 bath • 1022 ft²
3 bedroom semi-detached house for sale in Second Avenue, Grantham, NG31 — £210,000 • 3 bed • 1 bath • 862 ft²
3 bedroom semi-detached house for sale in St. Vincents Road in Grantham, NG31 — £230,000 • 3 bed • 1 bath • 830 ft²






















































































