Large three-storey house with garden and plentiful parking near top schools.
Chain-free detached house with c.3,451 sq ft living space
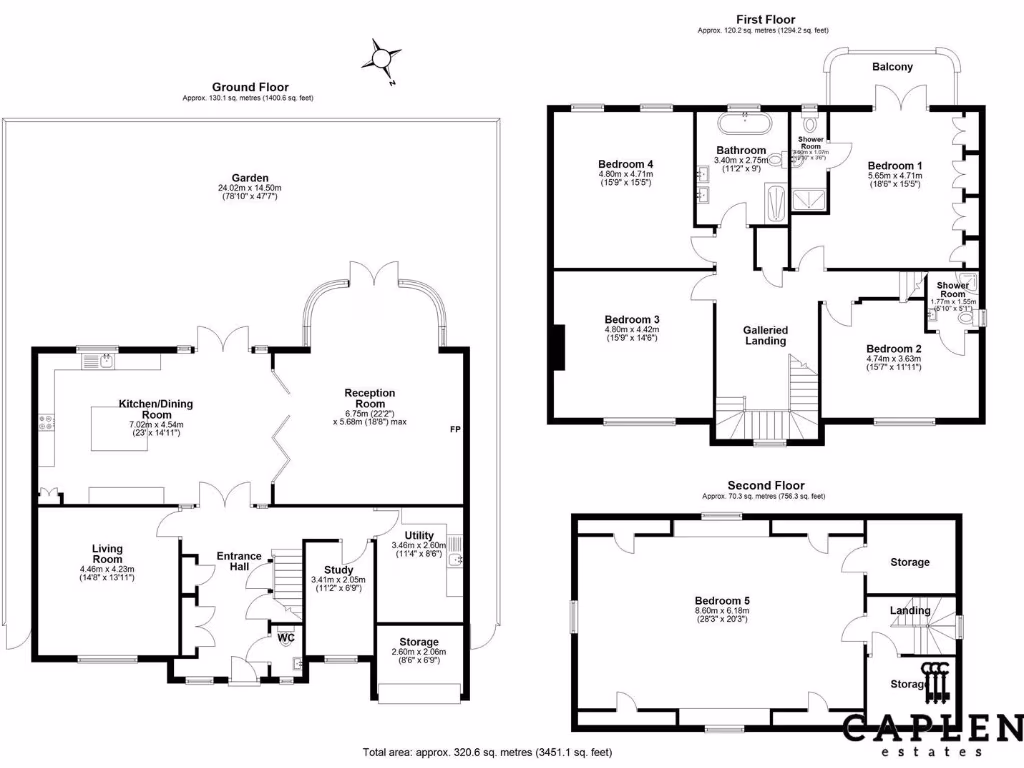
Set on a large plot in sought-after Woodford Green, this chain-free detached house offers substantial family living across three floors and about 3,451 sq ft. The ground floor is arranged for modern family life with a shaker-style kitchen, large open-plan dining/family room with bifold doors, and underfloor heating providing comfort throughout the ground level. Generous reception rooms, a study and plentiful storage add daily practicality.
Upstairs five double bedrooms include a principal suite with built-in wardrobes, en suite shower and balcony, plus a second en suite and a family bathroom — useful for busy households or multigenerational living. The tiered rear garden with large patio and mature planting suits alfresco dining and play, while off-street parking for 4–5 cars and an integral/modern garage are rare conveniences for the area.
The house is presented in largely market-ready condition but has a few material points to note: the property’s solid brick walls were built 1930–49 and are assumed to lack cavity insulation, and the double-glazing installation date is unknown — both factors that could affect future energy costs and improvement works. Council tax is described as quite expensive. There is no flooding risk and crime levels are very low.
This home will particularly suit families seeking space, good local schools and strong commuter links, or buyers looking for an executive-style residence with scope to personalise energy efficiency and minor finishes. Viewing is recommended to appreciate the scale and flow of the accommodation and the generous outdoor space.
2 bedroom town house for sale in Hawthorns, Woodford Green, IG8 — £635,000 • 2 bed • 1 bath • 1049 ft²
4 bedroom detached house for sale in Grovewood Place, Woodford Green, IG8 — £800,000 • 4 bed • 2 bath • 1454 ft²
4 bedroom detached house for sale in Chestnut Walk, Woodford Green, IG8 — £1,150,000 • 4 bed • 2 bath • 1905 ft²
5 bedroom detached house for sale in The Glade, Woodford Green, IG8 — £1,750,000 • 5 bed • 4 bath • 3161 ft²
5 bedroom semi-detached house for sale in St. Barnabas Road, Woodford Green, IG8 — £800,000 • 5 bed • 2 bath • 1502 ft²
3 bedroom terraced house for sale in Hawthorns, WOODFORD GREEN, Essex, IG8 — £635,000 • 3 bed • 1 bath • 953 ft²






























































































































































