Spacious four-bedroom detached home with wrap-around garden and garage, chain free..
4 spacious bedrooms, master with en suite and fitted wardrobes
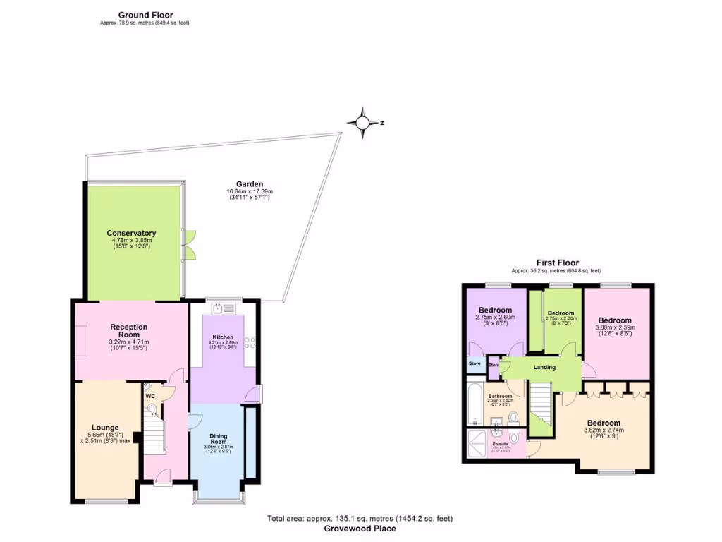
Large kitchen/breakfast room plus separate utility room
Three reception rooms plus downstairs WC; versatile family layout
Wrap-around garden with patio and lawn; decent plot size
Detached double garage and private drive for two cars
Constructed 1991–95; buyer should check service histories and surveys
Double glazing present; installation dates unknown
Freehold and chain free — ready for immediate purchase
Set on a corner plot in a quiet no-through road off Manor Road, this detached four-bedroom family home offers generous living space and practical outdoor areas. The property includes a large kitchen/breakfast room, separate utility, three reception rooms and a downstairs WC —format that suits daily family life and home working. The master bedroom has fitted wardrobes and an en suite; three further bedrooms share a newly fitted family bathroom.
Externally there is a wrap-around garden with patio and lawn, a detached double garage and private drive providing off-street parking for two cars. Constructed in the early 1990s, the house benefits from double glazing and gas central heating via boiler and radiators; some service dates (glazing install, boiler servicing) are not specified and should be checked by a buyer or surveyor.
Location is a key strength: established local schools rated Good, easy access to Hainault Country Park and convenient commuter links via the M11, M25 and nearby Central Line stations (Woodford, South Woodford, Chigwell). The property is offered chain free on freehold tenure, appealing to families seeking immediate possession and flexible moving plans.
Important practical notes: the build date (1991–95) means modern but not brand-new construction standards; buyers should commission standard pre-purchase checks and surveys. Crime is recorded at average for the area; broadband and mobile signals are strong. Overall this is a well-proportioned family home in an affluent neighbourhood, with clear potential to personalise and update to taste.
4 bedroom detached house for sale in Chestnut Walk, Woodford Green, IG8 — £1,150,000 • 4 bed • 2 bath • 1905 ft²
4 bedroom detached house for sale in Grovewood Place, Woodford Green, Essex, IG8 — £820,000 • 4 bed • 2 bath • 1532 ft²
4 bedroom detached house for sale in Woolhampton Way, Chigwell, Essex, IG7 — £775,000 • 4 bed • 1 bath • 1555 ft²
5 bedroom detached house for sale in Tamarind Grove, Chigwell, Essex, IG7 — £850,000 • 5 bed • 3 bath • 2145 ft²
4 bedroom end of terrace house for sale in Love Lane, Woodford Green, IG8 — £550,000 • 4 bed • 2 bath • 1674 ft²
5 bedroom semi-detached house for sale in St. Barnabas Road, Woodford Green, IG8 — £800,000 • 5 bed • 2 bath • 1502 ft²


















































































































