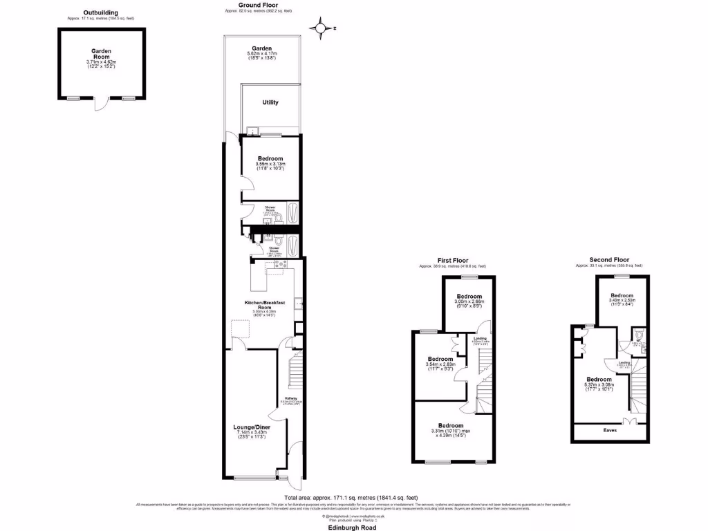
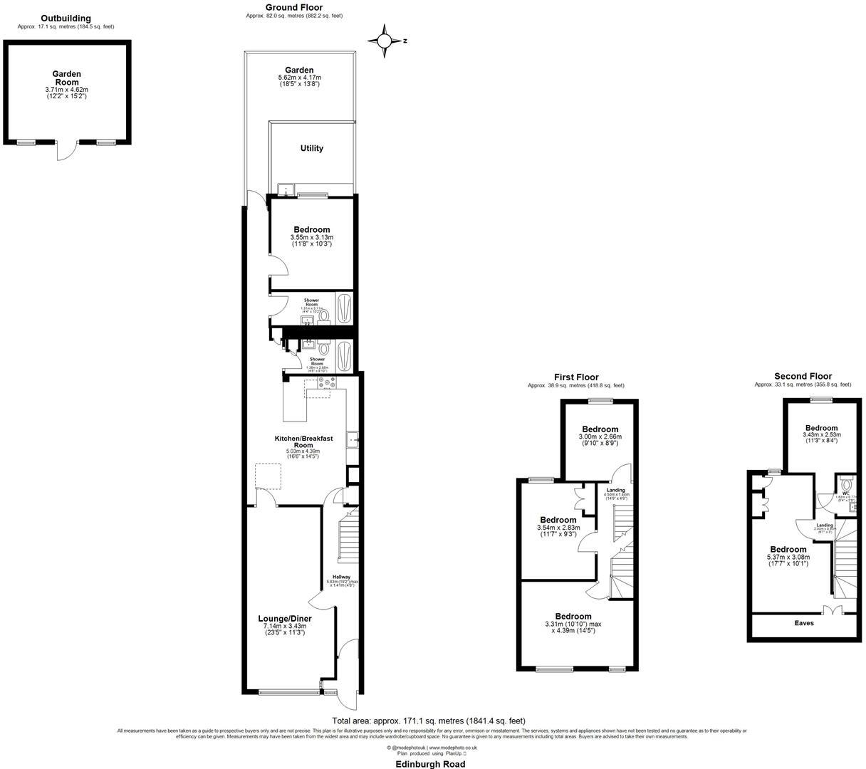
Five bedrooms, loft extension and garden room near Village amenities.
0.5 mile walk to Walthamstow Central (Victoria Line)
This well-proportioned mid-terrace townhouse offers flexible family living across three floors with five bedrooms and two shower rooms. The extended layout, including a loft conversion, creates a large principal bedroom with eaves storage and a generous kitchen/breakfast room that opens toward the garden. A separate garden room provides practical space for a home office, studio or gym.
Location is a clear strength: the property sits around a five- to ten-minute walk from Walthamstow Central (Victoria Line) and close to Walthamstow Village amenities, markets and multiple highly rated primary and secondary schools. The home benefits from good natural light, double glazing and mains gas central heating via boiler and radiators.
Buyers should note some material facts: the terrace was built c.1900–1929 and walls are solid brick with no confirmed insulation; buyer upgrades for thermal performance may be required. The plot footprint is typical for an inner-suburban terrace, so outdoor space is private but limited compared with detached houses. The wider area is classified as deprived with average local crime statistics.
Overall this property suits a growing family or multi-occupancy buyer seeking immediate space and excellent transport links, with scope to improve energy efficiency and add value through targeted refurbishment works.
5 bedroom house for sale in Second Avenue, Walthamstow, E17 — £1,400,000 • 5 bed • 3 bath • 1733 ft²
5 bedroom terraced house for sale in Exeter Road, Walthamstow, London, E17 — £935,000 • 5 bed • 2 bath • 1408 ft²
4 bedroom house for sale in Tower Hamlets Road, Walthamstow, E17 — £850,000 • 4 bed • 2 bath • 1499 ft²
5 bedroom terraced house for sale in Lea Bridge Road, E17, Walthamstow, London, E17 — £750,000 • 5 bed • 2 bath • 1829 ft²
3 bedroom house for sale in Belgrave Road, Walthamstow, London, E17 — £700,000 • 3 bed • 1 bath • 1128 ft²
3 bedroom house for sale in Albert Road, Walthamstow, E17 — £950,000 • 3 bed • 1 bath • 1198 ft²






































































































































































