Large five-bed terrace minutes from Walthamstow Village and Central.
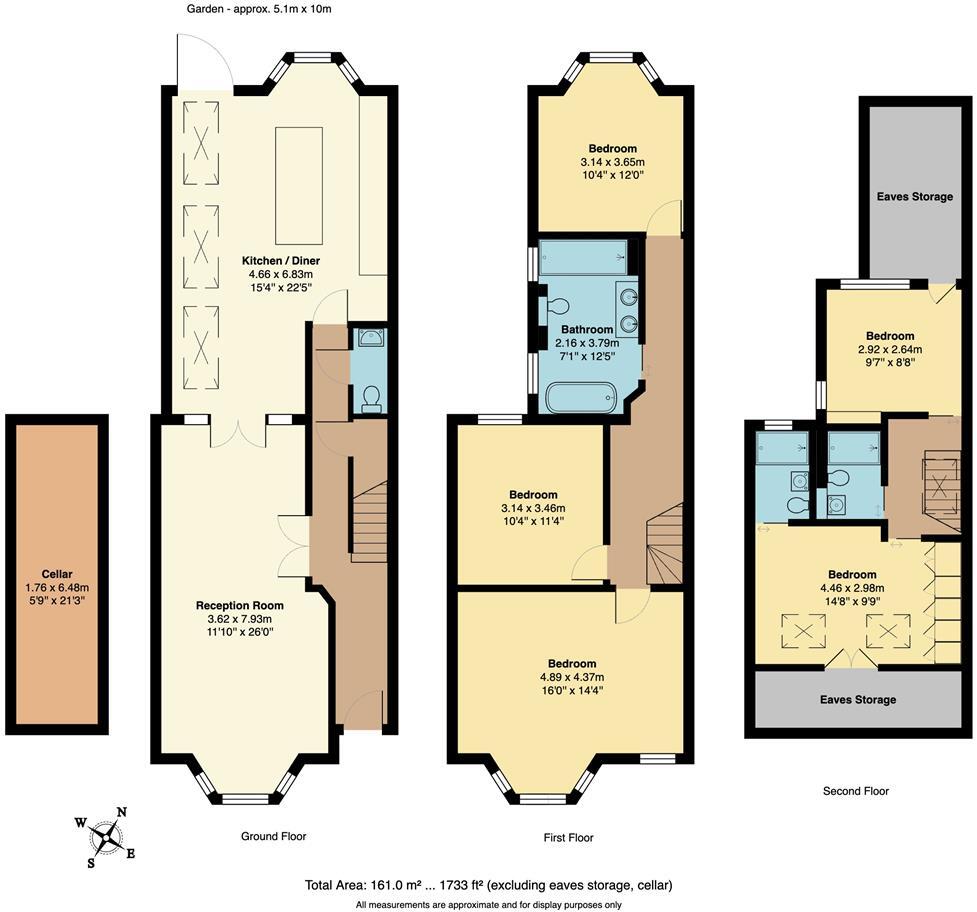
Five double bedrooms and three bathrooms plus downstairs WC
This handsome Victorian mid-terrace offers substantial family accommodation across three well-proportioned floors. Five double bedrooms, three bathrooms plus a ground-floor WC make it a rare find for East London households needing space. The large through reception and bright, extended kitchen-diner with skylights open directly onto a small but private garden, creating a practical layout for daily life and entertaining.
Characterful period details – bay windows, high ceilings and ornate cornice – combine with practical updates such as double glazing (installed post-2002) and modern kitchen and bathroom fittings. Additional storage is provided by a cellar and eaves, while mains gas central heating and a boiler with radiators supply efficient warmth throughout.
Location is a strong selling point: moments from Walthamstow Village’s cafés, pubs and parks, and within easy walking distance of Walthamstow Central and Queens Road stations for Victoria Line and Overground links. Good and outstanding local schools and green spaces such as Lloyd Park and the Walthamstow Wetlands add appeal for families.
Buyers should note a few material considerations. The plot is relatively small, typical of inner‑London terraces, and the property sits in an area with higher crime levels and local deprivation indicators; prospective purchasers should factor neighbourhood conditions into their decision. The original solid brick walls are recorded as having no insulating cavity (assumed), so further insulation work may be required to maximise energy performance. Council tax is moderate.
4 bedroom end of terrace house for sale in St. Johns Road, Walthamstow, E17 — £875,000 • 4 bed • 2 bath • 1321 ft²
4 bedroom terraced house for sale in Kingsley Road, Walthamstow, London, E17 — £900,000 • 4 bed • 2 bath • 1412 ft²
5 bedroom terraced house for sale in Albert Road, London, E17 — £950,000 • 5 bed • 3 bath • 2085 ft²
5 bedroom house for sale in Clarendon Road, Walthamstow, London, E17 — £1,150,000 • 5 bed • 1 bath • 2012 ft²
5 bedroom terraced house for sale in Copeland Road, Walthamstow, E17 — £1,500,000 • 5 bed • 2 bath • 1825 ft²
5 bedroom terraced house for sale in Turner Road, Walthamstow, London, E17 — £875,000 • 5 bed • 3 bath • 1239 ft²


































































































































































































