Large Park Hill family home with big garden and loft potential, close to Clapham Common.
Detached Victorian house with original period features
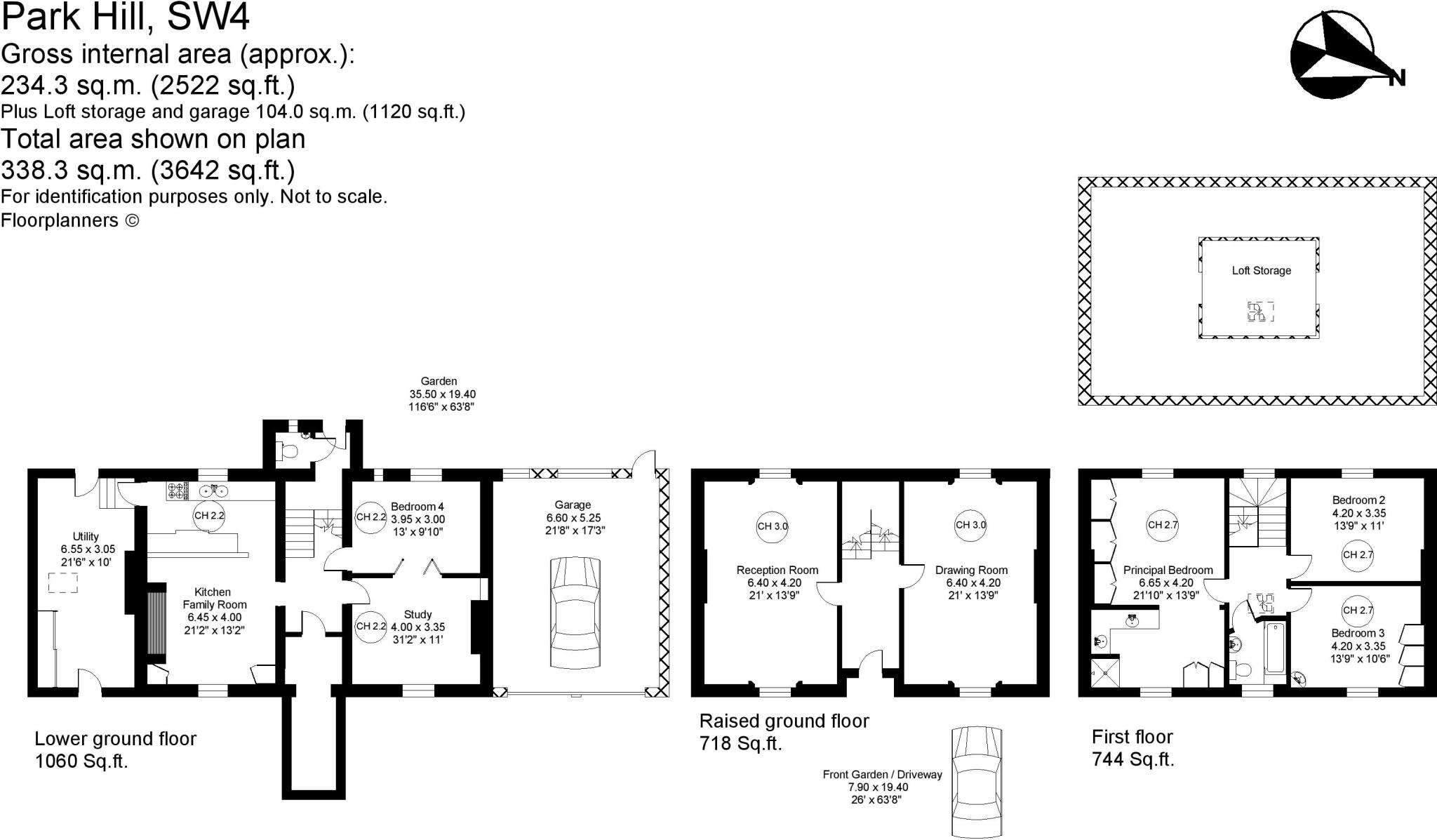
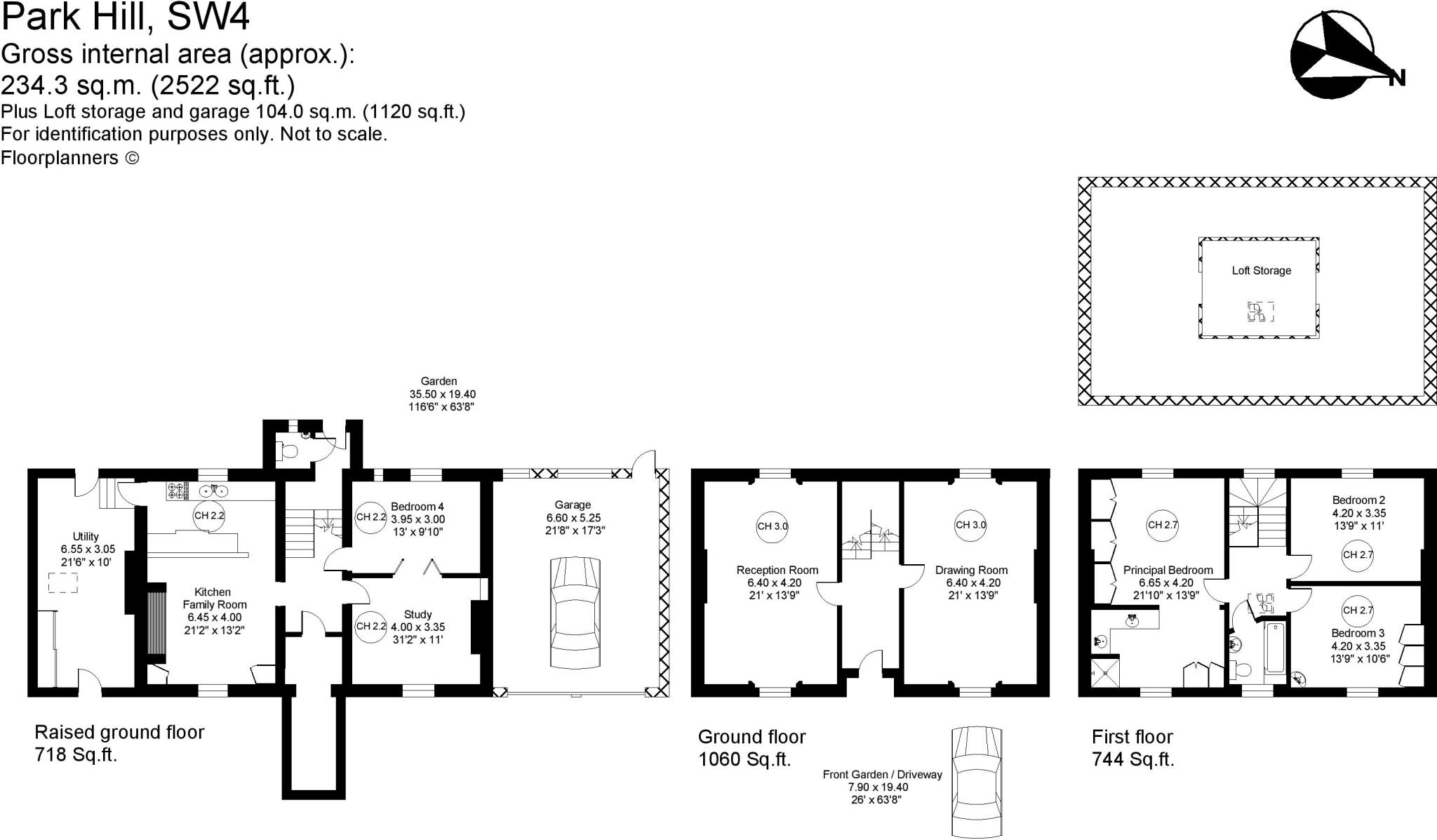
A striking detached Victorian family home on Park Hill offering generous living space (3,642 sq ft) and a large, private garden. High ceilings, bay windows, decorative fireplaces and substantial room proportions retain period character while delivering practical family layout across multiple levels.
The property offers clear scope to modernise: the kitchen/dining area, bathrooms and some internal finishes would benefit from updating. The solid brick construction appears uninsulated (as built), and the EPC rating is E — buyers should factor insulation and energy improvements into budgets. Loft conversion potential and the sizable lower-ground footprint present opportunity to add value (subject to consent).
Practical benefits include off-street parking, a garage with direct garden access, dual-level garden access and excellent local transport and schooling. Material drawbacks: EPC E, relatively high council tax, and likely investment required for modern heating/insulation and kitchen/bathroom refurbishment. Suited to growing families seeking location and space with renovation potential.
 4 bedroom house for sale in Park Hill, Clapham, SW4 — £1,895,000 • 4 bed • 2 bath • 2298 ft²
 4 bedroom house for sale in Park Hill, Clapham, SW4 — £1,895,000 • 4 bed • 2 bath • 2298 ft² 4 bedroom detached house for sale in Park Hill, Clapham, SW4., SW4 — £2,850,000 • 4 bed • 2 bath • 3642 ft²
 4 bedroom detached house for sale in Park Hill, Clapham, SW4., SW4 — £2,850,000 • 4 bed • 2 bath • 3642 ft² 5 bedroom detached house for sale in Poynders Road, SW4 8PS, SW4 — £1,250,000 • 5 bed • 2 bath • 1610 ft²
 5 bedroom detached house for sale in Poynders Road, SW4 8PS, SW4 — £1,250,000 • 5 bed • 2 bath • 1610 ft² 5 bedroom house for sale in Park Hill, Clapham, SW4 — £1,749,950 • 5 bed • 3 bath • 2459 ft²
 5 bedroom house for sale in Park Hill, Clapham, SW4 — £1,749,950 • 5 bed • 3 bath • 2459 ft² 3 bedroom semi-detached house for sale in Park Hill, Clapham, SW4 — £975,000 • 3 bed • 2 bath • 949 ft²
 3 bedroom semi-detached house for sale in Park Hill, Clapham, SW4 — £975,000 • 3 bed • 2 bath • 949 ft² 4 bedroom detached house for sale in De Montfort Road, Streatham, London, SW16 — £1,200,000 • 4 bed • 2 bath • 1851 ft²
 4 bedroom detached house for sale in De Montfort Road, Streatham, London, SW16 — £1,200,000 • 4 bed • 2 bath • 1851 ft²


















































































