Spacious four-bed detached with garage and west garden, ideal for buyers wanting to renovate and extend..
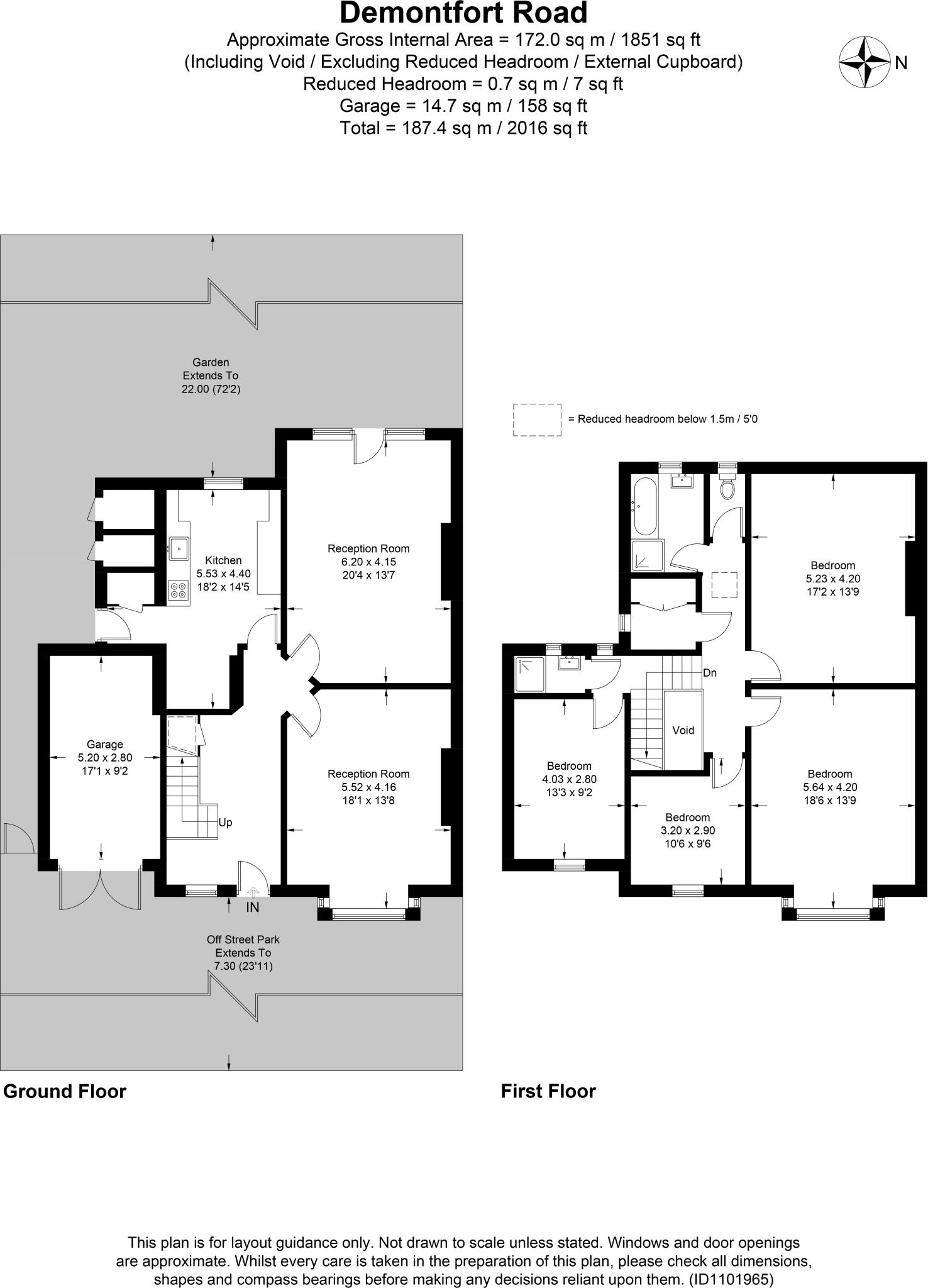
Four double bedrooms with large loft and family-sized living space
Mature west-facing garden—sunny afternoons and evening light
Driveway and garage provide off-street parking and storage
Requires full modernisation; cosmetic and possible structural updates needed
Solid brick walls likely lack modern insulation (assumed)
Potential to extend or improve subject to planning approval
High local crime rate; consider security measures and local context
Expensive council tax band adds to ongoing running costs
This substantial four-bedroom detached house on De Montfort Road offers classic proportions and a mature west-facing garden ideal for family life and entertaining. The property is freehold, includes a driveway, garage and a large loft, and sits close to Streatham Hill station and Tooting Bec Common for easy commuting and green space.
The house requires renovation throughout: dated finishes, likely solid-brick walls without added insulation, and general modernisation are all needed. There is clear potential to reconfigure or extend subject to planning permission and building regulations, so buyers seeking to add value or tailor a home will find good scope here.
Practical positives include double glazing fitted after 2002, mains gas boiler and fast broadband and mobile signal. Notable drawbacks are the high local crime rate, an expensive council tax band, and the property's need for refurbishment—these factors should be weighed against the location and plot size.
Overall, this detached family home is a rare west-London opportunity to create a comfortable, contemporary family house in a popular Streatham setting. It will suit buyers prepared to invest time and budget into a full refurbishment or an extension project.
4 bedroom terraced house for sale in Prescott Close, London, SW16 — £670,000 • 4 bed • 2 bath • 1444 ft²
4 bedroom detached house for sale in Mount Ephraim Road, London, Greater London, SW16 — £1,500,000 • 4 bed • 3 bath • 2141 ft²
4 bedroom semi-detached house for sale in Rosedene Avenue, London, SW16 — £850,000 • 4 bed • 2 bath • 2115 ft²
3 bedroom terraced house for sale in De Montfort Road, London, SW16 — £850,000 • 3 bed • 2 bath • 1169 ft²
4 bedroom house for sale in Heybridge Avenue, London, SW16 — £800,000 • 4 bed • 1 bath • 1749 ft²
7 bedroom detached house for sale in Valleyfield Road, Streatham, SW16 — £2,250,000 • 7 bed • 3 bath • 2603 ft²


















































