Large 1.16-acre plot with consent for four executive homes in elevated rural setting.
Planning consent for four detached executive homes (Application 23/00038)
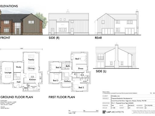
This unusually large development plot extends to approximately 1.16 acres with full planning consent (Application 23/00038) for four detached executive homes. Plot 1 is consented as a generous 2,609 sq.ft. four-bedroom house with open-plan living spaces, en suites, dressing room, detached garage and private garden — a design aimed at family comfort and modern rural living.
Set in an elevated, semi-rural location within a small cluster of similar residences, the site enjoys wide countryside views and a tranquil setting. The village of Heapey lies nearby, Chorley is approximately 3.4 miles away, Preston 12.5 miles and Manchester around 25 miles — offering a blend of peaceful country life with reasonable commuter links. Broadband and mobile signals are reported as fast and excellent respectively.
Practical strengths include freehold tenure, low local crime, affluent area demographics and existing planning consent for four executive units, which reduces development lead time. The plot is large and flexible, suited to developers aiming to deliver premium family homes or an investor seeking a small high-spec scheme.
Material considerations are clear: the site has a high flooding risk, which will affect design, insurance and drainage requirements and could influence mortgage availability and running costs. Prospective buyers should review the full flood risk data, drainage strategy and any conditions attached to the planning consent before purchase or during the tender process.
Plot for sale in Trigg Road, Heapey, Chorley, Lancashire, PR6 — £350,000 • 4 bed • 1 bath • 2548 ft²
Land for sale in Trigg Road, Heapey, Chorley, Lancashire, PR6 — £350,000 • 4 bed • 1 bath • 2176 ft²
Plot for sale in Trigg Road, Heapey, Chorley, Lancashire, PR6 — £1,400,000 • 1 bed • 1 bath • 2627 ft²
Land for sale in Trigg Road, Heapey, Chorley, Lancashire, PR6 — £350,000 • 4 bed • 1 bath • 2627 ft²
Land for sale in Trigg Lane, PR6 — £285,000 • 1 bed • 1 bath • 2950 ft²
Plot for sale in Grundy Fold, Horwich, Bolton, BL6 — £650,000 • 1 bed • 1 bath • 4780 ft²






















































