Sun-filled two-bedroom with generous living space, moments from Regents Park and village amenities.
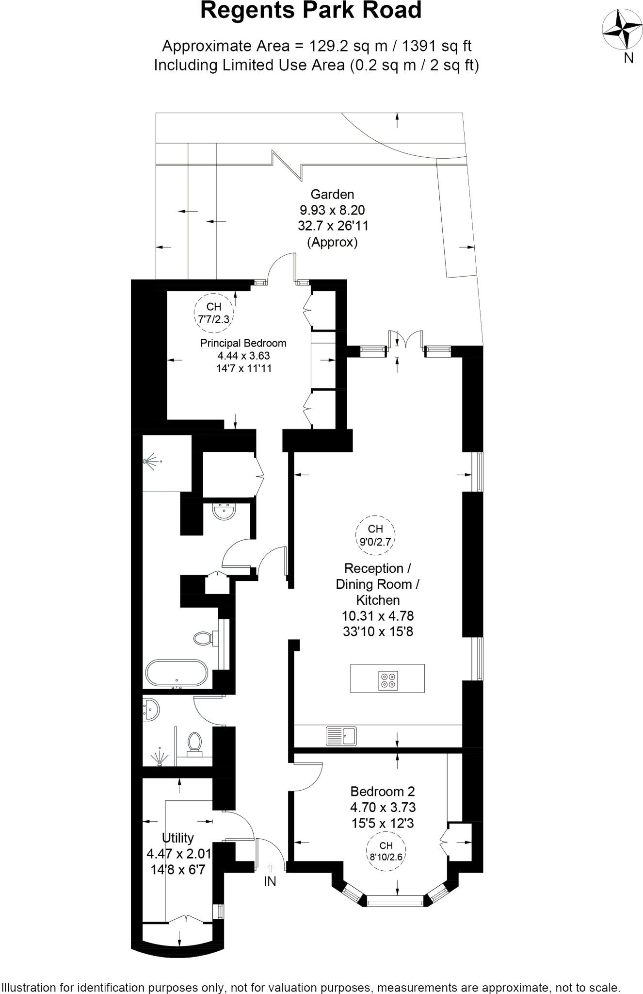
Circa 1,391 sqft — exceptionally large two-bedroom apartment
South-facing private garden with direct access and strong natural light
Newly refurbished throughout to a high contemporary standard
Two bathrooms plus separate utility room and generous storage
Share of freehold with approximately 969 years remaining
Service charge circa £4,000 per year; council tax band expensive
Solid brick construction (likely no cavity insulation) — retrofit possible
Chain free sale, central Primrose Village location near parks and schools
Set on a picturesque Primrose Village street, this exceptionally large two-bedroom apartment occupies circa 1,391 sqft on the ground floor of a handsome late-Victorian terrace. A comprehensive, high-quality refurbishment has created an open-plan reception with dining and integrated kitchen, two double bedrooms, a generous bathroom, a separate shower room and a useful utility. Large windows and southerly aspect bring strong natural light into the living spaces and the private garden.
The finish is contemporary and stylish, with thoughtful detailing and built-in storage in the principal bedroom—ideal for a family seeking move-in-ready accommodation near green space. Regents Park, Primrose Hill and Camden are all within easy walking distance, with excellent transport links, high-quality local schools and a wide range of amenities on the doorstep.
Practical positives include a very long lease (circa 969 years) and share of freehold, plus no onward chain for a simpler sale. Ongoing costs should be noted: an average service charge of around £4,000 and an expensive local council tax band. The building dates from c.1900–1929 and external walls are solid brick (assumed uninsulated), which may mean future retrofit opportunity to improve thermal performance.
Overall this apartment suits buyers prioritising space, location and a contemporary finish—particularly families who want direct access to parks and village amenities. While finished to a high standard internally, consider potential longer-term energy upgrades and the routine costs of living in a central London conservation area.
2 bedroom terraced house for sale in Princess Road, Primrose Hill, London, NW1 — £850,000 • 2 bed • 1 bath • 862 ft²
2 bedroom flat for sale in Edis Street, London NW1 — £1,850,000 • 2 bed • 1 bath • 1036 ft²
2 bedroom apartment for sale in King Henry’s Road, London, NW3 — £890,000 • 2 bed • 1 bath • 839 ft²
2 bedroom flat for sale in Gloucester Avenue, Primrose Hill, London, NW1 — £1,200,000 • 2 bed • 2 bath • 862 ft²
2 bedroom flat for sale in Edis Street, London, NW1 — £1,300,000 • 2 bed • 1 bath • 983 ft²
1 bedroom flat for sale in Chalcot Road, Primrose Hill, London, NW1 — £700,000 • 1 bed • 1 bath • 623 ft²


































































































































