High-yield, hands-on investment with clear development upside for active buyers.
Freehold mixed‑use scheme totalling 20,860 sq ft NIA
Total annual income £330,520 with blended yield 10.35%
Quoted price £3,000,000 with development potential
Very large plot with plans for an additional building
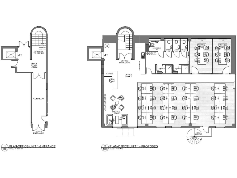
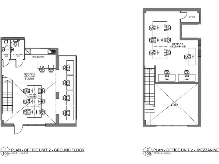
Units finished to a high quality; contemporary/industrial design
Hands‑on asset management opportunity to increase income
Broadband speeds very slow — upgrades likely required
No flood risk; crime level average
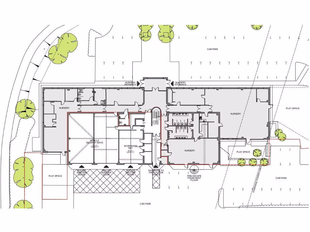
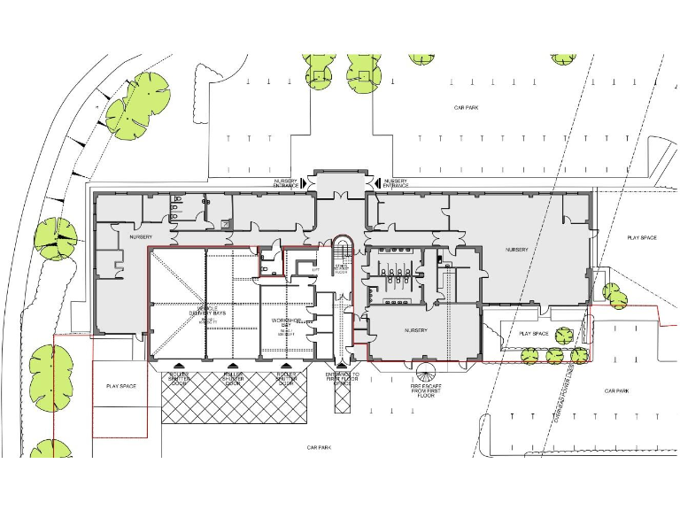
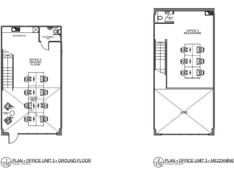
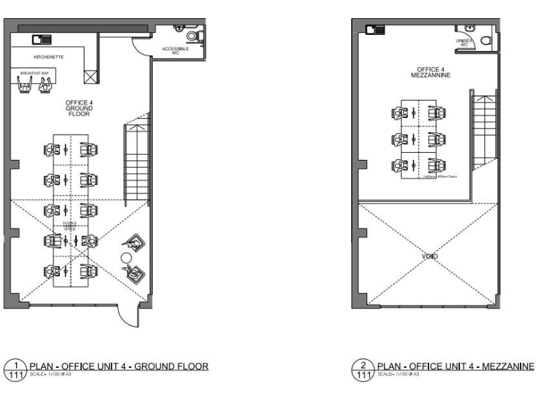
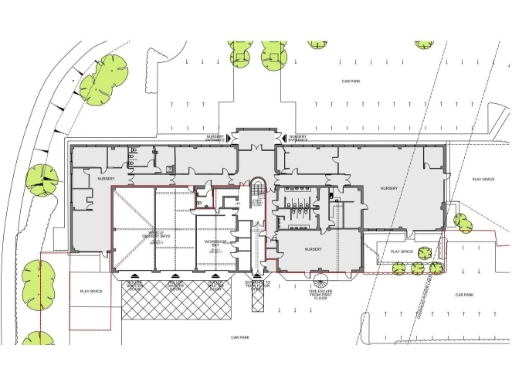
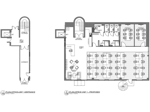
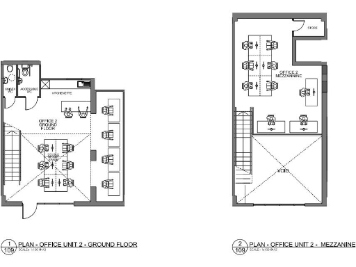
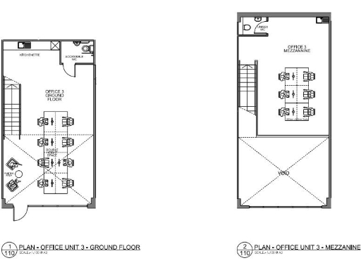
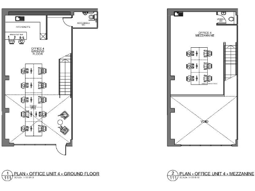
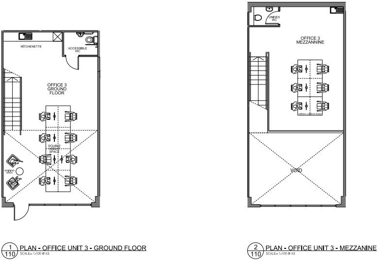
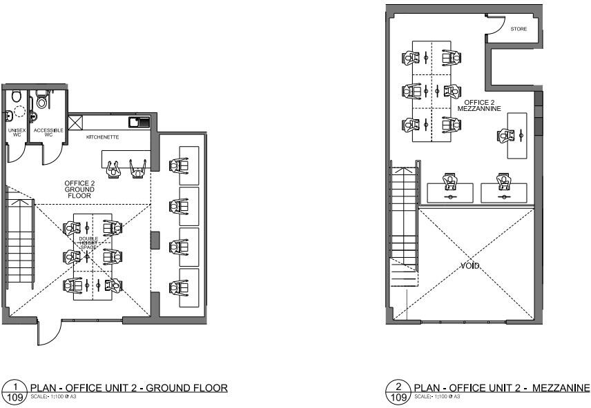
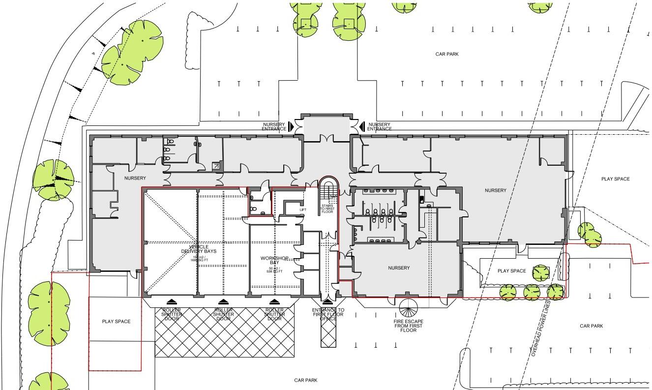
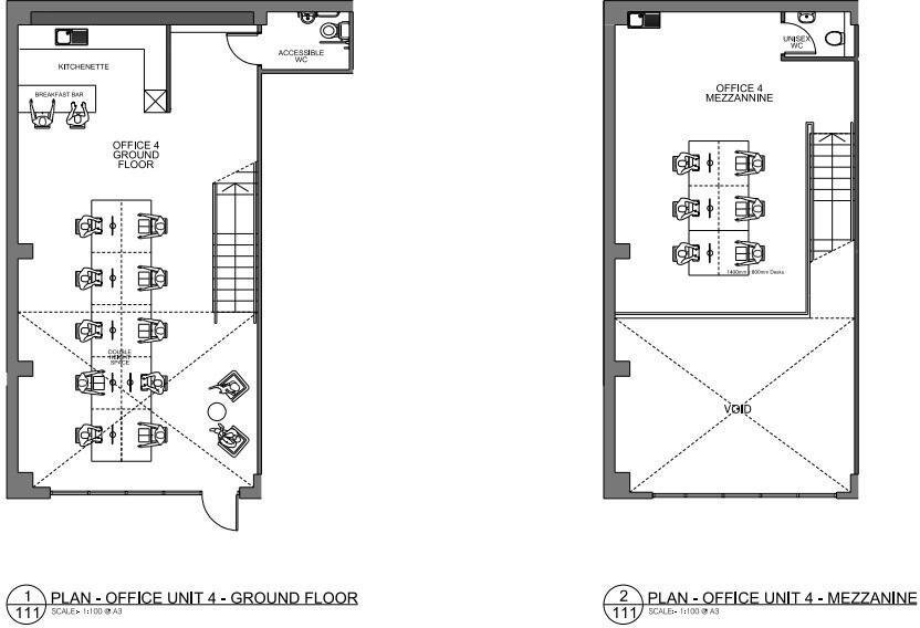
A rare freehold opportunity in Almondsbury: a completely unique mixed-use scheme finished to a high standard and arranged across 20,860 sq ft NIA. The estate combines shipping-container-style units and contemporary commercial buildings, producing a total annual income of £330,520 and a quoted blended yield of 10.35% at a £3,000,000 price. The site sits on a very large plot with plans already drawn for an additional building, offering clear development upside.
This asset suits a hands-on purchaser or investor comfortable with active asset management. Units are high-quality and versatile — suitable for offices, studios, nursery use or light industrial — and the layout includes mezzanine space and high ceilings for flexible configuration. Strong road access and an excellent mobile signal support varied occupier needs, while the location in a very affluent area benefits from nearby schools and commercial neighbours.
Buyers should note material practicalities: broadband speeds are reported as very slow, so occupiers needing high-capacity internet will need upgrades. The scheme will benefit from ongoing management to realise further rental growth and development potential. Crime levels are average; there is no flood risk. Overall, this is a high-yield, value-add freehold with clear scope for rental uplift and site expansion.
Office for sale in Paradigm House, Eden Office Park , 72-74 Macrae Road, Pill, Bristol, BS20 — £200 • 1 bed • 1 bath • 6110 ft²
Light industrial facility for sale in Secure Compound With 4 Units, Armstrong Way, Yate, Bristol, Gloucestershire, BS37 — £1,395,000 • 1 bed • 1 bath • 11001 ft²
Commercial development for sale in Commercial Unit City Gateway , Ashton , Bristol, City Of Bristol, BS3 — £230,000 • 1 bed • 1 bath • 2347 ft²
Office for sale in 83 Eden Office Park , Macrae Road, Pill, Bristol, Somerset, BS20 — £300,000 • 1 bed • 1 bath • 1544 ft²
Office for sale in 14-15 The Courtyard, Woodlands, BS32 — £215,000 • 1 bed • 1 bath • 1542 ft²
Light industrial facility for sale in Exhibition House, North View, Soundwell, Bristol, Gloucestershire, BS16 — £1,500,000 • 1 bed • 1 bath


























































































































