Spacious historic family home with extensive gardens and coach house potential.
A‑listed Georgian house dating from 1677
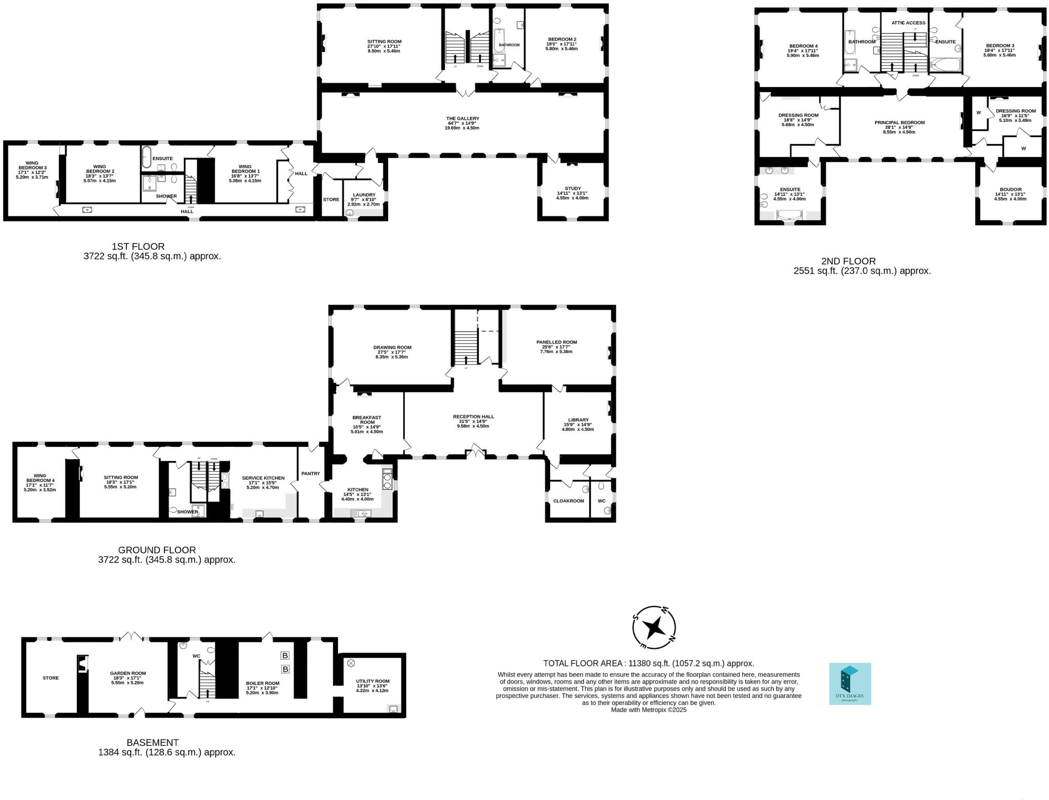
Gallery House is a substantial A‑listed Georgian residence dating from 1677, set in about 12 acres and offering over 11,300 sq ft of flexible family accommodation. The main house retains strong period character — ornate plasterwork, a long gallery, original pine panelling and high ceilings — while a recently renovated two‑storey wing provides independent living space. The grounds include a walled garden, new orchard, paddock, woodland and a south‑facing Coach House with scope for conversion (subject to planning).
The layout suits a large family seeking formal reception rooms, bedrooms and separate staff or guest accommodation; the Coach House could become a self‑contained annexe, office or leisure space. Practical features include oil central heating with an electric AGA, private drainage, multiple driveways and off‑street parking. The property sits close to the River North Esk with easy road access to Montrose and the east coast, yet remains in a remote, rural setting.
Buyers should note key constraints: the A‑listing will restrict alterations and may complicate change‑of‑use or extension projects. Broadband is very slow in this location, and the property uses oil heating; council tax banding is high. While the house has been well maintained and recently improved, potential purchasers should allow for specialist maintenance and listed‑building requirements.
Gallery House will appeal to families who value provenance, generous formal spaces and extensive grounds, or to buyers seeking an estate with scope for income uses (events, holiday lets or annexe rental) subject to consents. Viewings will suit those prepared for rural living and the responsibilities that accompany a historic, listed house on a large plot.
8 bedroom detached house for sale in Gallery As A Whole, Montrose, Angus, DD10 — £1,850,000 • 8 bed • 7 bath • 11300 ft²
Farm land for sale in Montrose, Angus, DD10 — £155,000 • 1 bed • 1 bath • 1000 ft²
5 bedroom detached house for sale in Old Manse, Kirkton Of Kingoldrum, By Kirriemuir, Angus, DD8 — £480,000 • 5 bed • 2 bath • 2783 ft²
9 bedroom detached house for sale in Keithock House, By Brechin, Angus, DD9 — £1,700,000 • 9 bed • 4 bath • 9352 ft²
6 bedroom detached house for sale in Straton House, 10 Castle Place, Montrose, DD10 8, DD10 — £550,000 • 6 bed • 3 bath • 5264 ft²
8 bedroom farm house for sale in Ferryden, Montrose, DD10 — £695,000 • 8 bed • 4 bath • 3416 ft²






















































































































































