Versatile eight-bedroom home with annexe and sweeping coastal views.
- Impressive Victorian farmhouse with eight bedrooms and multiple receptions
- Interlinking annexe with private access for guests or rental income
- Solar panels and mostly double glazed windows reduce energy costs
- Private gardens and grounds just over one acre; large driveway and garage
- Many original period features: bay windows, cornices, fireplaces, woodwork
- Broadband reported slow; may limit remote working without upgrade
- Large property footprint requires ongoing maintenance and sympathetic upkeep
- Located rural/coastal with excellent mobile signal; local area relatively deprived
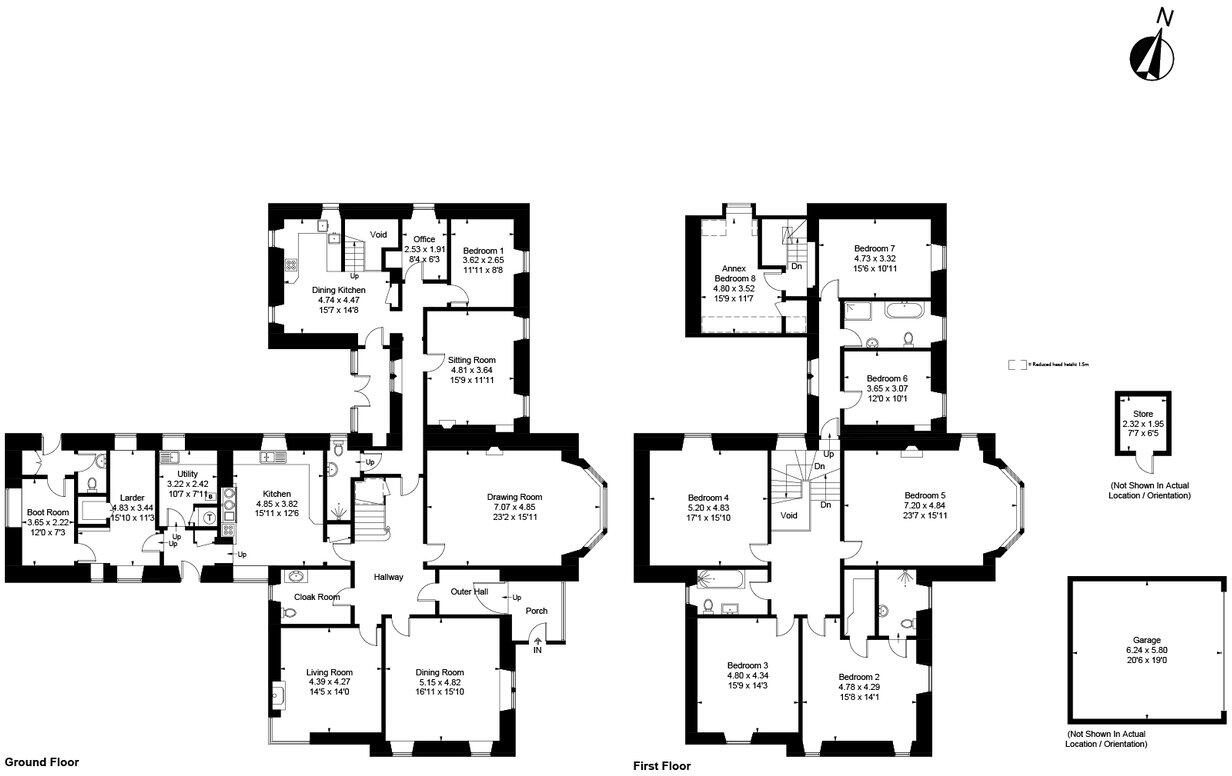
An imposing Victorian farmhouse set on just over an acre with panoramic coastal and countryside views, Barns of Craig offers rare space and flexibility. The main house retains many original features — ornate cornices, bay windows, fireplaces and natural wood joinery — alongside practical modern additions such as solar panels and double glazing to most windows.
The layout provides broad possibilities: eight bedrooms, four reception rooms, two kitchens and an interlinking annexe with private access. The annexe can be folded into the main home for multi‑generational living or run independently as holiday accommodation or a rental. Practical rooms including a utility, larder, boot room, courtyard, garage and external stores increase everyday convenience.
Buyers should note some trade-offs typical of a large period farm property. The home will need ongoing upkeep to preserve its character, and broadband speeds are reported as slow. The surrounding area is described as relatively deprived, which may affect resale dynamics. On the positive side, solar panels and double glazing help running costs, mobile signal is excellent and the large plot offers privacy and scope for landscaping or further outbuildings.
This property suits a large family, multi‑generational household, or buyer seeking an income opportunity from holiday letting. It combines atmospheric period detail with practical living spaces and excellent connectivity by road and rail to nearby towns and cities, while delivering substantial grounds and privacy in a rural setting.
4 bedroom villa for sale in Aberlemno, Forfar, DD8 — £480,000 • 4 bed • 5 bath • 4780 ft²
5 bedroom detached house for sale in Rossie Braes, Montrose, DD10 — £380,000 • 5 bed • 3 bath • 2933 ft²
3 bedroom detached house for sale in Arbirlot, Arbroath, DD11 — £300,000 • 3 bed • 2 bath
3 bedroom farm house for sale in Marykirk, Laurencekirk, AB30 — £380,000 • 3 bed • 4 bath • 2088 ft²
4 bedroom detached house for sale in Boysack Farm House, by Arbroath. DD11 4RX, DD11 — £299,000 • 4 bed • 2 bath • 2551 ft²
5 bedroom detached house for sale in Langhaugh Farmhouse, By Brechin, Angus, DD9 — £455,000 • 5 bed • 2 bath • 4492 ft²


































































































































































