Substantial freehold industrial unit with strong road links and immediate usable space.
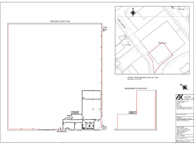
- 17,250 sq ft newly refurbished industrial unit
- Minimum eaves height 9.2m, suitable for tall racking
- Mezzanine, office, kitchen and WC included
- Roller shutter door and on-site forecourt parking
- Three-phase power and gas blower heating installed
- Freehold tenure with very low flood risk
- Excellent road access to A13 and M25 junctions
- Very slow broadband; EPC currently exempt (due diligence required)
This end-terrace warehouse at Thurrock Commercial Centre offers a substantial, newly refurbished industrial space of 17,250 sq ft with a minimum eaves height of 9.2m — ideal for bulky storage, light manufacturing or a logistics hub. The unit includes a practical mezzanine, dedicated office, kitchen and WC, plus roller shutter access, three-phase power and on-site forecourt parking for loading and staff.
Located just off the A13 and within a short drive of the M25 junctions, the site gives straightforward road access for HGVs and distribution. Purfleet rail station is under 1.5 miles away for workforce links and the estate sits in an established commercial park alongside industrial amenities.
Benefits include a robust steel-frame construction, recent refurbishment works and very low flood risk. The freehold tenure suits operators wanting long-term control or investors seeking an income-producing industrial asset.
Buyers should note practical constraints: broadband speeds in the area are reported as very slow, which could limit tech-heavy occupiers without investment in dedicated connectivity. Crime is average and the property’s EPC is currently exempt, so prospective purchasers will need to address energy compliance and running-cost assessments as part of due diligence.
Warehouse for sale in 1 Thurrock Park Way, Tilbury, Essex, RM18 7HZ, RM18 — £1,200,000 • 1 bed • 1 bath • 11151 ft²
Light industrial facility for sale in 41 & 42, Thurrock Commercial Centre, Purfleet, Essex, RM15 — POA • 1 bed • 1 bath • 6200 ft²
Light industrial facility for sale in 14 Easter Industrial Park, Ferry Lane, Rainham, RM13 9BP, RM13 — £2,200,000 • 1 bed • 1 bath • 14665 ft²
Light industrial facility for sale in Unit 9 Dolphin Way, Purfleet, Essex, RM19 — POA • 1 bed • 1 bath • 8503 ft²
Warehouse for sale in 10 Clipper Park, Thurrock Park Way, Tilbury, Essex, RM18 7HG, RM18 — £675,000 • 1 bed • 1 bath • 3535 ft²
Warehouse for sale in Unit & Yard, Stanhope Industrial Estate, Wharf Road, Stanford le Hope, SS17 0EH, SS17 — £950,000 • 1 bed • 1 bath • 9456 ft²






























