ME1 2DW - 3 bedroom town house for sale in Rochester Avenue, Rocheste…

View on Property Piper

3 bedroom town house for sale in Rochester Avenue, Rochester, Kent. ME1

Summary - 3 ROCHESTER AVENUE ROCHESTER ME1 2DW

3 bed 2 bath Town House

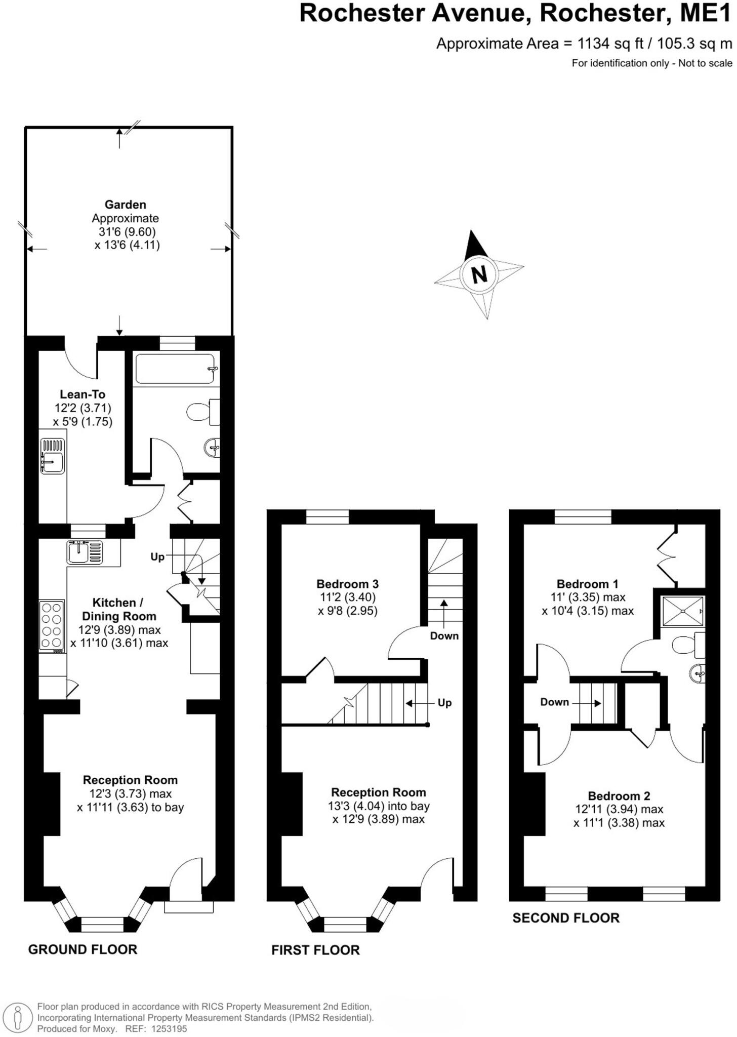
Discover your future home in this charming three-bedroom townhouse located on Rochester Avenue, Kent. Spanning over 1,100 sq ft across three well-designed floors, this property combines modern comfort with original period character.

**Standout Features:**
- Three spacious double bedrooms, with an en-suite for the principal bedroom.
- Large double-aspect open-plan kitchen and dining area in the basement, perfect for entertaining.
- Cozy living room with bay windows and feature fireplace.
- Modern kitchen and bathroom, with direct access to a handy lean-to and the garden.
- Proximity to the historic Rochester High Street and train station.

Though the property is brimming with charm, it does require some maintenance considerations—electric mains are absent in the lean-to, and additional moisture management may be needed due to the structure's age. Outside, the garden provides a peaceful retreat, ideal for families looking to relish outdoor moments.

Situated within a vibrant neighborhood, you'll find a wealth of nearby amenities such as schools, parks, and shops, making this home perfect for families or investors seeking rental potential. The bustling area is balanced by its suburban charm, offering a sense of community and safety.

Don't miss this opportunity to secure a distinct piece of property that offers both comfort and character in a sought-after location. Schedule your viewing today and envision the possibilities!

Property Details

Image Descriptions

Floorplan Description

Rooms

Textual Property Features

Detected Visual Features

EPC Details

Nearby Schools

Nearest Bars And Restaurants

,,,,}

Nearest General Shops

,,}

Nearest Grocery shops

,,}

Nearest Supermarkets

,,}

Nearest Religious buildings

,,}

Nearest Medical buildings

,,,}

Nearest Airports

,}

Nearest Leisure Facilities

,,,,}

Nearest Tourist attractions

,,}

Nearest Train stations

,,,,}

Nearest Bus stations and stops

,,,,}

Nearest Hotels

,,}

Tags

Local Market Stats

AirBnB Data

Similar Properties

Meta

High Res Images

Compatible Images

Low res Images

Thumbnails

Raw Images

High Res Floorplan Images

Compatible Floorplan Images

Low res Floorplan Images

FloorplanImages Thumbnail

Raw Floorplan Images