ME1 1RS - 3 bed rochester end terrace home in Rochester And Strood, M…

View on Property Piper

3 bedroom end of terrace house for sale in Tupman Close, Rochester, Kent. ME1

Summary - Tupman Close, Rochester, ME1 ME1 1RS

3 bed 1 bath End of Terrace

Renovated three-bedroom within walking distance of station and historic high street.
- Newly renovated throughout with top-to-bottom under-floor heating
- Dual-aspect open-plan kitchen and living area, contemporary finishes
- Ground-floor guest WC and first-floor wet room
- Private wrap-around rear garden, small and low-maintenance
- Freehold and no forward chain, ready for quick move
- Walking distance to Rochester station, high street, castle and cathedral
- On-street residents’ permit parking only; no private driveway
- Local crime levels above average; buyers should check area statistics
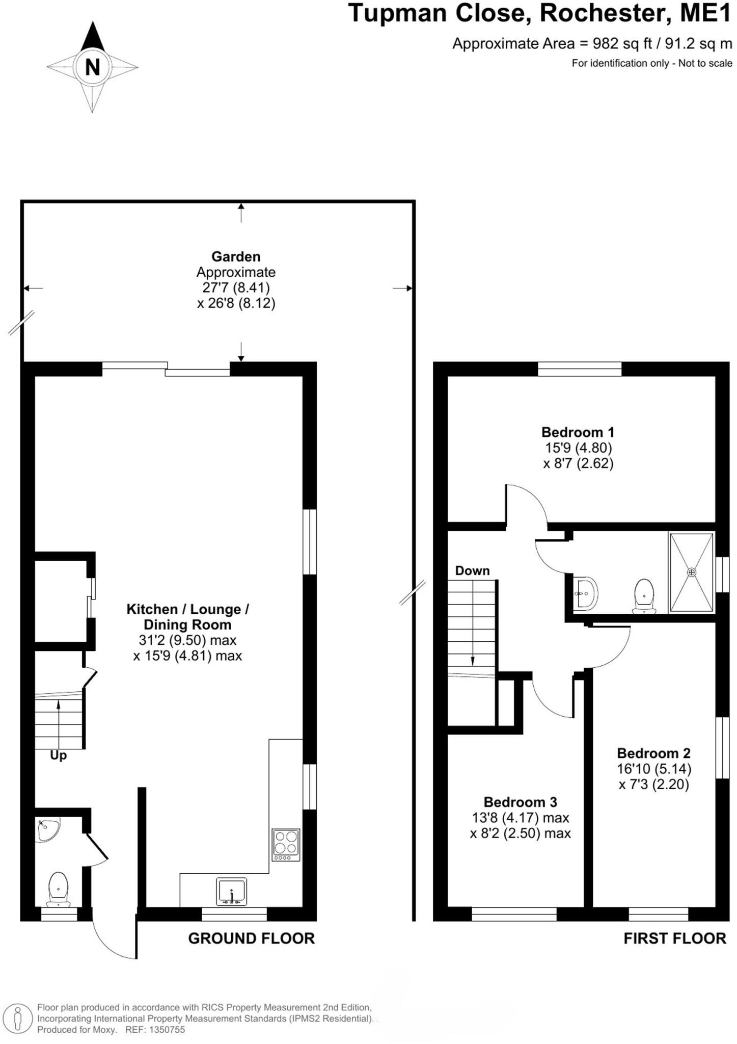
This recently upgraded three-bedroom end-of-terrace offers a modern, low-maintenance layout suited to first-time buyers and commuters. The ground floor features a dual-aspect open-plan kitchen and living area with contemporary finishes and under-floor heating throughout, plus a handy guest WC. Upstairs are three bedrooms and a streamlined wet room, arranged over two floors to make the most of the 980 sq ft footprint.

Practical benefits include freehold tenure, no forward chain and a private wrap-around rear garden that’s manageable for low-upkeep outdoor living. The location is a clear asset: Rochester train station and the historic high street, castle and cathedral are all within walking distance, with fast direct trains to London (around 36 minutes).

Notable considerations are on-street residents’ permit parking rather than a driveway, a relatively small plot, and local crime levels reported above average. Council tax band D is moderate. Buyers should also note the listing references rights or restrictions dating from 1932; purchasers must verify title details and any covenants independently.

Overall, the property presents a move-in-ready opportunity with contemporary comforts and excellent transport links, suited to buyers seeking a turn-key home close to Rochester’s amenities.

Property Details

Image Descriptions

Floorplan Description

Rooms

Textual Property Features

Target Audience

AI Tags

Detected Visual Features

EPC Details

Nearby Schools

Nearest Bars And Restaurants

,,,,}

Nearest General Shops

,,}

Nearest Grocery shops

,,}

Nearest Supermarkets

,,}

Nearest Religious buildings

,,}

Nearest Medical buildings

,,,}

Nearest Airports

,}

Nearest Leisure Facilities

,,,,}

Nearest Tourist attractions

,,}

Nearest Train stations

,,,,}

Nearest Bus stations and stops

,,,,}

Nearest Hotels

,,}

Tags

Local Market Stats

AirBnB Data

Similar Properties

Meta

High Res Images

Compatible Images

Low res Images

Thumbnails

Raw Images

High Res Floorplan Images

Compatible Floorplan Images

Low res Floorplan Images

FloorplanImages Thumbnail

Raw Floorplan Images