Compact, affordable home close to shops, stations and strong schools.
• One double bedroom with open-plan living/dining area
• Long lease: 104 years remaining (as of Sept 2025)
• Allocated off-street parking and communal gardens plus shed
• Service charge £250 per year (below average)
• Ground rent £125 per year; verify terms with solicitor
• Heating via electric storage heaters (potentially higher running cost)
• EPC C (78); double glazing and modern construction
• Compact kitchen and bedroom—small overall footprint
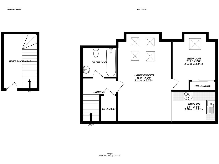
This well-presented one-bedroom apartment in South Farnborough is a practical choice for first-time buyers seeking a compact, low-maintenance home. The open-plan living/dining room offers a comfortable social space, while the bedroom and kitchen are modest but functional for single occupancy or a couple.
Highlights include a long lease (104 years), allocated off-street parking, and access to well-kept communal gardens and external storage. The building is modern (circa 2003–2006), fitted with double glazing and an EPC C (78), which supports efficient running costs. Council Tax Band A and a below-average annual service charge add to the affordability.
Buyers should note the apartment is heated by electric storage heaters, which can be more expensive than gas in some seasons. The accommodation is compact overall — the bedroom and kitchen are small — so this will suit buyers comfortable with one-bedroom living. Ground rent of £125 per year and the stated service charge should be verified with your solicitor before exchange.
With good local transport links, nearby shops, strong schools and an estimated rental value around £1,150 pcm, the flat also appeals to investors looking for straightforward buy-to-let potential. A viewing is recommended to assess natural light from roof windows and to confirm the internal condition.
1 bedroom apartment for sale in Alexandra Road, Farnborough, GU14 — £150,000 • 1 bed • 1 bath • 457 ft²
1 bedroom flat for sale in Wallis Square, Farnborough, Hampshire, GU14 — £200,000 • 1 bed • 1 bath • 398 ft²
1 bedroom flat for sale in Wallis Square, Farnborough, GU14 — £185,000 • 1 bed • 1 bath • 566 ft²
1 bedroom flat for sale in Southampton Street, Farnborough, Hampshire, GU14 — £150,000 • 1 bed • 1 bath • 308 ft²
1 bedroom flat for sale in Reading Road, Farnborough, Hampshire, GU14 — £200,000 • 1 bed • 1 bath • 356 ft²
1 bedroom flat for sale in Farnborough Road, Farnborough, Hampshire, GU14 — £175,000 • 1 bed • 1 bath • 681 ft²






















































