GU14 8AW - 1 bedroom flat for sale in Farnborough Road, Farnborough, H…

View on Property Piper

1 bedroom flat for sale in Farnborough Road, Farnborough, Hampshire, GU14

Summary - CODY COURT, 377 FLAT 9 FARNBOROUGH ROAD FARNBOROUGH GU14 8AW

1 bed 1 bath Flat

**Standout Features:**
- Spacious one double-bedroom, top-floor apartment.
- Open-plan lounge/kitchen/diner concept.
- Modern design with double glazing and gas central heating.
- Allocated and visitors' parking available.
- Close proximity to Farnborough Town and two train stations.

**Concerns:**
- Lease term remaining: 82 years; lease renewal may be needed soon.
- High local crime rate.
- Average broadband speeds and potential maintenance needs.

This modern top-floor apartment could be the perfect choice for first-time buyers or those looking for a desirable rental investment, estimated at £950 per month. With an airy, inviting open-plan layout and contemporary finishes, the property invites comfort and convenience. Enjoy allocated parking and communal grounds in a well-maintained residential complex, all within easy reach of Farnborough's vibrant town center and major transport links.

However, be aware that the current lease has 82 years left and may need renewing soon, so plan accordingly. Despite a high crime rate in the area, the apartment's location boasts excellent mobile service and easy access to local amenities and schools, making it a solid investment opportunity for prospective buyers. Don't miss out—as listings like this can go quickly in today's market!

Property Details

Brochure Descriptions

Image Descriptions

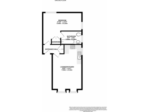
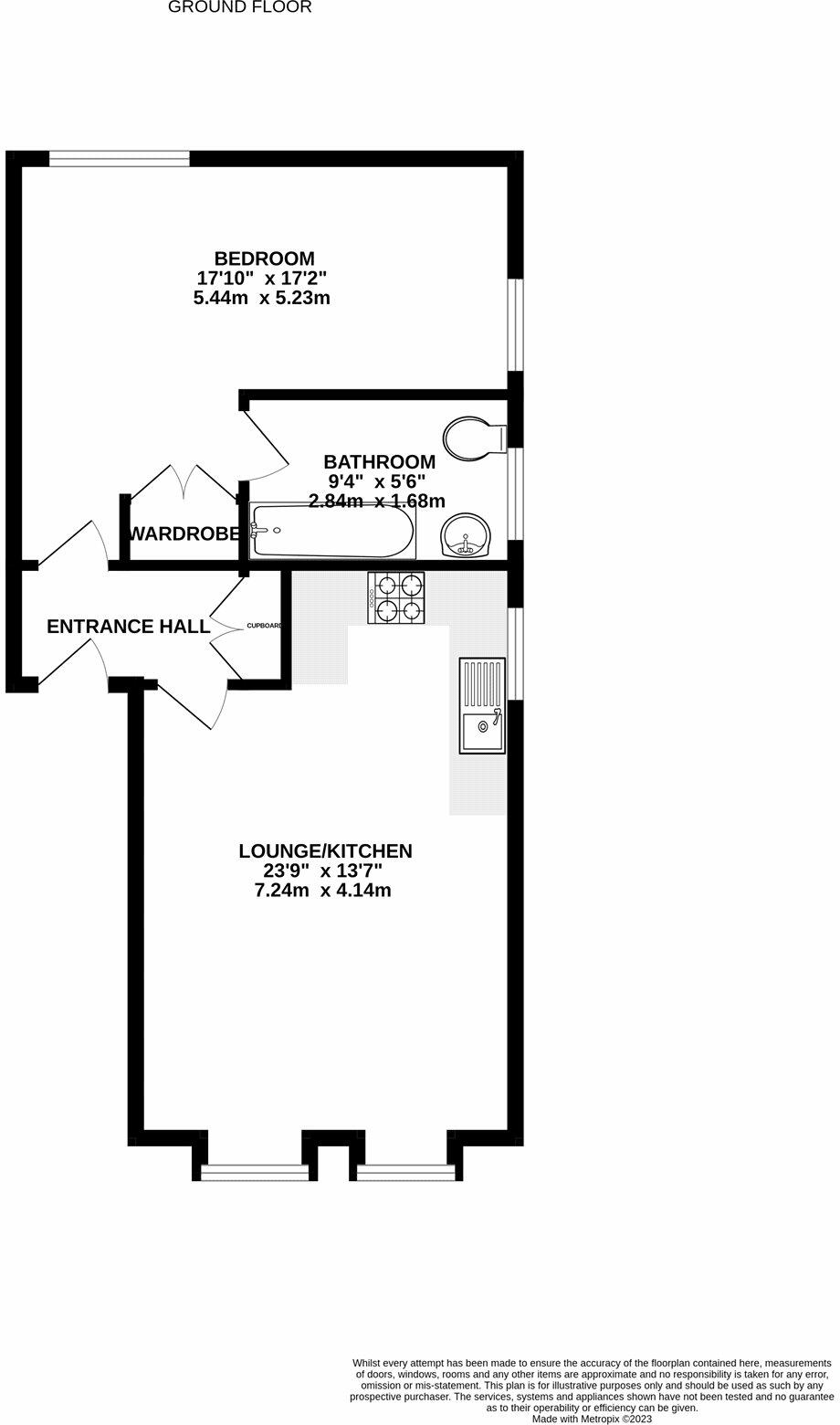
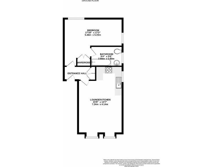
Floorplan Description

Rooms

Textual Property Features

Detected Visual Features

EPC Details

Nearby Schools

Nearest Bars And Restaurants

,,,,}

Nearest General Shops

,,}

Nearest Grocery shops

,,}

Nearest Supermarkets

,,}

Nearest Religious buildings

,,}

Nearest Medical buildings

,,,}

Nearest Airports

}

Nearest Leisure Facilities

,,,,}

Nearest Tourist attractions

,,}

Nearest Train stations

,,,,}

Nearest Bus stations and stops

,,,,}

Nearest Hotels

,,}

Tags

Local Market Stats

AirBnB Data

Similar Properties

Meta

High Res Images

Compatible Images

Low res Images

Thumbnails

Raw Images

High Res Floorplan Images

Compatible Floorplan Images

Low res Floorplan Images

FloorplanImages Thumbnail

Raw Floorplan Images