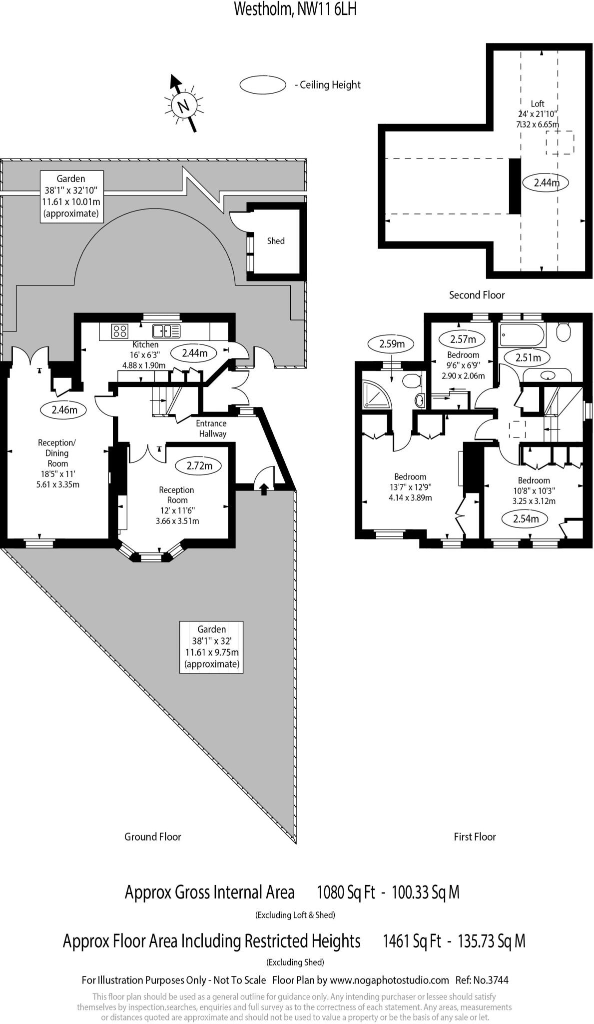
Spacious family home near top local schools in a quiet leafy cul-de-sac.
- Three bedrooms with main en suite shower room
- Two reception rooms plus fitted kitchen, 1,311 sqft total
- Front and rear gardens; garage provides parking and storage
- Long lease (882 years) — effectively like freehold term
- EPC rating D; solid brick walls likely uninsulated
- Council tax band expensive; running costs should be expected
- Very affluent area, low crime, close to strong local schools
- Average broadband and mobile signal; consider for home working
Set at the end of a quiet cul-de-sac in Hampstead Garden Suburb, this attractive three-bedroom semi offers comfortable family living with notable kerb appeal. The house retains distinctive Tudor-style character externally while the interior is presented in good decorative order, with two reception rooms, a fitted kitchen and an en suite to the main bedroom.
Outdoors there are well-maintained front and rear gardens and a garage, providing space for children to play and for everyday storage or parking. At about 1,311 sqft overall the layout feels generous for the area and there is scope for sympathetic extension or alteration, subject to planning, for buyers seeking longer-term value.
Practical points to note: the property is leasehold (very long lease remaining), rated EPC D, and the solid-brick walls are likely to lack insulation as originally built. Council tax is high and broadband and mobile signal are average, which may matter for home working. These are offset by a very affluent neighbourhood, low crime levels and proximity to several well-rated primary and secondary schools.
This home will suit families prioritising space, character and top local schools, and buyers interested in modest improvement or future extension to increase comfort and energy performance.
4 bedroom semi-detached house for sale in Litchfield Way, Hampstead Garden Suburb, NW11 — £2,350,000 • 4 bed • 1 bath • 1955 ft²
3 bedroom semi-detached house for sale in Brookland Close, Hampstead Garden Suburb, NW11 — £1,225,000 • 3 bed • 2 bath • 1224 ft²
3 bedroom semi-detached house for sale in Hogarth Hill, Hampstead Garden Suburb, NW11 — £1,150,000 • 3 bed • 1 bath • 1116 ft²
3 bedroom semi-detached house for sale in Hampstead Garden Suburb, London, NW11 — £1,100,000 • 3 bed • 1 bath • 1143 ft²
3 bedroom semi-detached house for sale in Brookland Hill, Hampstead Garden Suburb, NW11 — £1,250,000 • 3 bed • 2 bath • 1192 ft²
3 bedroom terraced house for sale in Willifield Way, Hampstead Garden Suburb, NW11 — £1,100,000 • 3 bed • 2 bath • 1447 ft²


















































