Spacious family layout with large garden and modern kitchen.
21ft open-plan kitchen/diner/family room with patio access
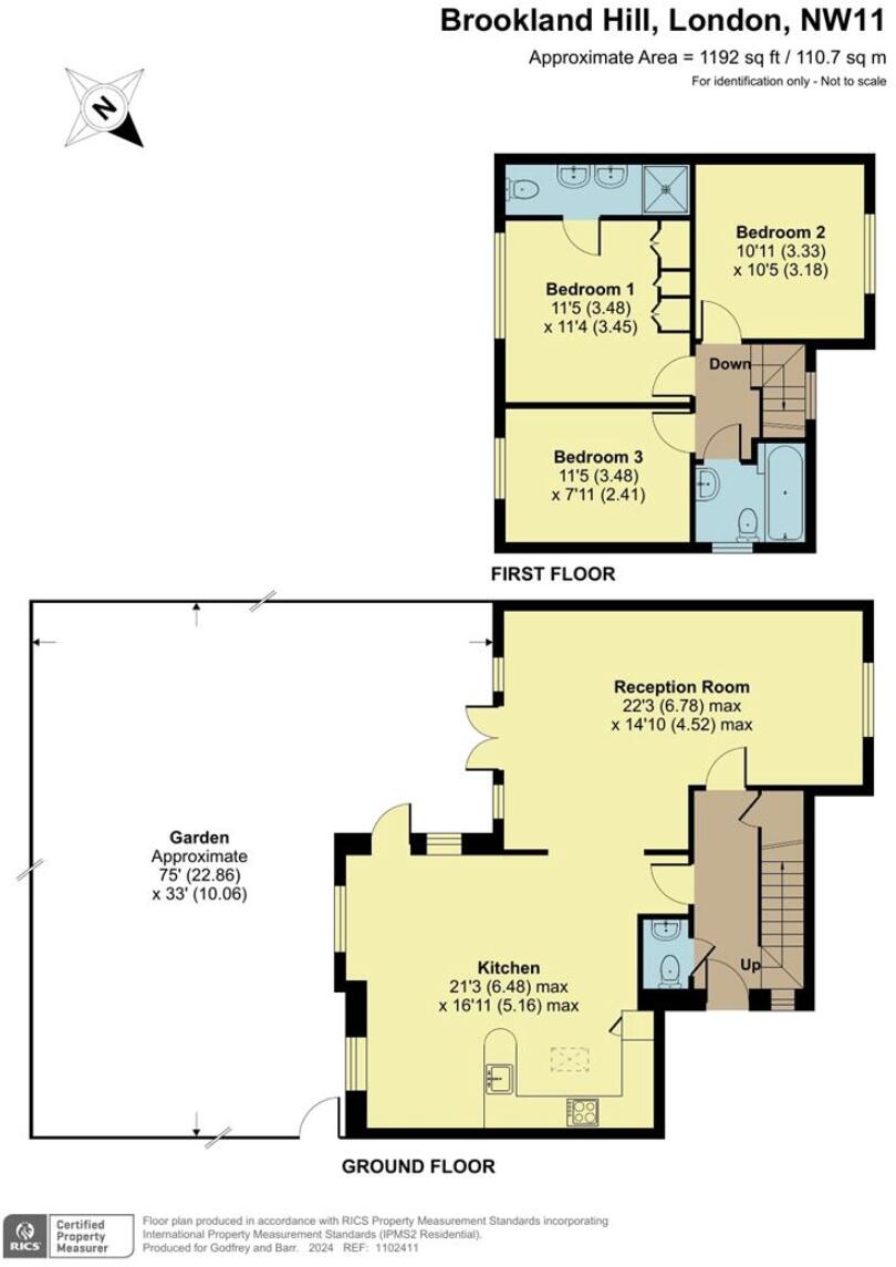
A well-proportioned three-bedroom, two-bathroom semi-detached house set on a generous plot in Hampstead Garden Suburb. The heart of the home is a bright 21ft open-plan kitchen/diner/family room with direct access to a long, private 75ft rear garden — ideal for children’s play, gardening or entertaining. The main bedroom benefits from an en-suite shower room, and there is a separate guest cloakroom for convenience.
Practical features include a driveway with off-street parking and an electric vehicle charging point, freehold tenure and easy walking distance to Brookland Infant & Junior Schools, Market Place shops and Northway Gardens playground. The property sits in a very affluent area with low crime and good Ofsted-rated schools nearby, making it well suited to families seeking space and community amenities.
Buyers should note the council tax is quite expensive and both mobile and broadband speeds are average. The house is presented in good, contemporary condition in the living areas, but as an average-sized older suburban home it offers potential for further cosmetic modernisation or reconfiguration to increase value. No flood risk is recorded.
3 bedroom semi-detached house for sale in Brookland Close, Hampstead Garden Suburb, NW11 — £1,225,000 • 3 bed • 2 bath • 1224 ft²
4 bedroom semi-detached house for sale in Woodside, Hampstead Garden Suburb, NW11 — £1,675,000 • 4 bed • 1 bath • 1928 ft²
3 bedroom semi-detached house for sale in Holyoake Walk, London, N2 — £1,150,000 • 3 bed • 1 bath • 1220 ft²
3 bedroom semi-detached house for sale in Erskine Hill, Hampstead Garden Suburb, NW11 — £950,000 • 3 bed • 1 bath • 921 ft²
3 bedroom semi-detached house for sale in Bigwood Road, Hampstead Garden Suburb, NW11 — £1,495,000 • 3 bed • 2 bath • 1370 ft²
4 bedroom semi-detached house for sale in Milton Close, Hampstead Garden Suburb, N2 — £2,295,000 • 4 bed • 2 bath • 2574 ft²


































































