Character cottage with modern kitchen and sunny courtyard near local schools.
High ceilings, exposed beams and original stone mullion windows
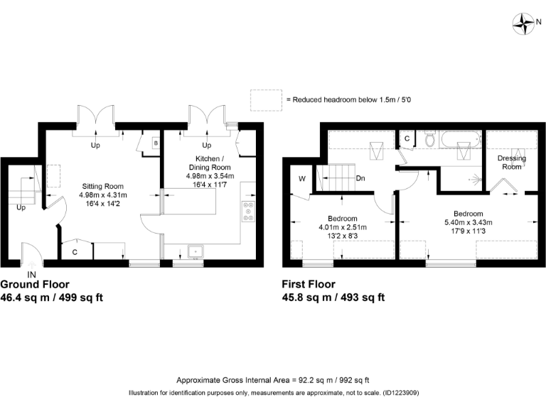
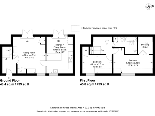
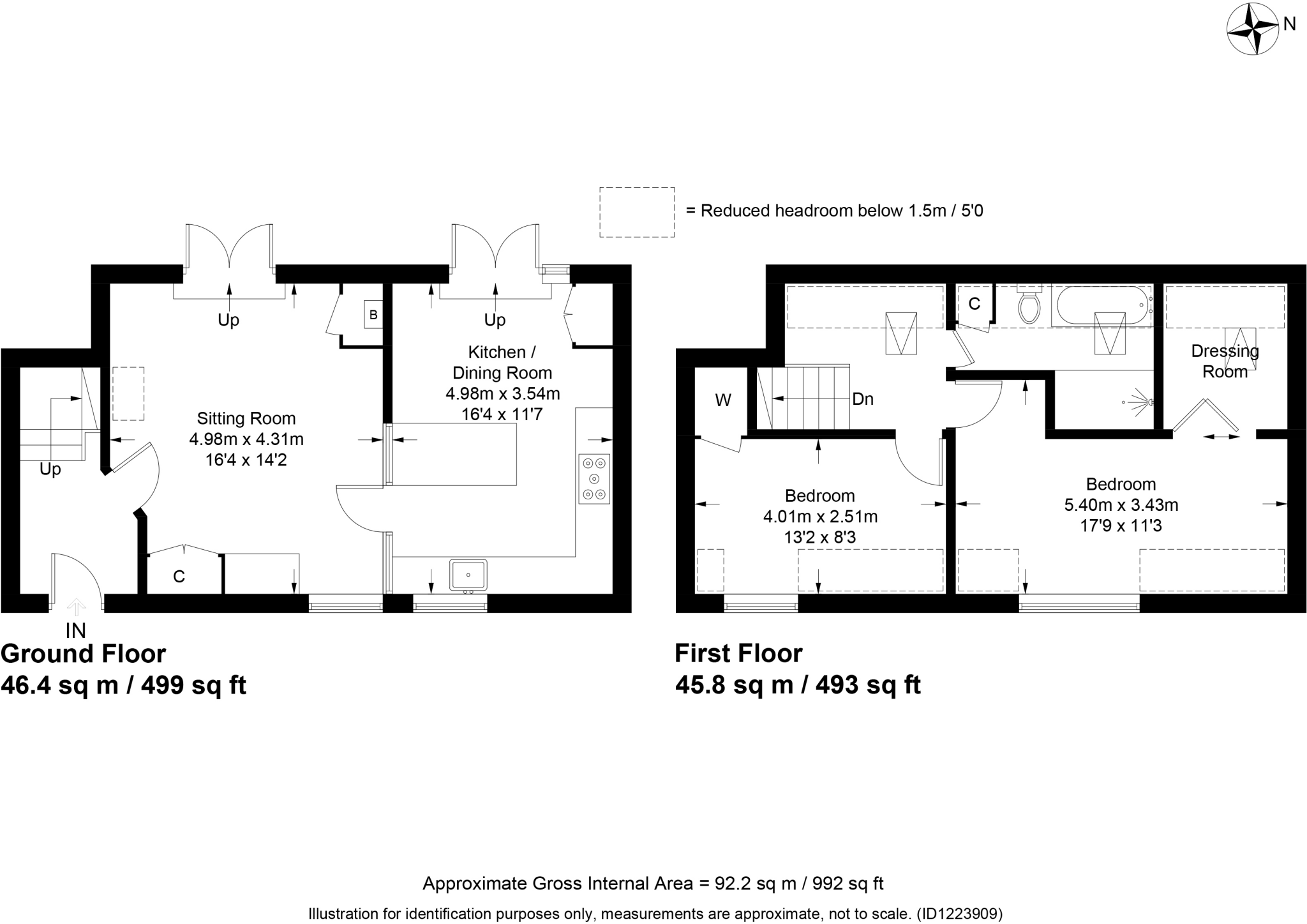
Set within a converted 1860s school building, this newly improved two-bedroom terrace blends period character with practical modern finishes. High ceilings, stone mullion windows and exposed beams give generous room volumes, while a bespoke kitchen with granite surfaces, integrated Neff appliances and underfloor heating offers day-to-day comfort. The west-facing courtyard has been landscaped for low-maintenance outdoor living and benefits from afternoon sun.
The layout works well for a small family or professional couple: a double-aspect sitting room and open-plan kitchen/diner on the ground floor, with two first-floor bedrooms, a useful dressing room and a well-appointed bathroom above. The dressing room has plumbing and services nearby and could be converted to an ensuite if required (subject to any necessary consents).
Practical points to note: heating is by an oil-fired boiler and the current EPC is band D, so running costs may be higher than gas-heated homes. The property occupies a small plot and is the mid-section of a three-property conversion, so outdoor space and privacy are more limited than a detached house. Council Tax is Band D. Superfast broadband and excellent mobile signal suit home working and connectivity needs.
Positioned in the desirable village of Kineton, the cottage is close to shops, schools and local amenities, with quick access to the M40 and nearby towns including Stratford-upon-Avon, Warwick and Leamington Spa. The characterful setting and recent refurbishment make this a ready-to-move-into home for those seeking village life with straightforward modern comforts.
3 bedroom cottage for sale in Kineton, CV35 — £465,000 • 3 bed • 1 bath • 1210 ft²
3 bedroom terraced house for sale in Kineton, CV35 — £495,000 • 3 bed • 2 bath • 1497 ft²
3 bedroom cottage for sale in Southam Street, Kineton, CV35 — £320,000 • 3 bed • 1 bath • 791 ft²
4 bedroom semi-detached house for sale in Kineton, CV35 — £475,000 • 4 bed • 1 bath • 1537 ft²
3 bedroom town house for sale in Red Lion Court, Bridge Street, Kineton, CV35 — £382,000 • 3 bed • 2 bath • 2108 ft²
2 bedroom semi-detached house for sale in Little Kineton, CV35 — £320,000 • 2 bed • 2 bath • 824 ft²






















































