Well‑refurbished freehold pub with solar savings and large beer garden.
Freehold village pub and restaurant, offered with goodwill and fixtures
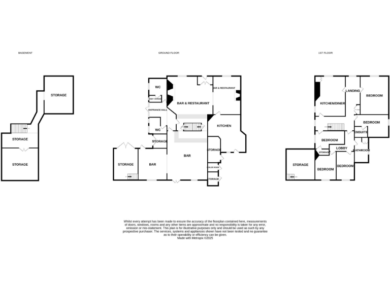
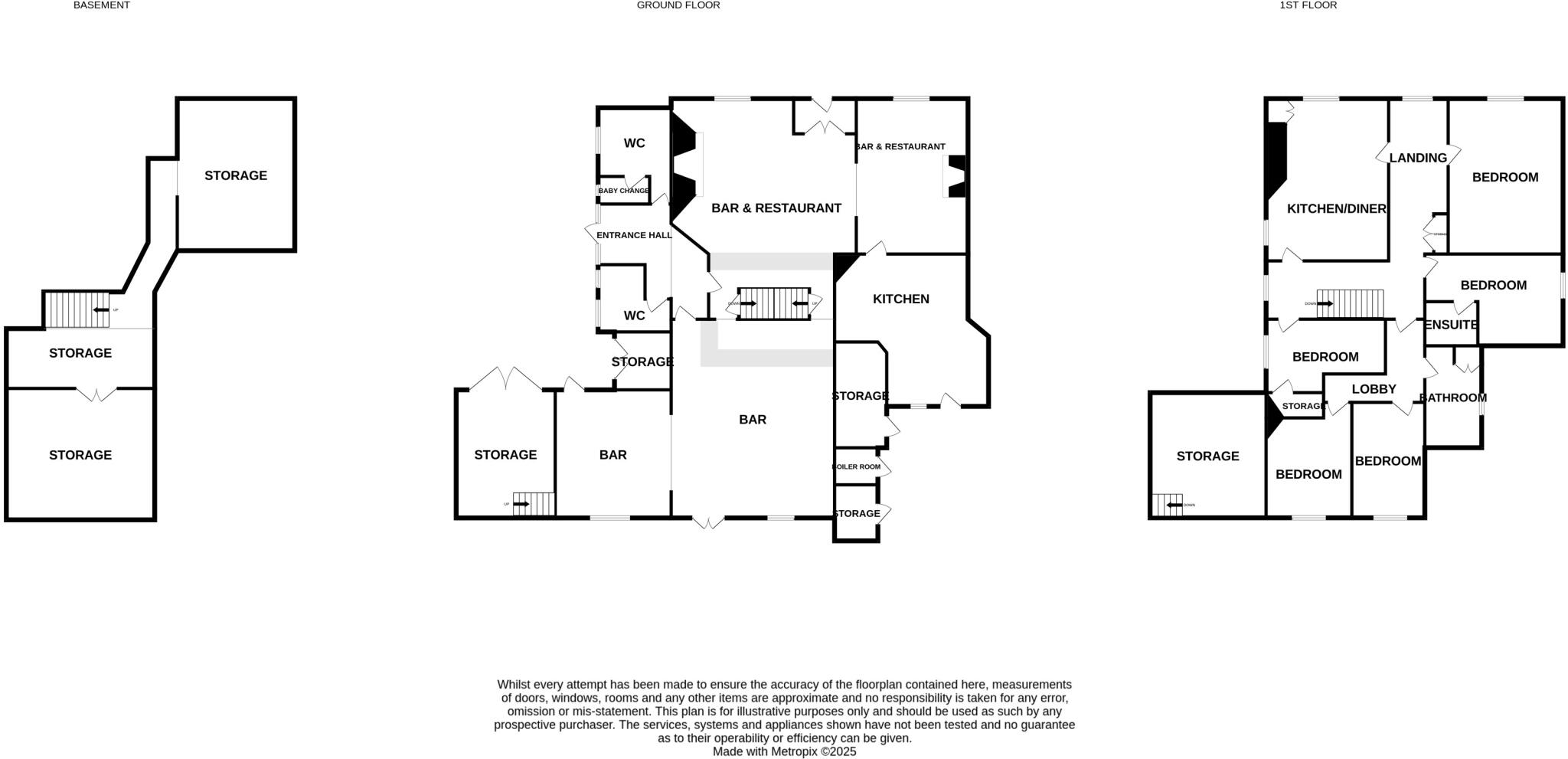
An established village pub and restaurant offered as a freehold business and building in Kerry, three miles from Newtown. The property has been newly refurbished throughout and benefits from modern energy upgrades including solar panels and battery storage, reducing running costs. The fully equipped catering kitchen and 24-cover restaurant support strong wet sales and outdoor trade from a generous beer garden and external bar.
Ground-floor trading includes a main bar, lounge bar, pool room, customer WCs, cellar with two rooms and barrel chute, and substantial ancillary spaces (freezer room, laundry, pantry). First-floor owners’ accommodation provides a sizeable four-bedroom apartment with fitted kitchen, living room and ensuite — useful for an operator who wants to live onsite. Ample car parking, a garage with store over and a 0.3-acre plot add flexibility for events and extra trade.
Practical details: freehold sale at £395,000 includes goodwill, fixtures, fittings and stock at valuation; commercial EPC C (73) valid to 27/04/2035. The business has been run successfully but is located in a small, remoter village community (classified as very deprived locally), which may limit casual passing trade compared with urban sites. Heating is LPG central heating (with new boiler) — note fuel supply and costs differ from mains gas.
This property will appeal to an experienced operator or a buyer planning to take on a managed start-up; current owner offers training and accounts are available to genuinely interested parties. The layout and energy upgrades also make the building attractive for conversion or alternative mixed-use projects, subject to planning.
4 bedroom detached house for sale in Kerry, Newtown, Powys, SY16 — £395,000 • 4 bed • 2 bath
4 bedroom semi-detached house for sale in Kerry, Newtown, Powys, SY16 — £375,000 • 4 bed • 2 bath • 2119 ft²
Pub for sale in Market Street, Newtown, Powys, Mid Wales, SY16 — £210,000 • 5 bed • 1 bath
4 bedroom detached house for sale in Herbert Court, Kerry, Newtown, SY16 — £360,000 • 4 bed • 3 bath • 1370 ft²
4 bedroom end of terrace house for sale in Kerry, Newtown, Powys, SY16 — £250,000 • 4 bed • 2 bath • 1444 ft²
4 bedroom detached house for sale in Llanbadarn Fynydd, Llandrindod Wells, Powys, LD1 — £280,000 • 4 bed • 2 bath • 1711 ft²






















































































