**Standout Features:**
- Charming Grade II listed former School House, dating back over 300 years
- 4 spacious bedrooms, including en-suite master and additional family bathroom
- Picturesque views of the nearby church and quiet village setting
- Generous living room, kitchen/dining room, utility room, and cloakroom
- Front garden ideal for outdoor seating
- Excellent mobile signal and fast broadband speeds
**Potential Downsides:**
- Dated bathroom requiring modernization
- Property has listed status, which may pose renovation challenges
- Solid brick walls lack insulation; potential for energy efficiency improvements
- Average maintenance concerns associated with older properties
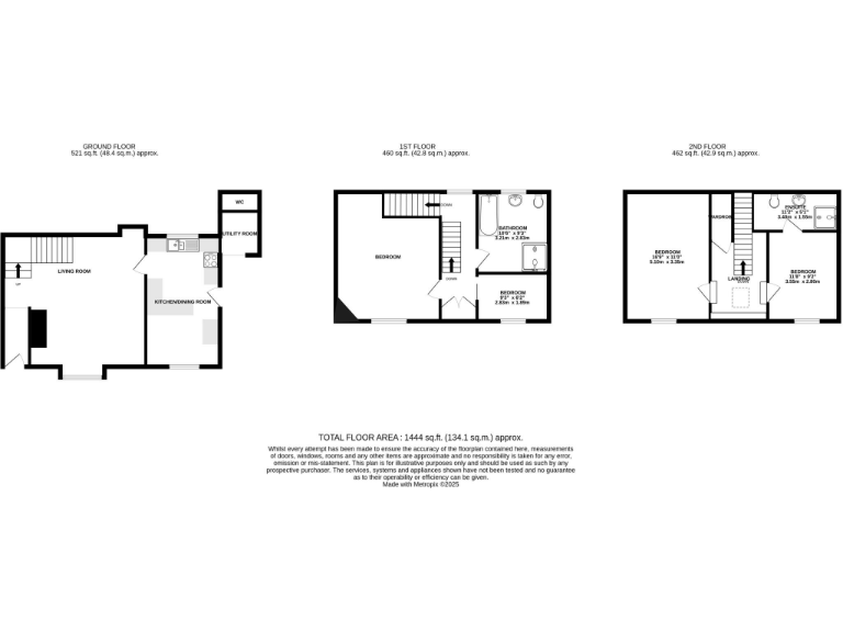
Nestled in the heart of the picturesque village of Kerry, this enchanting four-bedroom Grade II listed former School House offers a unique blend of historical charm and modern living. With its high ceilings and original features, this property provides an inviting home full of character. The spacious layout includes a generous living room, a kitchen/dining area perfect for family meals, and a utility room for added convenience.
Imagine sipping coffee in the front garden while enjoying direct views of the local church and surrounding greenery. While the property showcases historical allure, it does present some opportunities for modernization, particularly in the bathroom. The building's listed status may restrict certain renovations but provides a distinctive opportunity to preserve timeless elegance. With a low-crime rural setting, excellent mobile connectivity, and fast broadband, this home is perfect for families or anyone seeking a peaceful retreat with future renovation potential. This exceptional property won't be on the market for long—seize the opportunity to make it your own!
2 bedroom semi-detached house for sale in Fairfield, Kerry, Newtown, Powys, SY16 — £165,000 • 2 bed • 1 bath • 829 ft²
4 bedroom semi-detached house for sale in Kerry, Newtown, Powys, SY16 — £550,000 • 4 bed • 3 bath • 2347 ft²
4 bedroom semi-detached house for sale in Kerry, Newtown, Powys, SY16 — £375,000 • 4 bed • 2 bath • 2119 ft²
4 bedroom terraced house for sale in Commercial Street, Newtown, Powys, SY16 — £149,000 • 4 bed • 2 bath • 969 ft²
3 bedroom terraced house for sale in Springfields, Kerry, Newtown, Powys, SY16 — £270,000 • 3 bed • 1 bath • 1259 ft²
4 bedroom detached house for sale in Herbert Court, Kerry, Newtown, SY16 — £360,000 • 4 bed • 3 bath • 1370 ft²






















































































































