Grade II* cob farmhouse with 2.7 acres and a substantial barn — character-filled, chain free..
Grade II* listed 15th-century cob farmhouse with rare period features
Approximately 2.7 acres: garden, pasture, orchard, woodland and stream boundary
Detached barn/studio with vaulted timbers; conversion potential subject to consents
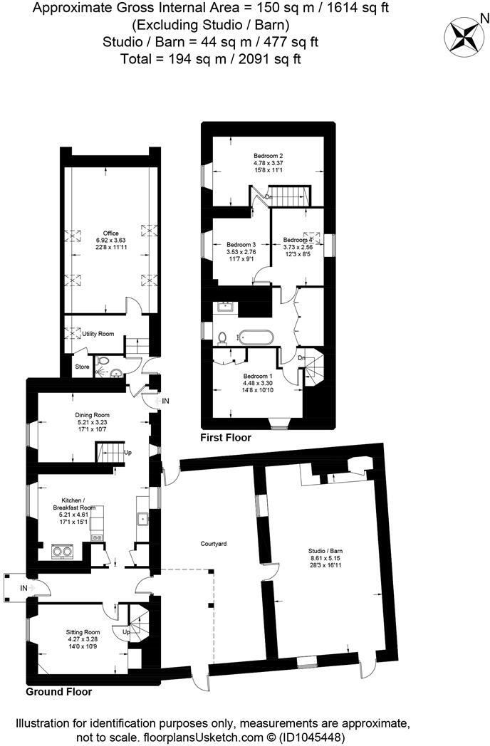
Four double bedrooms; some rooms have reduced head height
Oil-fired boiler, private soakaway drainage, EPC E
Very slow broadband; average mobile signal and half-mile farm track access
Little Hackworthy is a Grade II* cob farmhouse set in about 2.7 acres, offering abundant period character and far-reaching rural views around ten miles from Exeter. The house preserves rare historic features — decorative plasterwork, timber mullion window, exposed beams and a large kitchen fireplace with oil-fired Aga — creating a distinctive family home for those seeking authenticity and space.
The accommodation is generous with large reception rooms, four double bedrooms and versatile outbuildings including a substantial detached barn/studio with vaulted ceiling and exposed timbers. The barn has clear conversion potential but would require listed-building consents and planning permission before any change of use or alteration. There is no onward chain, and parking is available beside the barn via a private driveway.
Important practical points: the property is Grade II* listed (which will complicate alterations), heated by an oil boiler, drains to a private soakaway, and currently has an EPC rating of E. Broadband speeds are very slow and mobile signal is average. Access is along a half‑mile farm track, and some bedrooms have reduced head height due to historic rooflines.
This house will suit buyers who value historic fabric, large grounds and rural privacy and are prepared for conservation-led ownership and ongoing maintenance. It is less well suited to purchasers seeking immediate modern connectivity or a turnkey, low-maintenance home without planning or listed‑building constraints.
4 bedroom detached house for sale in Bridford, Exeter, Devon, EX6 — £1,350,000 • 4 bed • 2 bath • 1906 ft²
4 bedroom detached house for sale in Tedburn St Mary, EX6 — £1,200,000 • 4 bed • 2 bath • 2161 ft²
5 bedroom detached house for sale in Shobrooke, Crediton, EX17 — £995,000 • 5 bed • 2 bath • 3015 ft²
4 bedroom cottage for sale in Lower Shoplands and Barn, Newbuildings, Crediton, EX17 — £500,000 • 4 bed • 2 bath • 1408 ft²
4 bedroom detached house for sale in Spreyton, Crediton, Devon, EX17 — £650,000 • 4 bed • 2 bath • 1974 ft²
Equestrian facility for sale in Uplowman, Tiverton, Devon, EX16 — £595,000 • 3 bed • 2 bath • 1168 ft²






































































































































