**Standout Features:**
- Extremely large office space: 4,800 sqft
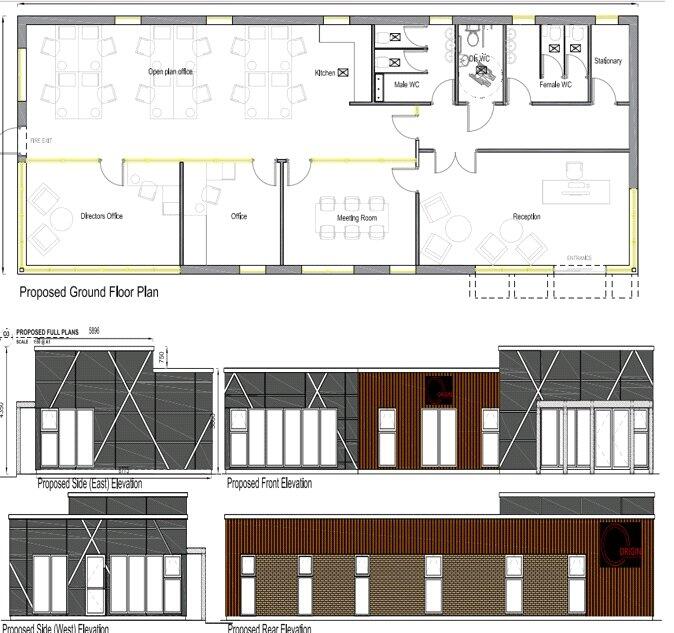
- Proposed development plans for modern industrial office building
- Prime location with high visibility along a busy arterial route
- Close proximity to Hartlepool town centre (3.4 miles) and A19 (5.1 miles)
- Ample parking with 11 designated spaces
- Potential for diverse uses subject to planning permission
- Average crime rate, indicating a stable community
- Excellent mobile signal, average broadband speeds
**Property Summary:**
This impressive commercial development opportunity located at Queens Meadow Business Park, Hartlepool, offers 4,800 sqft of potential office space primed for transformation. Nestled off Stockton Road on a bustling arterial route, this site boasts excellent visibility for businesses, with Hartlepool town centre just 3.4 miles to the north. While currently an office setting, the property is versatile and may accommodate various uses upon obtaining necessary planning permissions, appealing to a spectrum of investors or entrepreneurs looking to capitalize on the growing industrial presence in the area.
The proposed modern industrial building design features open-plan layouts, a reception area, meeting rooms, and facilities like restrooms and a staff kitchen to cater to a dynamic workforce. Although needs some renovation, the generous plot size and structural footprint present exciting development opportunities.
Families will appreciate the nearby schools, with several rated 'Good' by Ofsted, adding to the area's appeal. With an enticing entry price of £65,000, act quickly to seize this unique chance to create a thriving business hub in a developing locality.
Office for sale in George Stephenson House, St Marks Court, Teesdale Business Park, Stockton-On-Tees, TS17 — £2,750,000 • 167 bed • 1 bath
Commercial development for sale in Brighouse Business Village, Brighouse Road, Middlesbrough, North Yorkshire, TS2 — £1,200,000 • 1 bed • 1 bath
Land for sale in Land For Sale, Graythorp Industrial Estate, Hartlepool TS25 2DF, TS25 — £1,400,000 • 1 bed • 1 bath
Commercial development for sale in Raby Road, Hartlepool, TS24 — £495,000 • 28 bed • 1 bath • 16000 ft²
Land for sale in Offices Available For Sale/To Let in Stockton, Northshore, Stockton On Tees, TS17 6QY, TS17 — POA • 1 bed • 1 bath • 10000 ft²
Shop for sale in Park Tower, Park Road, Hartlepool, TS24 — £850,000 • 1 bed • 1 bath • 11460 ft²










