South-facing garden and local top-rated schools ideal for growing households.
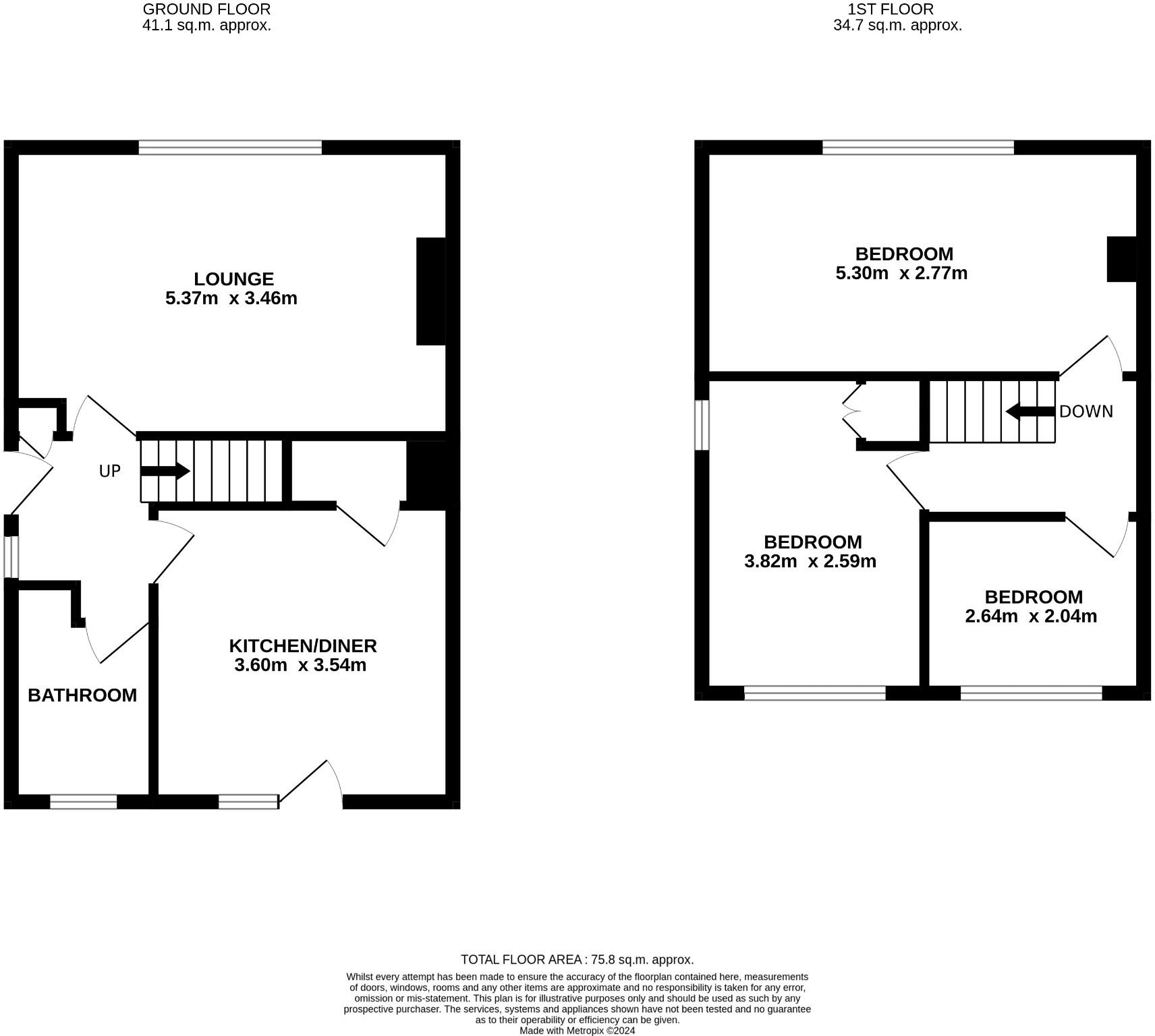
Spacious lounge and kitchen–diner across two floors
This three-bedroom dormer semi offers a practical family layout in a much sought-after part of Idle. The ground floor provides a spacious lounge and a kitchen–diner, while three bedrooms and storage sit upstairs. The home benefits from gas central heating fed by a modern condensing combi boiler and UPVC double glazing throughout.
Outside there are enclosed front and rear south-facing gardens, a flagged patio and a driveway providing off-street parking. Local amenities and three well-regarded primary schools are within walking distance, making the location particularly suitable for young families. Broadband and mobile signal are excellent.
Buyers should note the house is an average-sized property from the mid-20th century, so there may be routine maintenance and updating required to personalise rooms. There is one bathroom on the ground floor. The area records higher than average local crime levels, and prospective buyers are advised to arrange their own surveys and service checks to confirm condition and services.
2 bedroom semi-detached house for sale in Harper Crescent, Idle,, BD10 — £279,950 • 2 bed • 1 bath
5 bedroom detached house for sale in Croftlands, Idle,, BD10 — £460,000 • 5 bed • 3 bath • 1851 ft²
3 bedroom link detached house for sale in Evesham Grove, Idle,, BD10 — £279,950 • 3 bed • 2 bath • 1439 ft²
3 bedroom semi-detached house for sale in Simpson Grove, Idle,, BD10 — £329,950 • 3 bed • 1 bath • 1109 ft²
3 bedroom end of terrace house for sale in Highfield Road, Idle,, BD10 — £169,950 • 3 bed • 1 bath • 1047 ft²
3 bedroom semi-detached house for sale in Croftlands, Idle,, BD10 — £259,950 • 3 bed • 1 bath • 966 ft²


























































